Hoofdfoto
  • Soort Eengezinswoning
  • Type Vrijstaande woning
  • Bouwjaar 1934
  • Woonoppervlakte 78 m2
  • Perceeloppervlakte 240 m2
  • Inhoud 259 m3
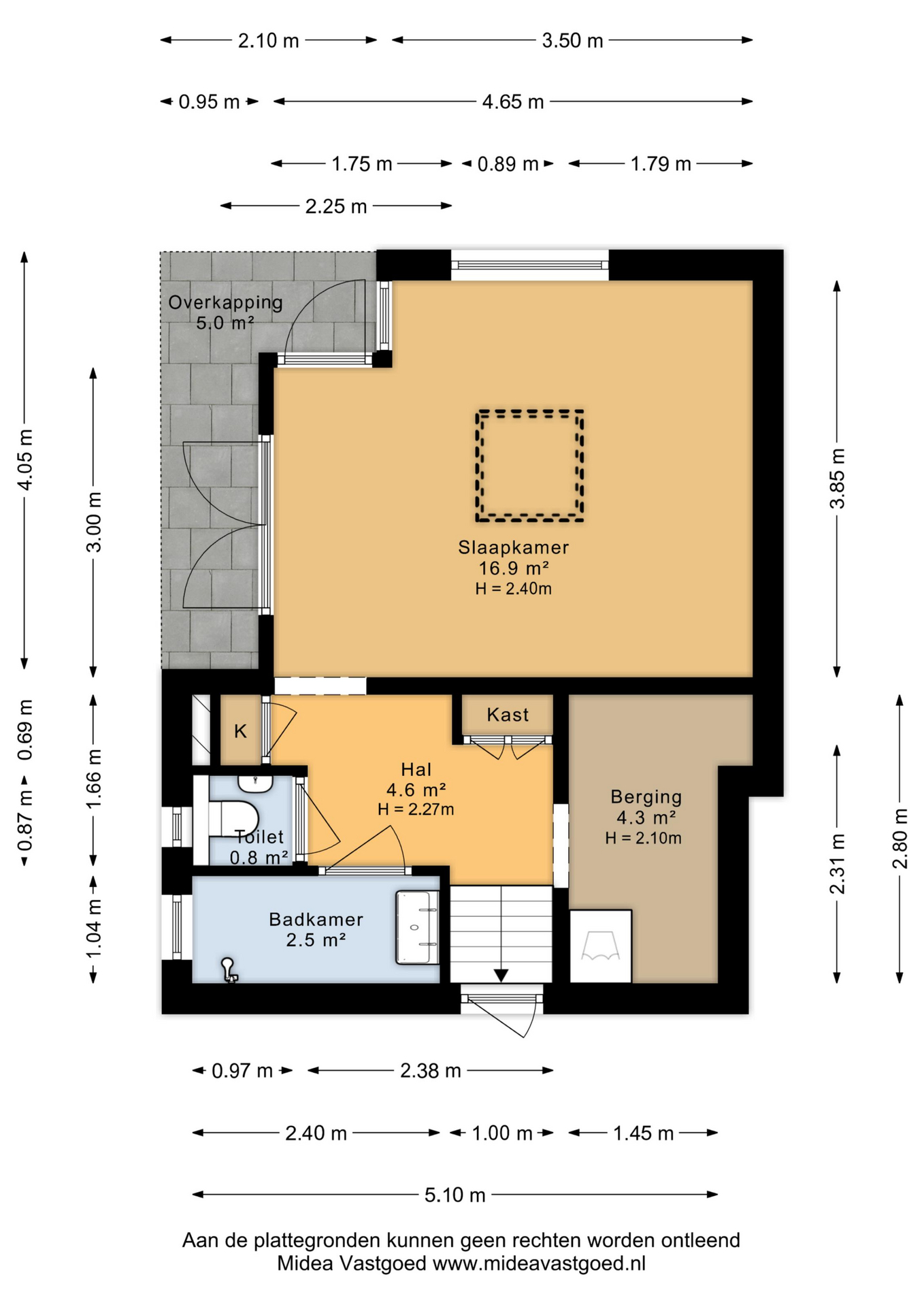
  • Aantal kamers 3
  • Aantal slaapkamers 2
  • Aantal badkamers 1
  • Liggingen Vrij uitzicht, Landelijk gelegen
  • Koopprijs € 239.000,- k.k.
  • Status Verkocht
  • Aanvaarding In overleg
  • Energieklasse E
  • Verwarming CV ketel
  • C.V.-Ketel Remeha Avanta
  • Isolatie Dakisolatie, Dubbelglas
  • Combiketel Ja
  • Parkeer faciliteiten Op eigen terrein
  • Garage Aangebouwd hout
  • Capaciteit 1
  • Garages 1

Beschrijving Oudebildtdijk 936

Aan de Oudebildtdijk, net buiten Westhoek, staat deze sfeervolle vrijstaande dijkwoning met een uitzicht dat nooit verveelt. Hier woon je met de seizoenen mee: ieder jaargetijde kleurt de velden achter de woning weer anders. De ligging is landelijk en vrij. Zie jij jezelf al aan een frisse wandeling langs de kust?

Je komt aan via de eigen oprit, met direct naast de woning een garage met openslaande deuren. Praktisch voor opslag, maar ook ideaal voor hobby’s. De voortuin met perenboom geeft meteen dat fijne, landelijke gevoel dat zo goed past bij deze plek.

Via de entree met garderobe stap je de woonkamer binnen. Hier voel je het karakter meteen. Het houten balkenplafond, de warme uitstraling en het prachtige uitzicht aan de voorzijde maken dit een ruimte waar je graag verblijft. Een plek om rustig te zitten, te lezen of gewoon naar buiten te kijken en de dag voorbij te zien gaan.

Achter de woonkamer ligt de keuken, functioneel ingericht met een vierpits gasfornuis. Dankzij de dakkoepel en het zijraam valt hier volop daglicht naar binnen, wat zorgt voor een prettige, lichte sfeer tijdens het koken.

Vanuit de woonkamer leidt een trap naar beneden. Hier vind je de bijkeuken, een douche met wastafel en een separaat toilet. Ook is er bergruimte onder de keuken, handig en netjes uit het zicht.

Aan de achterzijde van de woning bevindt zich een veelzijdige ruimte die je geheel naar wens kunt gebruiken: als slaapkamer, werkkamer of hobbyruimte. De openslaande deuren zorgen voor een directe verbinding met de tuin, terwijl de dakisolatie en de dakkoepel zorgen voor comfort en een aangenaam lichte ruimte.

Een trap omhoog vanuit de woonkamer brengt je naar de slaapkamer. Met houten wanden en een houten plafond ademt ook deze ruimte sfeer en karakter. De ramen zorgen voor veel lichtinval en maken dit tot een rustige, warme plek om de dag te beginnen en af te sluiten.

De achtertuin is beschut en biedt volledige privacy. Hier vind je een kas voor de groene vingers, een appelboom en een extra schuurtje voor opslag. Een heerlijke buitenruimte waar je in alle rust kunt genieten, tuinieren of simpelweg het uitzicht in je opneemt.

Alle pluspunten op een rij:
- vrijstaande dijkwoning met karakter
- prachtige, weidse uitzichten over het landschap
- wonen met de seizoenen mee
- veel natuurlijk licht in de woning
- sfeervolle woonkamer met houten balkenplafond
- slaapkamer met houten wanden en plafond
- beschutte achtertuin met volledige privacy
- kas, appelboom en extra schuurtje in de tuin
- eigen oprit en garage met openslaande deuren

Kortom: Oudebildtdijk 936 is een unieke vrijstaande dijkwoning vol karakter, met weidse uitzichten, veel licht en een verrassende indeling. Een plek voor liefhebbers van rust, ruimte en het buitenleven, met natuur en seizoenen altijd dichtbij. Benieuwd of dit jouw plek kan worden? Neem gerust contact met ons op voor een bezichtiging, we laten je deze woning graag zelf ervaren.

Video

Details Foto's Beschrijving Video Plattegrond Kaart

Weten wat jouw woning waard is?

Plan vrijblijvend een GRATIS waardebepaling met één van onze makelaars