Hoofdfoto
  • Soort Eengezinswoning
  • Type Tussenwoning
  • Bouwjaar 1972
  • Woonoppervlakte 135 m2
  • Perceeloppervlakte 192 m2
  • Inhoud 437 m3
  • Aantal kamers 5
  • Aantal slaapkamers 4
  • Aantal badkamers 1
  • Liggingen Aan rustige weg, In woonwijk
  • Koopprijs € 299.000,- k.k.
  • Status Verkocht
  • Aanvaarding In overleg
  • Energieklasse B
  • Verwarming CV ketel
  • Combiketel Nee
  • Parkeer faciliteiten Openbaar parkeren
  • Garage Geen garage

Beschrijving Wylgekamp 21

Ruim, licht en comfortabel wonen in het groene Tytsjerk

Welkom aan de Wylgekamp 21 in het gemoedelijke Tytsjerk. Je woont hier in een prettige en rustige woonomgeving met veel ruimte om je heen, terwijl alle voorzieningen verrassend dichtbij blijven. Recreatiegebied De Groene Ster ligt op korte afstand en moet je de stad in, dan ben je binnen enkele minuten rijden in Leeuwarden.

De woning ligt aan een rustige weg en kijkt aan de voorzijde uit op een leuke speeltuin. De nette voortuin met een stukje gras zorgt meteen voor een verzorgd en dorps welkom. Dit is zo’n plek waar je je snel thuis voelt, nog voordat je de voordeur hebt geopend.

Via de voordeur stappen we de hal binnen. Hier vind je de meterkast, het moderne toilet en de trapopgang naar de eerste verdieping. Vanuit de hal lopen we door naar de woon- en eetkamer.

De woon- en eetkamer lopen prettig in elkaar over en vormen samen een fijne leefruimte. Grote raampartijen aan zowel de voor- als achterzijde zorgen voor veel daglicht en geven de ruimte een open en luchtig gevoel. De eetkamer grenst aan een grote schuifpui, waardoor de tuin wordt betrokken bij het wonen. De lichte, open keuken is voorzien van een vaatwasser, koelkast, fornuis en oven en staat in direct contact met de leefruimte. Aansluitend bereik je de ruime bijkeuken met witgoed opstelling. Een praktische ruimte voor dagelijkse spullen en extra voorraad. Extra bergruimte is er ook nog in de trapkast, bereikbaar vanuit de leefruimte.

Op de eerste verdieping zijn drie fijne slaapkamers en de badkamer te vinden. De master bedroom is met 14,1 m² ruim opgezet en biedt volop plaats voor een tweepersoonsbed en een grote kast. De andere twee slaapkamers zijn licht en praktisch in te delen. Alle slaapkamers zijn voorzien van laminaatvloer en dubbele beglazing. De badkamer is compleet uitgevoerd met een wastafel, douche, ligbad en een tweede toilet.

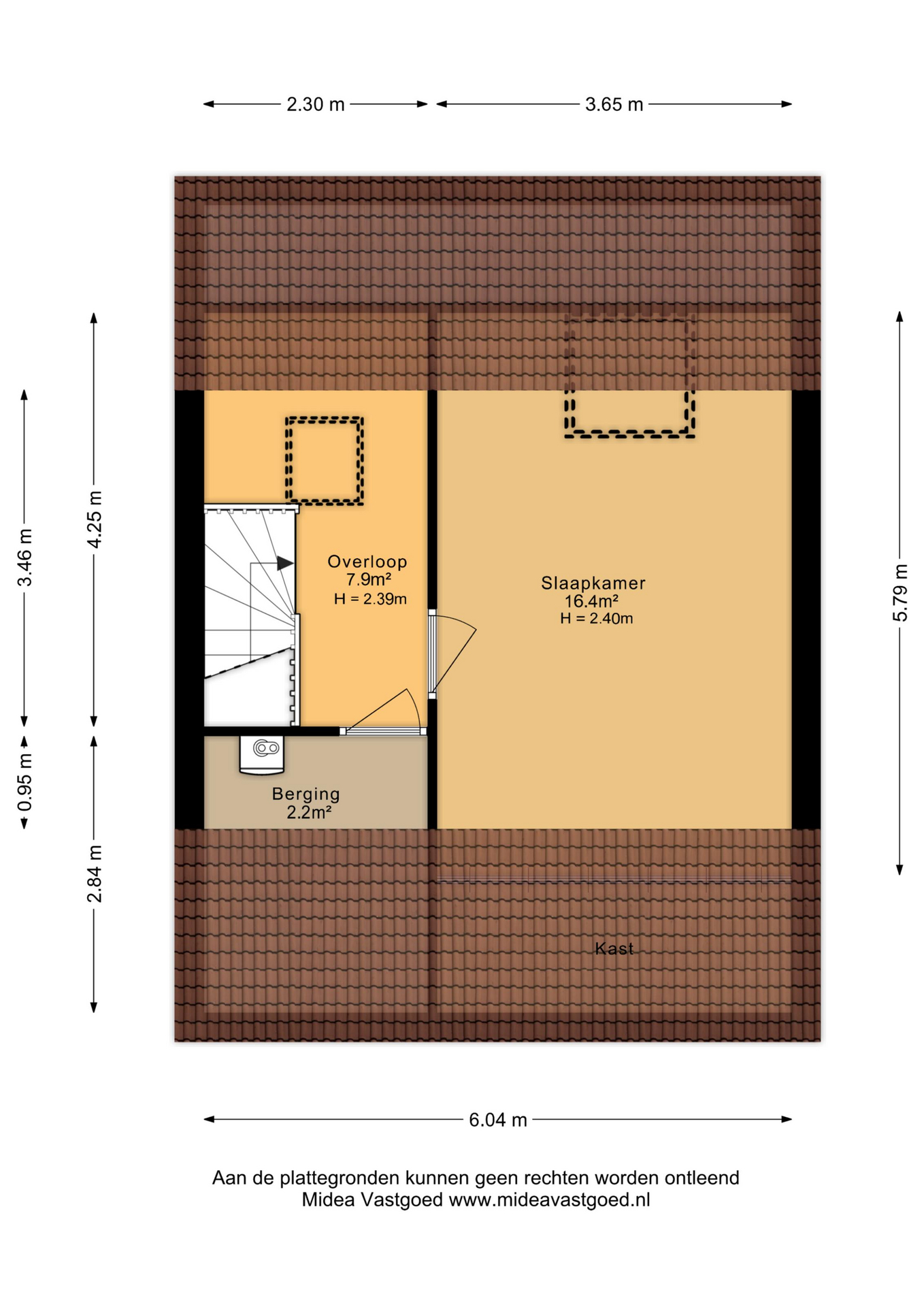
Via de vaste trap bereiken we de tweede verdieping. Op de overloop hangt de omvormer en Intergas cv-ketel, die vorig jaar is geïnstalleerd. De zolderruimte van 16,4 m² is netjes afgewerkt en voorzien van een dakraam en knieschotten. Het hoge plafond zorgt voor een extra ruimtelijk gevoel. Een volwaardige vierde slaapkamer, maar ook perfect te gebruiken als werkplek, hobbyruimte of sportkamer. Hier kun je alle kanten mee op!

De tuin is een heerlijke buitenruimte met een combinatie van bestrating en gras. Dankzij de ligging op het zuiden geniet je hier de hele dag van de zon, met alle ruimte voor een loungeset of een grote buitentafel. De tuin is beschut en biedt veel privacy. Via de achterom is de tuin goed bereikbaar en doordat de woning de laatste in de rij is, loopt er niemand achterlangs. Achterin de tuin staat een berging, ideaal voor fietsen en tuingereedschap.

Pluspunten op een rij
- Gelegen in rustige, kindvriendelijke buurt
- Lichte leefruimte met grote raampartijen
- Open keuken met aangrenzende bijkeuken
- 4 ruime slaapkamers
- Royale zolderkamer van 16,4 m², perfect te gebruiken als vierde slaapkamer, werkplek of hobbyruimte
- Beschutte tuin op het zuiden
- Energielabel B
- 8 zonnepanelen
- Intergas cv-ketel (2025)

Kortom: Wylgekamp 21 is een fijne gezinswoning in een rustige, kindvriendelijke buurt, met vier slaapkamers, een lichte leefruimte en een zonnige tuin op het zuiden. Energielabel B, acht zonnepanelen en een praktische indeling maken het plaatje compleet. Een plek waar binnen en buiten prettig samenkomen en waar je elke dag met plezier thuiskomt. Nieuwsgierig geworden? Neem contact met ons op en plan een bezichtiging.

Video

Details Foto's Beschrijving Video Plattegrond Kaart

Weten wat jouw woning waard is?

Plan vrijblijvend een GRATIS waardebepaling met één van onze makelaars