fbpx
Hoofdfoto
  • Soort Eengezinswoning
  • Type Tussenwoning
  • Bouwjaar 1974
  • Woonoppervlakte 110 m2
  • Perceeloppervlakte 174 m2
  • Inhoud 420 m3
  • Aantal kamers 5
  • Aantal slaapkamers 4
  • Aantal badkamers 1
  • Liggingen Aan rustige weg, In woonwijk
  • Koopprijs € 295.000,- k.k.
  • Status Beschikbaar
  • Aanvaarding In overleg
  • Energieklasse B
  • Verwarming CV ketel
  • C.V.-Ketel Vaillant eco tec plus
  • Isolatie Dakisolatie, Gedeeltelijk dubbelglas, HR glas
  • Combiketel Ja
  • Parkeer faciliteiten Openbaar parkeren
  • Garage Geen garage

Beschrijving Aysmastins 20

Aysmastins 20 – Stiens
Een fijne gezinswoning met zonnige tuin, zonnepanelen en vier slaapkamers!
Aan een rustige straat in Stiens staat deze verzorgde tussenwoning uit 1974. Hier woon je heerlijk comfortabel, met het gezellige dorpsleven vlakbij. De supermarkt, basisschool, sportclubs en het centrum van Stiens liggen allemaal op loopafstand — wel zo handig!

Welkom thuis
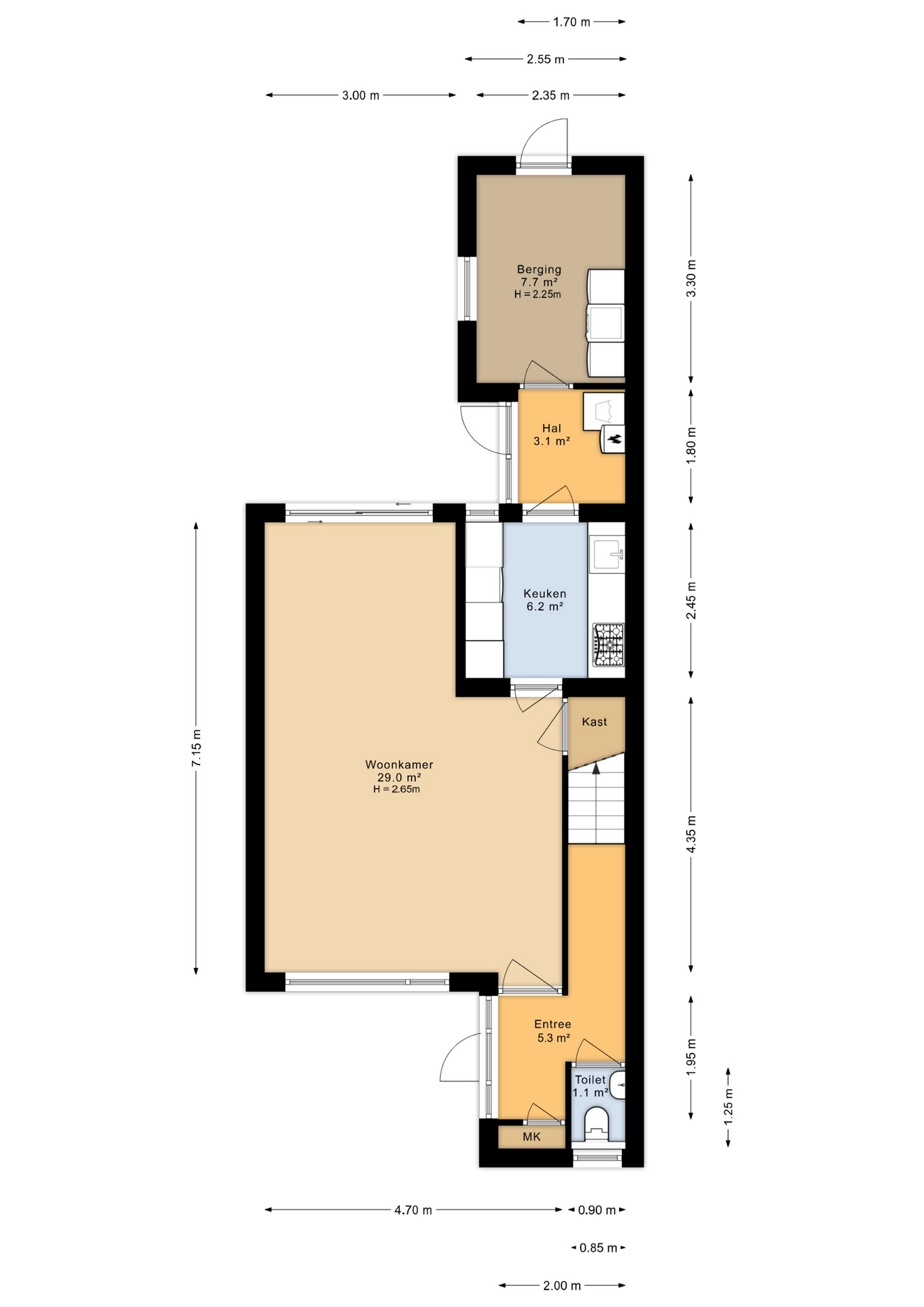
We stappen binnen in de hal: netjes, licht en voorzien van een modern toilet dat in juni 2024 nog is vernieuwd. De meterkast met de omvormer van de zonnepanelen vind je hier ook. Vanuit de hal lopen we door naar de woonkamer.

Wonen
Wat een fijne ruimte! Dankzij de grote ramen aan de voorzijde komt er volop daglicht binnen. Aan de achterkant trekken de kunststof schuifpui en het uitzicht op de tuin meteen de aandacht. De woonkamer voelt ruim en gezellig aan — perfect voor een grote eettafel of knusse zithoek. In de trapkast kun je al je spullen netjes kwijt.

Koken en klussen
We lopen door naar de dichte keuken: praktisch ingedeeld en van alle gemakken voorzien met een 5-pits gasfornuis, oven, magnetron en vaatwasser. Achter de keuken ligt de bijkeuken met plek voor de wasmachine, droger en cv-ketel. Via de bijkeuken kom je in de handige berging — ideaal voor fietsen of tuingereedschap, en ook bereikbaar vanuit de tuin.

Buitenleven
De achtertuin is een zonnige verrassing. Een plek waar je lekker kunt genieten, met een zonnescherm voor de warme dagen en een gezellige overkapping waar je ’s avonds nog lang kunt zitten. Via de achterom wandel je zo naar voren.

Slapen en baden
Op de eerste verdieping vind je drie slaapkamers, allemaal voorzien van kunststof kozijnen! De badkamer is modern en comfortabel: een inloopdouche, hangtoilet, dubbel wastafelmeubel en radiator maken het compleet.

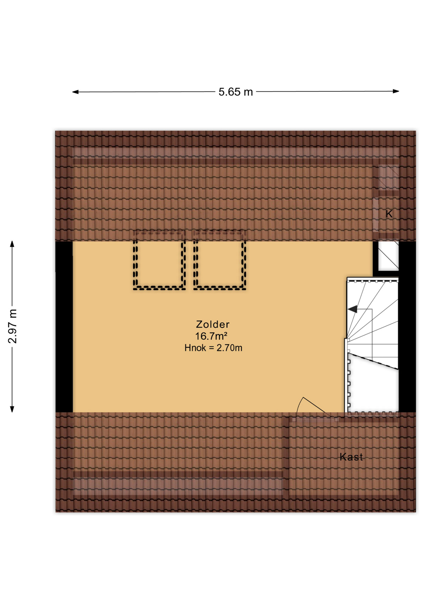
De vaste trap brengt je naar de tweede verdieping, waar een royale vierde slaapkamer is gecreëerd. Dankzij de kunststof dakramen en de zichtbare houten balken heeft deze verdieping een warme, knusse sfeer. Achter de knieschotten is extra bergruimte.

Pluspunten op een rij
Ruime tussenwoning met 4 slaapkamers
Lichte woonkamer met kunststof schuifpui
Modern toilet (2024)
8 zonnepanelen
Zonnige tuin met overkapping en achterom
Kunststof kozijnen
2 slaapkamers met horren
Rustige straat, opnieuw bestraat in 2022
Voldoende ruimte om je auto te parkeren
Dichtbij centrum, supermarkt en sportvoorzieningen
Energielabel B

Samenvatting
Aysmastins 20 is een heerlijk huis waar alles klopt: ruimte, licht, comfort en een fijne sfeer. Een plek om je direct thuis te voelen — in een dorp dat alles heeft. Kom kijken en ervaar het zelf!

Video

Details Foto's Beschrijving Video Plattegrond Kaart

Weten wat jouw woning waard is?

Plan vrijblijvend een GRATIS waardebepaling met één van onze makelaars