fbpx
Hoofdfoto
  • Soort Eengezinswoning
  • Type Twee onder één kapwoning
  • Bouwjaar 1939
  • Woonoppervlakte 89 m2
  • Perceeloppervlakte 384 m2
  • Inhoud 358 m3
  • Aantal kamers 6
  • Aantal slaapkamers 3
  • Aantal badkamers 1
  • Liggingen In centrum
  • Koopprijs € 325.000,- k.k.
  • Status Beschikbaar
  • Aanvaarding In overleg
  • Energieklasse D
  • Verwarming CV ketel
  • C.V.-Ketel Intergas
  • Isolatie Dakisolatie, Muurisolatie, Vloerisolatie, HR glas
  • Combiketel Ja
  • Parkeer faciliteiten Openbaar parkeren, Op eigen terrein
  • Garage Geen garage

Beschrijving Stadhoudersweg 54

Stadhoudersweg 54 in St.-Annaparochie: goed onderhouden, sfeervol en klaar voor een nieuwe start!

Binnenkomen
Dit is zo’n woning waar je binnenstapt en meteen voelt: hier is met liefde gewoond. Een charmante twee-onder-een-kapwoning uit 1939, die het karakter van toen moeiteloos combineert met het comfort van nu. Met vloerverwarming en zeven zonnepanelen woon je hier niet alleen fijn, maar ook slim.

Wonen met sfeer en licht
De woonkamer is heerlijk licht en straalt warmte uit. De mooie schuifdeuren naar de eetkamer zijn een echte sfeermaker. Open ze en je creëert een ruimtelijk geheel, sluit ze en het wordt extra knus. Dit is een huis dat zich aanpast aan jouw moment. Van doordeweeks rustig tot gezellig druk met vrienden of familie.

De leefkeuken als middelpunt
De leefkeuken is er eentje waar het leven vanzelf gebeurt. Koken terwijl de dag wordt doorgenomen, samen eten, nog even blijven zitten met een kop koffie. Ruim opgezet, praktisch en vooral een plek waar je graag bent. Hier wordt niet alleen gekookt, hier wordt geleefd.

Badkamer
De badkamer ligt beneden en voelt meteen prettig en doordacht aan. Verzorgd, fris en compleet, met twee wastafels en een separate douche. Een ruimte waar alles klopt en waar je ’s ochtends rustig opstart en de dag ’s avonds comfortabel afsluit.

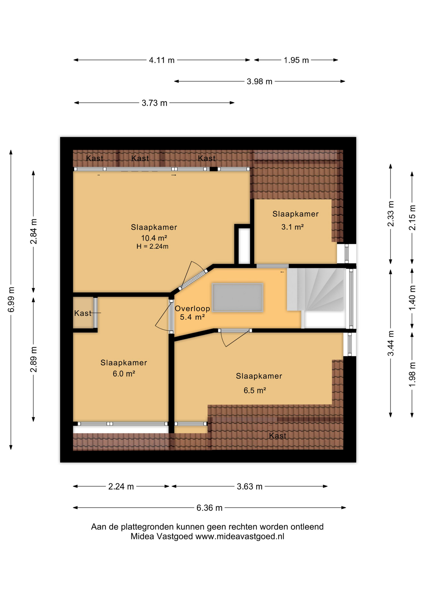
Boven slapen en opbergen
Op de verdieping vind je drie fijne slaapkamers, keurig onderhouden en prettig in gebruik. En dan is er nog de zolder: ideaal voor extra bergruimte, seizoenspullen of alles wat je netjes uit het zicht wilt hebben.

Buitenruimte waar je blij van wordt
De tuin is groot, groen en een droom voor iedereen die van buiten houdt. Hier kun je tuinieren, ontspannen en genieten van lange dagen in de zon. De tuinkas maakt het helemaal af. Groene vingers of ambities? Die kunnen hier los. En dan nog de garage, perfect voor opslag, hobby’s of gewoon lekker veel ruimte.

Waarom wil je hier wonen?
De verkopers zeggen het zelf, en wij snappen het helemaal. St.-Annaparochie is een levendig dorp, de woning is goed onderhouden en perfect voor starters. De fijne lichtinval, de sfeer in huis en de ruimte binnen én buiten maken dit een plek waar je je snel thuis voelt!

Pluspunten om enthousiast van te worden
Goed onderhouden twee-onder-een-kapwoning.
Bouwjaar 1939 met karakter.
Circa 89 m² woonoppervlakte.
Vloerverwarming voor extra comfort.
Zeven zonnepanelen.
Drie slaapkamers.
Sfeervolle schuifdeuren tussen woonkamer en eetkamer.
Ruime leefkeuken.
Badkamer met dubbele wastafel en losse douche.
Zolder voor extra bergruimte.
Grote tuin met tuinkas.
Grote garage voor opslag of hobby.

Tot slot
Stadhoudersweg 54 is zo’n huis dat meer biedt dan je verwacht. Sfeervol, comfortabel en met volop ruimte om jouw eigen woonverhaal te schrijven. Ideaal voor starters die niet willen inleveren op sfeer of buitenruimte.

Eentje die je eigenlijk gewoon even moet zien. Grote kans dat je dan verkocht bent.

Video

Details Foto's Beschrijving Video Plattegrond Kaart

Weten wat jouw woning waard is?

Plan vrijblijvend een GRATIS waardebepaling met één van onze makelaars