fbpx
Hoofdfoto
  • Soort Eengezinswoning
  • Type Hoekwoning
  • Bouwjaar 1921
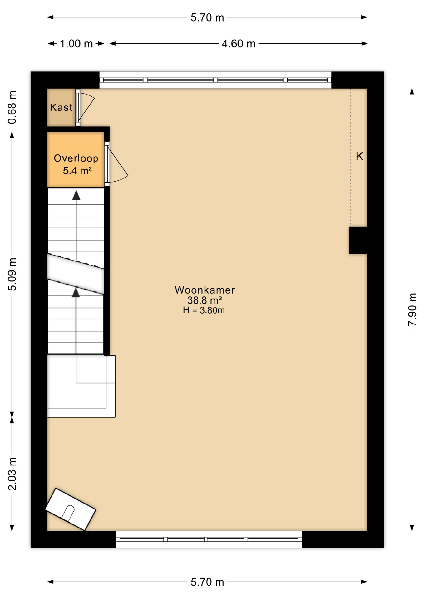
  • Woonoppervlakte 164 m2
  • Perceeloppervlakte 328 m2
  • Inhoud 760 m3
  • Aantal kamers 5
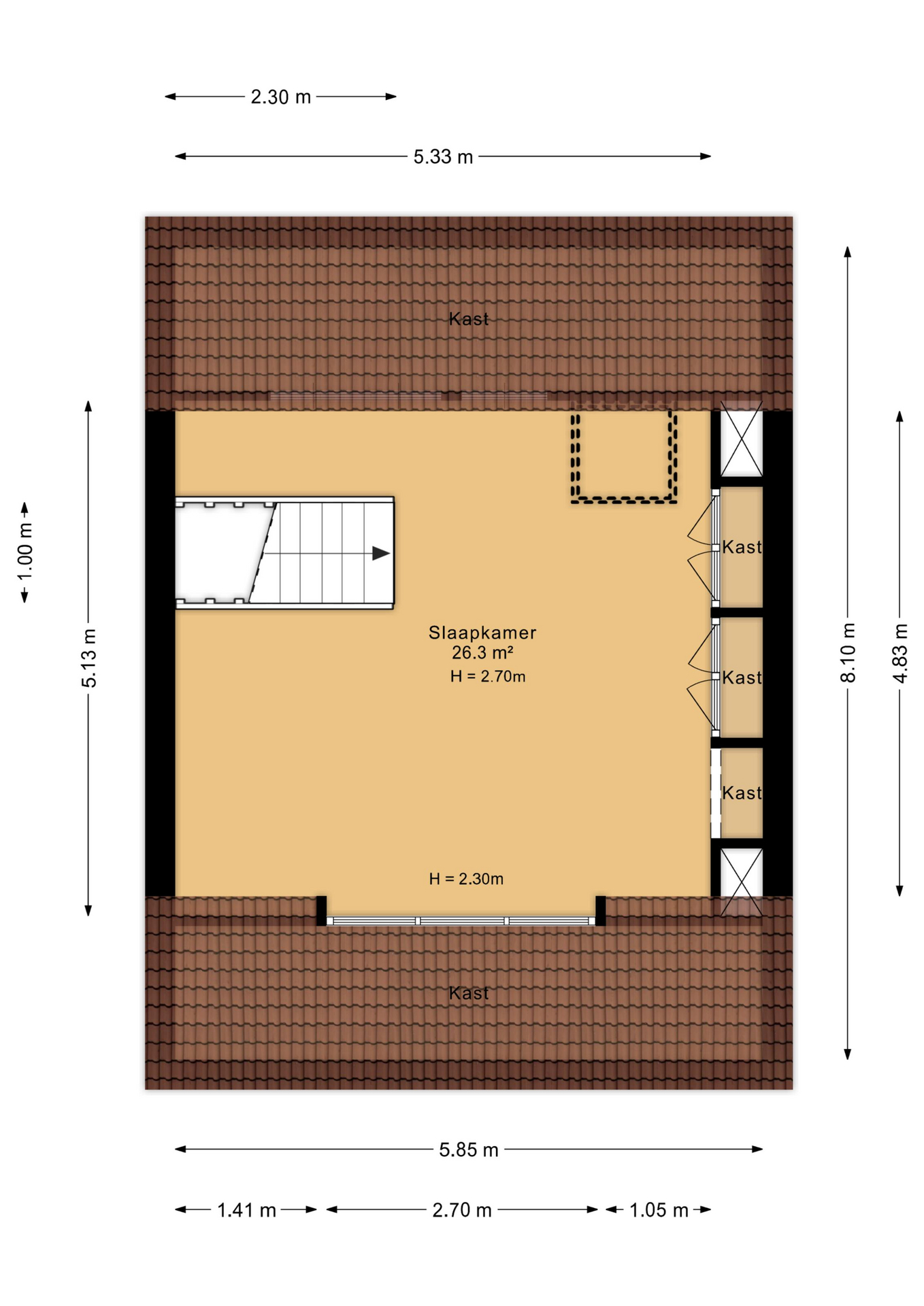
  • Aantal slaapkamers 3
  • Aantal badkamers 1
  • Liggingen Aan rustige weg, In woonwijk
  • Koopprijs € 675.000,- k.k.
  • Status Beschikbaar
  • Aanvaarding In overleg
  • Energieklasse A
  • Verwarming CV ketel, Houtkachel
  • C.V.-Ketel Hre
  • Isolatie Volledig geïsoleerd
  • Combiketel Ja
  • Garage Geen garage

Beschrijving Parallelweg 9d

Uniek wonen in een voormalige school – karakter, comfort en een groene stadstuin

Stap binnen in een huis dat je niet elke dag tegenkomt. Deze woning, gelegen in een voormalige school, ademt karakter en stijl, maar voelt tegelijkertijd modern en warm aan. Achter de imposante gevel schuilt een verrassend lichte en ruime woning waar authentieke elementen en hedendaagse afwerking prachtig samenkomen. Van buiten zou je zeggen dat het gaat om meerdere appartementen, maar dit is toch echt één woning!

Bij binnenkomst valt direct de hoogte op. De plafonds reiken tot wel vier meter, wat zorgt voor een ongekend ruimtelijk gevoel. De ruime hal met originele terrazzo vloer verraadt nog een beetje dat dit eigenlijk een oud schoolgebouw is. Via de in 2022 geplaatste stalen taatsdeuren kom je in de heerlijke woonkeuken. Deze ruimte op de begane grond vormt het hart van het huis – een plek waar je samenkomt, kookt, lacht en geniet. De keuken is in 2022 volledig vernieuwd en van alle gemakken voorzien, inclusief een wijnkoeler voor de liefhebber. Grote raampartijen laten het daglicht royaal binnenstromen en bieden zowel aan de voor- als achterzijde vrij uitzicht.

Op de eerste verdieping treffen we de woonkamer, waar een houtkachel zorgt voor sfeer en warmte. Ook hier weer die bijzondere hoogte, het licht, en een prachtig zicht op het groen buiten. En dat allemaal met een fantastische moderne afwerking! Je zou niet zeggen dat je zo dichtbij het centrum woont als je hier naar buiten kijkt.

Ook de tweede en derde verdieping bieden ruimte en rust, gecombineerd met een geweldige afwerking en authentieke details. De badkamer is modern en voorzien van een inloopdouche, ligbad en een slim weggewerkte wasruimte. De slaapkamers zijn ruim en sfeervol, met als hoogtepunt de master bedroom op de bovenste verdieping, waar je ’s ochtends wakker wordt met uitzicht over de stad.

En dan de tuin – een ware verrassing. Achter het huis ligt een royale, opnieuw aangelegde stadstuin waar privacy en groen centraal staan. Hier geniet je in alle rust van de zon, een goed boek of een barbecue met vrienden, terwijl je nauwelijks doorhebt dat je je midden in de stad bevindt.

De ligging is ideaal: in een rustige straat, maar op loopafstand van het bruisende centrum. Alles wat je nodig hebt – van winkels en scholen tot het openbaar vervoer – ligt binnen handbereik. Bovendien is het huis in de afgelopen jaren zorgvuldig onderhouden, met onder meer vernieuwd schilderwerk en een recent aangelegde tuin.

Deze woning is niet zomaar een huis, het is een plek met een verhaal. Een plek waar je je direct thuis voelt, waar stijl en comfort moeiteloos samenkomen. Een unieke kans voor wie iets bijzonders zoekt in de stad.

Bijzonderheden:

-Toplocatie op loopafstand van het centrum
-Volledig instapklaar, recent vernieuwd
-Heerlijk grote stadstuin met privacy en groen
-Prachtige leefkeuken
-Riante leefruimte met ca. 4 meter plafondhoogte
-Stalen taatsdeuren (2022) en stijlvolle pvc visgraatvloer (2022)
-Luxe keuken (2022) met alle inbouwapparatuur én wijnkoeler
-Mooie lichtinval door grote raampartijen, voor én achter vrij
-Buiten schilderwerk achterzijde vernieuwd in 2023
-Tuin opnieuw aangelegd in 2021
-Huidig energielabel A

Video

Details Foto's Beschrijving Video Plattegrond Kaart

Weten wat jouw woning waard is?

Plan vrijblijvend een GRATIS waardebepaling met één van onze makelaars