fbpx
Hoofdfoto
  • Soort Eengezinswoning
  • Type Tussenwoning
  • Bouwjaar 1939
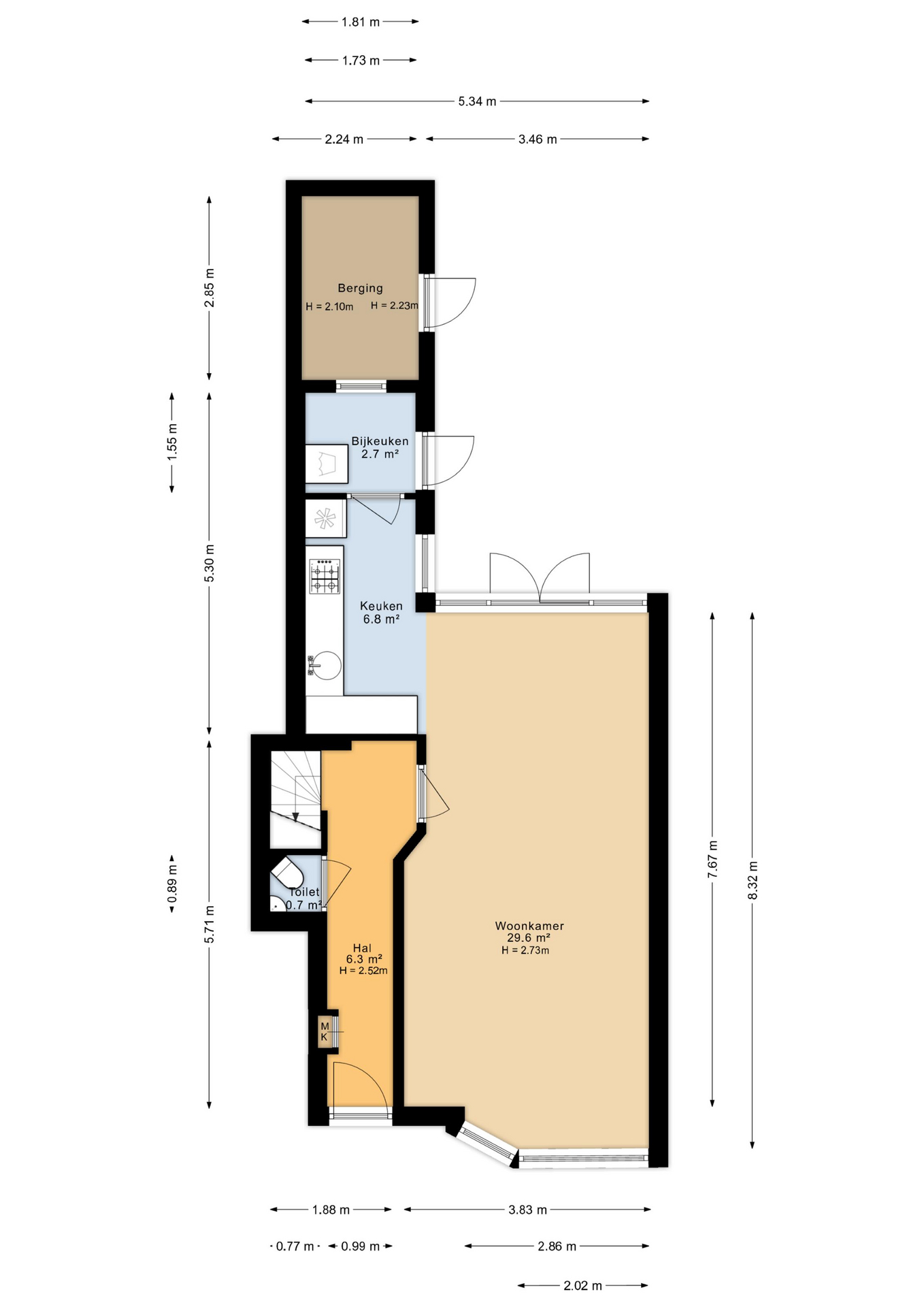
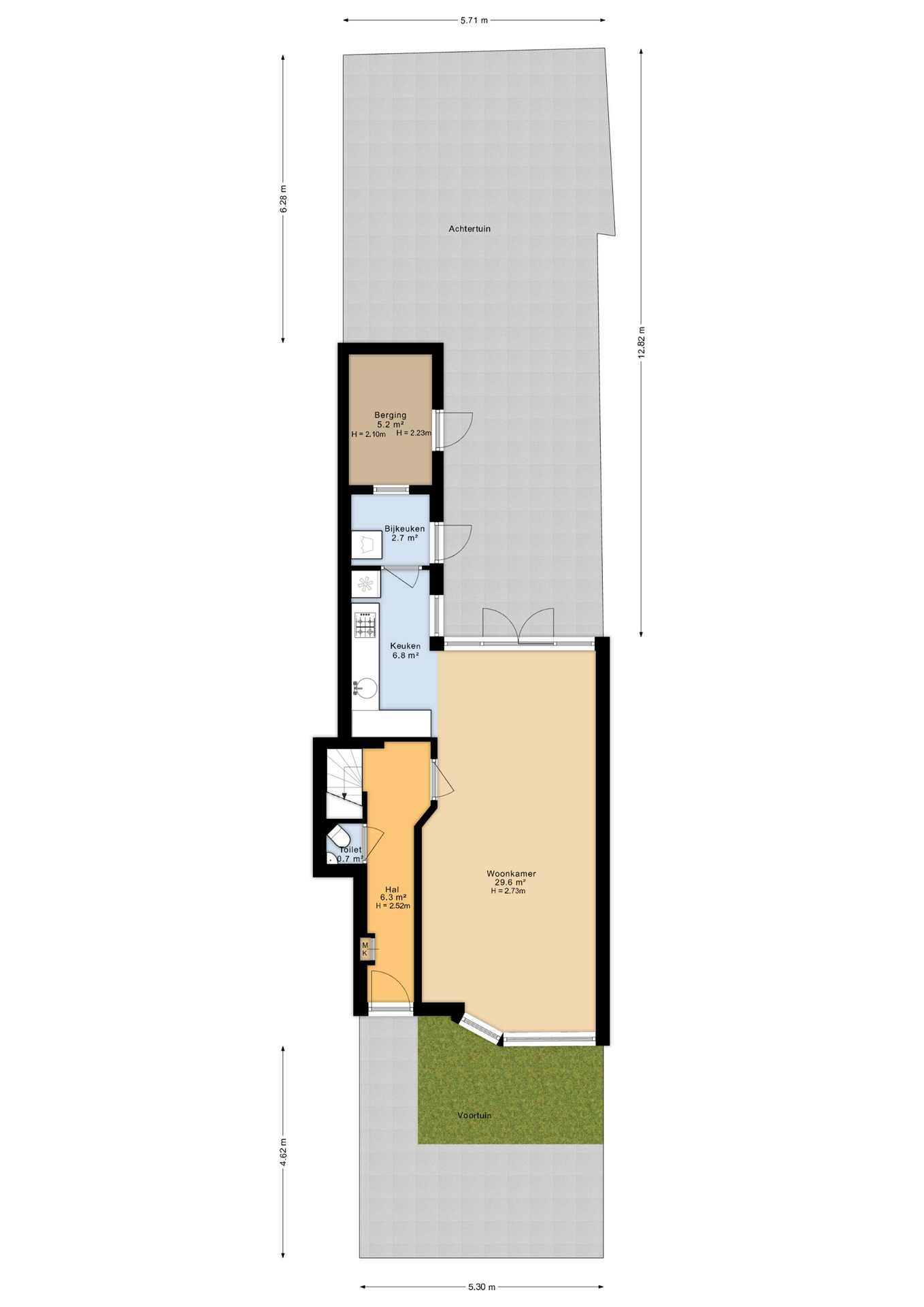
  • Woonoppervlakte 98 m2
  • Perceeloppervlakte 142 m2
  • Inhoud 370 m3
  • Aantal kamers 4
  • Aantal slaapkamers 3
  • Aantal badkamers 1
  • Koopprijs € 289.500,- k.k.
  • Status Verkocht
  • Aanvaarding In overleg
  • Energieklasse C
  • Verwarming CV ketel, Vloerverwarming gedeeltelijk
  • C.V.-Ketel Intergas
  • Combiketel Ja
  • Parkeer faciliteiten Openbaar parkeren
  • Garage Geen garage

Beschrijving Amaliastraat 15

Welkom in dit fijne thuis uit 1939! Op een rustige plek, maar toch dicht bij de stad, staat deze verrassend nette woning die warmte en comfort combineert. Hier proef je de sfeer van vroeger, met de gemakken van nu. 

Aankomst & entree
De karakteristieke gevel verraadt al iets van de jaren '30 charme. Eenmaal binnen voelt het direct verzorgd en huiselijk. 

Woonkamer
De woonkamer is een knusse plek waar je meteen zin krijgt om neer te ploffen. Dankzij de prettige lichtinval en de nette afwerking ademt de ruimte een warme sfeer. Ideaal voor gezellige avonden met een boek of een film. 

Keuken
De keuken is praktisch en behaaglijk. Met de elektrische vloerverwarming is het hier altijd aangenaam, zelfs op koude dagen. De openstaande deuren verbinden de keuken op een mooie manier met de achtertuin- perfect om 's zomers met een kop koffie of glas wijn buiten te genieten.

Tuin 
De tuin is overzichtelijk en gezellig ingericht. Dankzij de openslaande deuren loopt binnen en buiten hier heerlijk in elkaar over. Een fijne plek om te tafelen of gewoon te ontspannen in de zon. 

Eerste verdieping 
Op de verdieping vind je twee ruime slaapkamers. Stuk voor stuk netjes afgewerkt, met genoeg plek voor slapen, werken of spelen. Hier heb je echt de vrijheid om de ruimtes naar eigen wens in te delen! 

Badkamer
De badkamer is royaal van opzet en biedt alle ruimte voor een frisse start van de dag of een ontspannen avondritueel. 

Zolder 
Zodra je via de vaste trap naar zolder gaat, kom je in de derde slaapkamer van de woning. De zolder biedt niet alleen ruimte om te slapen, maar ook om te sporten.

Pluspunten op een rij:
- Openslaande deuren naar de tuin
- Elektrische voelverwarming in de keuken 
- Drie ruime slaapkamers 
- Bouwjaar 1939 
- Perceeloppervlakte 128 m²
- Woonoppervlakte 98 m²

Samenvatting 
Een charmante jaren '30 woning die netjes is onderhouden en verrassend veel comfort biedt. Met drie slaapkamers, een royale badkamer en een fijne tuin is dit een heerlijk thuis waar je je meteen welkom voelt. 

Video

Details Foto's Beschrijving Video Plattegrond Kaart

Weten wat jouw woning waard is?

Plan vrijblijvend een GRATIS waardebepaling met één van onze makelaars