Hoofdfoto
  • Soort Eengezinswoning
  • Type Geschakelde twee onder één kapwoning
  • Bouwjaar 1994
  • Woonoppervlakte 137 m2
  • Perceeloppervlakte 306 m2
  • Inhoud 552 m3
  • Aantal kamers 6
  • Aantal slaapkamers 4
  • Aantal badkamers 1
  • Koopprijs € 425.000,- k.k.
  • Status Beschikbaar
  • Aanvaarding In overleg
  • Energieklasse A+
  • Verwarming CV ketel
  • C.V.-Ketel Remeha
  • Combiketel Ja
  • Parkeer faciliteiten Op eigen terrein
  • Garage Aangebouwd hout
  • Capaciteit 1
  • Garages 1

Beschrijving De Opslach 26

In een rustige en gemoedelijke straat in Ryptsjerk, waar buren elkaar kennen en het buitenleven centraal staat, staat deze geschakelde 2-onder-1-kapwoning uit 1994. Hier woon je in een fijne, dorpse omgeving met weinig verkeer en volop ruimte om te genieten. Tegelijkertijd ligt Ryptsjerk verrassend centraal tussen Leeuwarden en Dokkum, waardoor voorzieningen en steden altijd binnen handbereik zijn. Op korte afstand ligt de Ryptsjerksterpolder, een prachtig natuurgebied waar je als één van de eersten in Nederland kunt schaatsen zodra het vriest.

Via de eigen oprit, waar plek is voor twee auto's, bereik je de woning en de aangebouwde garage. De verzorgde voortuin en de vriendelijke uitstraling geven direct een warm welkom. Je stapt binnen in de hal met toegang tot het toilet, de trapopgang en de woonkamer.

De woonkamer aan de voorzijde voelt licht en ruim aan, met grote raampartijen die zorgen voor een prettige verbinding met buiten. Er is volop plek voor een comfortabele zithoek, waar je heerlijk kunt ontspannen. Aan de achterzijde bevindt zich de royale woonkeuken, echt het hart van het huis. Hier is alle ruimte voor een grote eettafel, lange avonden tafelen en gezellig samen zijn. De keuken is praktisch ingericht en staat in directe verbinding met de tuin.

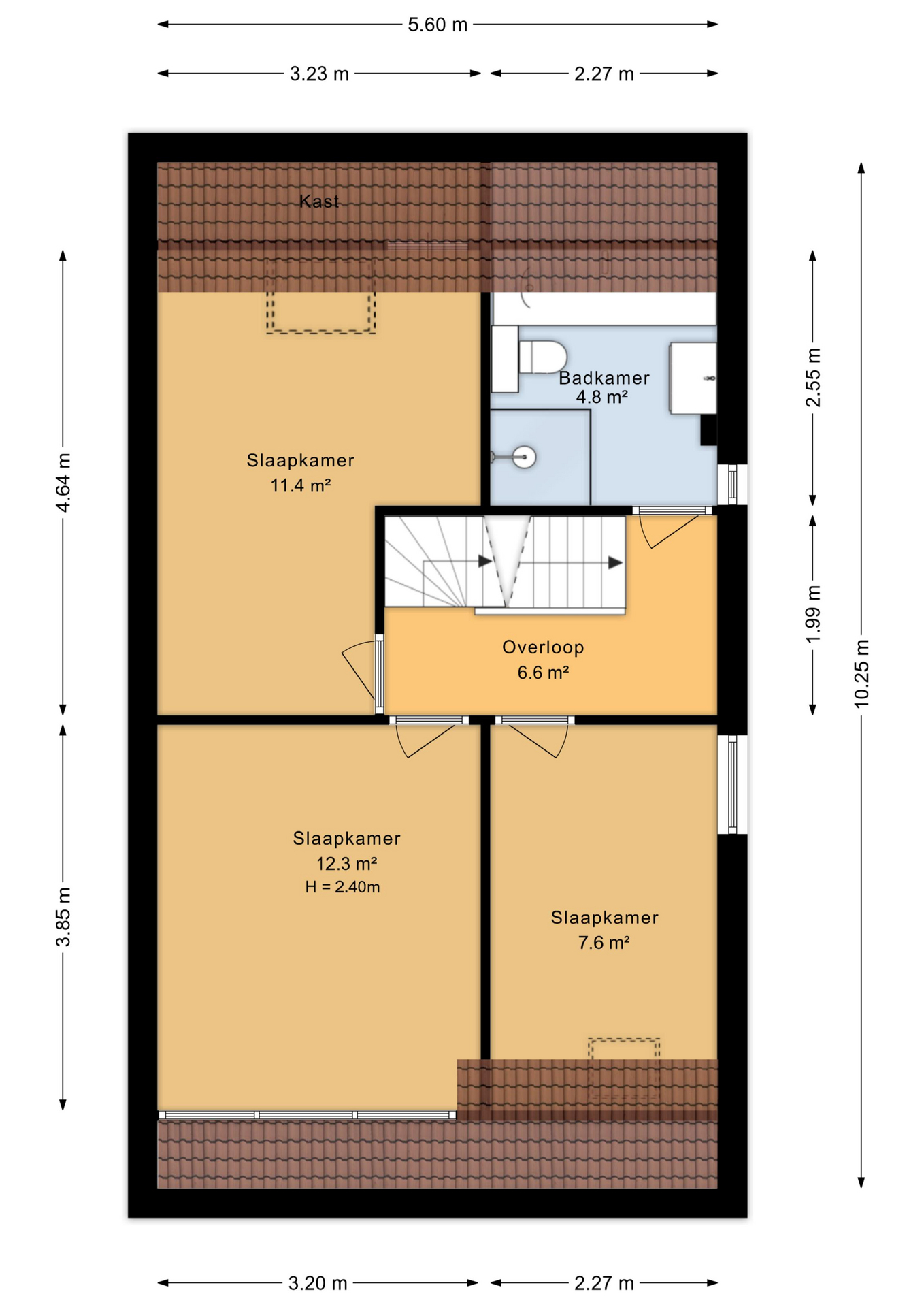
Op de eerste verdieping zijn drie slaapkamers aanwezig, stuk voor stuk prettig van formaat en flexibel in te richten als slaap-, werk- of hobbykamer. De badkamer is verzorgd en compleet met onder andere een ligbad, douche en wastafel. De tweede verdieping biedt nog eens een volwaardige vierde slaapkamer en extra bergruimte, wat zorgt voor verrassend veel woonruimte. De woning beschikt over een woonoppervlakte van 137 m2, waardoor je hier echt de ruimte hebt.

De achtertuin ligt op het oosten en is een heerlijke plek om de dag te beginnen met de eerste zon. Dankzij het perceel waar de woning opstaat van 306 m2 is er volop ruimte om te zitten, te spelen en te genieten van het buitenleven. De tuin is verzorgd aangelegd en biedt zowel zon als schaduw, waardoor je hier op elk moment van de dag een fijne plek vindt.

Pluspunten aan de woning
- 22 Zonnepanelen
- Royale en gezellig woonkeuken
- Vier volwaardige slaapkamers
- Rustige straat met weinig verkeer
- Parkeren op eigen terrein voor twee auto's
- Cv-ketel is in eigendom

Kortom: Een verrassend ruime en comfortabele gezinswoning op een fijne, rustige plek in Ryptsjerk, waar je elke dag geniet van ruimte, licht en een ontspannen woonomgeving.

Video

Details Foto's Beschrijving Video Plattegrond Kaart

Weten wat jouw woning waard is?

Plan vrijblijvend een GRATIS waardebepaling met één van onze makelaars