Hoofdfoto
  • Soort Eengezinswoning
  • Type Twee onder één kapwoning
  • Bouwjaar 1961
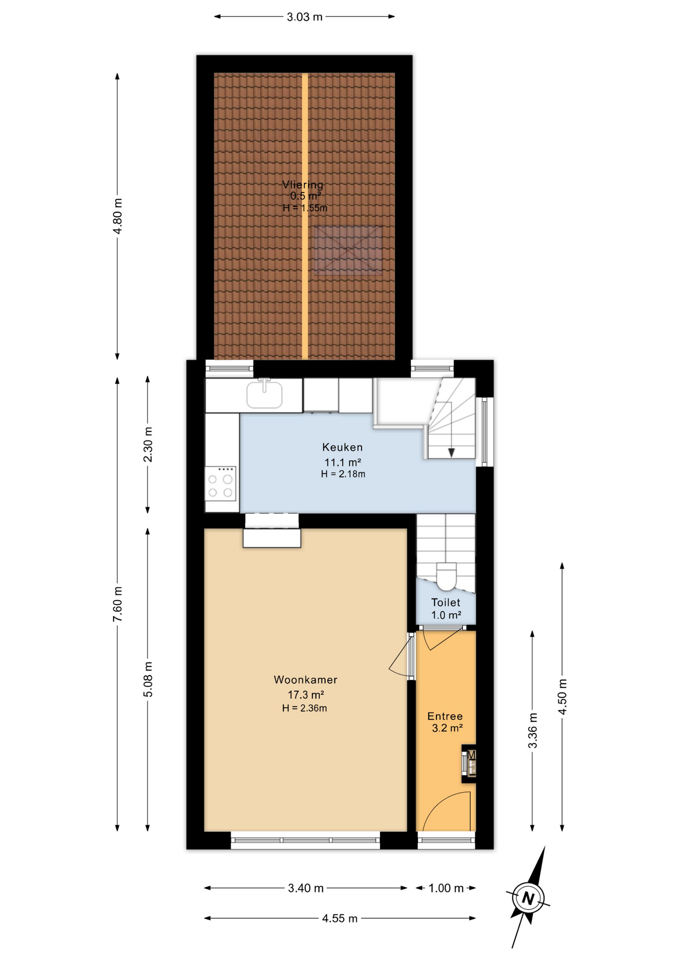
  • Woonoppervlakte 69 m2
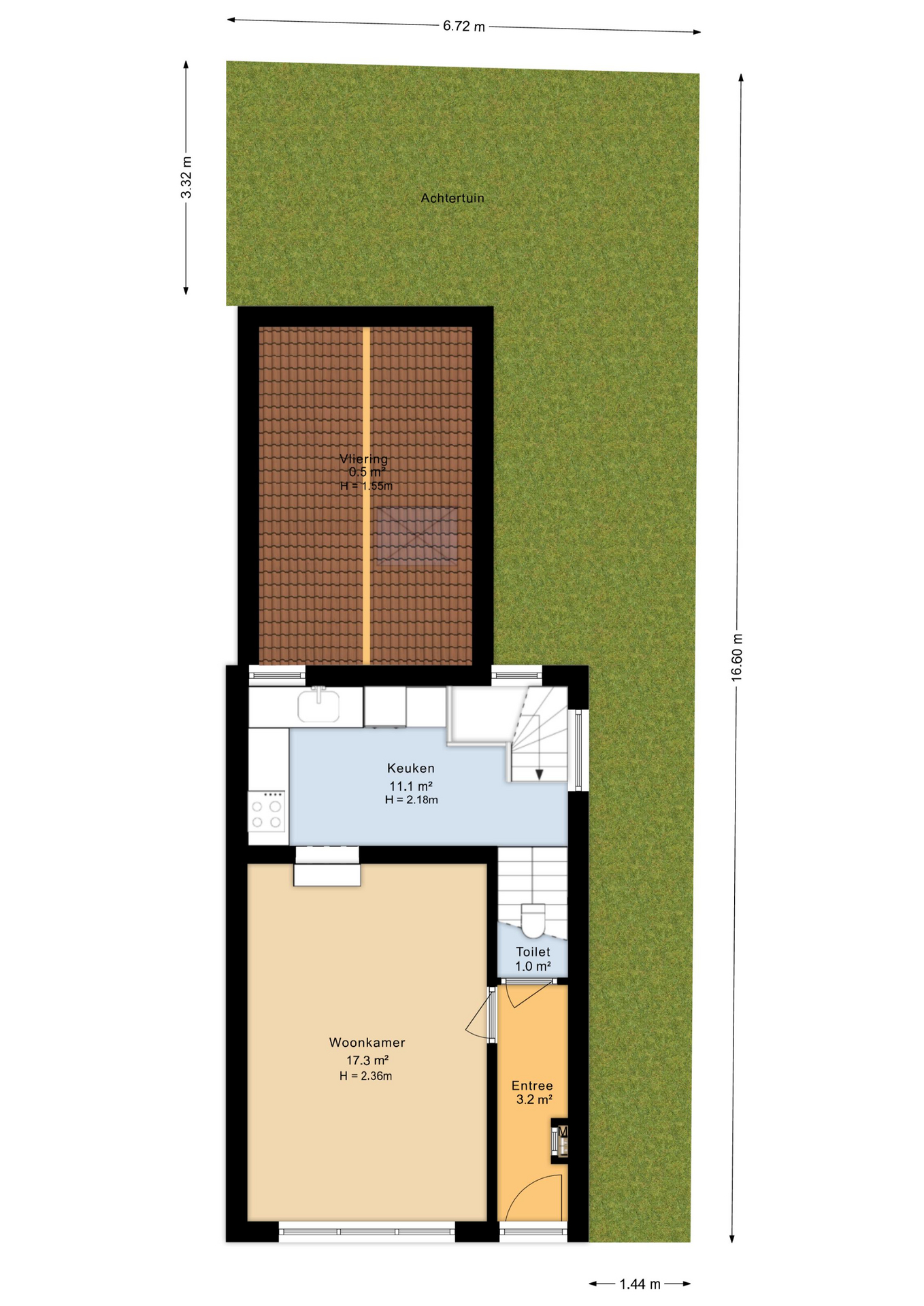
  • Perceeloppervlakte 110 m2
  • Inhoud 291 m3
  • Aantal kamers 6
  • Aantal slaapkamers 1
  • Aantal badkamers 1
  • Liggingen Vrij uitzicht, Open ligging, Landelijk gelegen
  • Koopprijs € 250.000,- k.k.
  • Status Onder bod
  • Aanvaarding In overleg
  • Energieklasse C
  • Verwarming CV ketel
  • C.V.-Ketel Intergas
  • Isolatie Dakisolatie, Muurisolatie, Vloerisolatie
  • Combiketel Ja
  • Parkeer faciliteiten Openbaar parkeren
  • Garage Geen garage

Beschrijving Oudebildtdijk 30

Gelegen aan de Oudebildtdijk in Oudebildtzijl woon je hier met een prachtig vrij uitzicht dat nooit verveelt. Rust, ruimte en het weidse landschap bepalen hier dagelijks het decor. Een plek waar je echt even loskomt van de drukte, terwijl je toch alle basisvoorzieningen binnen bereik hebt.

Je komt aan bij deze 2-onder-1-kap woning en merkt meteen het knusse karakter. Een fijne, overzichtelijke woning die precies biedt wat je nodig hebt. We stappen naar binnen. De woonkamer voelt direct warm en huiselijk aan. Een plek waar je ’s avonds lekker neerploft en overdag geniet van het licht dat naar binnen valt. Alles is compact maar slim ingedeeld, waardoor het verrassend ruim aanvoelt.

Door naar de keuken. En dit is echt een fijne plek. Vernieuwd en van alle gemakken voorzien, met onder andere een Quooker, koelkast en inductiekookplaat met geïntegreerd afzuigsysteem. Wat deze keuken extra bijzonder maakt, is het vrije uitzicht aan alle zijden. Koken met uitzicht, dat maakt het net even leuker.

De badkamer is recent vernieuwd en dat zie je meteen. Strak afgewerkt, frisse materialen en een fijne, moderne uitstraling die direct een gevoel van comfort geeft. Dankzij de vloerverwarming stap je hier elke ochtend warm de dag in, wel zo prettig. Het is zo’n ruimte waar alles klopt: praktisch ingericht, maar ook echt een plek om even tot rust te komen.

De woning beschikt over één slaapkamer die precies biedt wat je nodig hebt: een fijne, rustige plek om je even terug te trekken. De kamer voelt knus en prettig aan en is praktisch in te richten met een comfortabel bed en kastruimte. Het is een slaapkamer die past bij de woning: niet groot, maar wel compleet en verzorgd. Ideaal voor een starter of alleenstaande die comfortabel wil wonen, zonder onnodige ruimte en zonder concessies te doen aan sfeer.

Buiten ligt er een mooie kans om het geheel verder uit te breiden. Het naastgelegen perceel is namelijk bij te kopen, waardoor je hier eenvoudig extra buitenruimte creëert. Of je nu droomt van een royale tuin, een fijne plek om te zitten of juist wat meer groen om je heen wilt, hier kun je het helemaal naar eigen wens invullen. Een waardevolle toevoeging die deze woning nét dat beetje extra geeft.

Een prachtige woning; instapklaar, overzichtelijk en met een uitzicht waar je elke dag blij van wordt!

Pluspunten op een rij:
Instapklaar wonen zonder klussen
Vrij uitzicht dat nooit verveelt
Moderne keuken en badkamer
Compact en efficiënt ingedeeld
Extra tuin mogelijk bij te kopen

Video

Details Foto's Beschrijving Video Plattegrond Kaart

Weten wat jouw woning waard is?

Plan vrijblijvend een GRATIS waardebepaling met één van onze makelaars