fbpx
Hoofdfoto
  • Soort Eengezinswoning
  • Type Hoekwoning
  • Bouwjaar 2021
  • Woonoppervlakte 130 m2
  • Perceeloppervlakte 247 m2
  • Inhoud 471 m3
  • Aantal kamers 5
  • Aantal slaapkamers 4
  • Aantal badkamers 1
  • Koopprijs € 495.000,- k.k.
  • Status Verkocht
  • Aanvaarding In overleg
  • Energieklasse A+++
  • Verwarming Warmtepomp
  • Isolatie Volledig geïsoleerd
  • Combiketel Nee
  • Parkeer faciliteiten Op eigen terrein
  • Garage Geen garage

Beschrijving Wergeasterdyk 58e

Wergeasterdyk 58e in Leeuwarden – duurzaam, licht en instapklaar
Welkom in De Klamp! Deze moderne hoekwoning aan de Wergeasterdyk 58e combineert energiezuinig wonen met comfort en stijl. Dankzij de vele raampartijen, de glazen deur naar de woonkamer en de ligging op de hoek is dit een heerlijk lichte woning. Met een luxe keuken, vier slaapkamers, een zonnige tuin, eigen ruime oprit én toegang tot de gezamenlijke steiger woon je hier comfortabel én toekomstbestendig.

Ruimte en licht op de begane grond
Je stapt binnen in de hal met modern toilet en uitgebreide meterkast, helemaal zoals je mag verwachten bij nieuwbouw. Via de glazen deur bereik je de woonkamer: een lichte, open ruimte met grote raampartijen die zorgen voor een fijne sfeer. De PVC-visgraatvloer geeft een stijlvolle uitstraling.
Aan de voorzijde bevindt zich de moderne zwarte keuken, volledig uitgerust met inductiekookplaat met geïntegreerde afzuiging, koelkast, vriezer, vaatwasser en oven. Een plek waar koken en gezelligheid samenkomen.

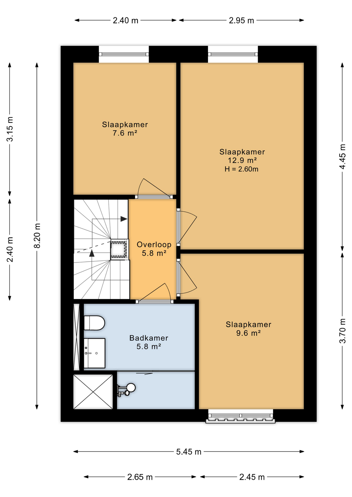
Verdiepingen met comfort en mogelijkheden
Op de eerste verdieping vind je drie slaapkamers en een moderne badkamer. Deze is voorzien van een wastafelmeubel, toilet en douche. Achter de ombouw bevindt zich de boiler.
De tweede verdieping biedt nog een vierde slaapkamer en herbergt de technische installatie van de warmtepomp. Hiermee is de woning voorzien van de nieuwste technieken voor comfortabel en duurzaam wonen.

Zonnige tuin en gezamenlijke steiger
De tuin is praktisch en slim ingericht. De berging is verplaatst naar achteren en voorzien van een overkapping, waardoor je hier een fijne plek hebt om beschut buiten te zitten. Dankzij de ligging geniet je volop van de zon. Naast de woning bevindt zich een achterom, en via de gezamenlijke eigendom van 1/9e deel kun je eenvoudig naar de steiger lopen – ideaal voor waterliefhebbers.

Bijzonderheden:
• Moderne hoekwoning met energielabel A+++
• Woonkamer met veel licht dankzij glazen deur en raampartijen
• PVC-visgraatvloer en luxe zwarte keuken met inbouwapparatuur
• Moderne badkamer met douche, toilet en wastafelmeubel
• Tuin met berging en overkapping
• Eigen oprit met ruimte voor 2 auto's
• Achterom en toegang tot gezamenlijke steiger
• 15 zonnepanelen
• Warmtepomp

Duurzaam en instapklaar
Met zijn energiezuinige voorzieningen, moderne afwerking en slimme indeling is deze woning helemaal klaar voor de toekomst. Een ideaal thuis voor wie licht, ruimte en duurzaamheid wil combineren met een fijne woonomgeving dichtbij de stad.

Video

Details Foto's Beschrijving Video Plattegrond Kaart

Weten wat jouw woning waard is?

Plan vrijblijvend een GRATIS waardebepaling met één van onze makelaars