Hoofdfoto
  • Soort Eengezinswoning
  • Type Hoekwoning
  • Bouwjaar 1936
  • Woonoppervlakte 103 m2
  • Perceeloppervlakte 193 m2
  • Inhoud 513 m3
  • Aantal kamers 5
  • Aantal slaapkamers 3
  • Aantal badkamers 1
  • Liggingen In woonwijk
  • Koopprijs € 338.500,- k.k.
  • Status Verkocht onder voorbehoud
  • Aanvaarding In overleg
  • Energieklasse E
  • Verwarming CV ketel
  • C.V.-Ketel Remeha
  • Isolatie Dubbelglas
  • Combiketel Ja
  • Parkeer faciliteiten Op eigen terrein
  • Garage Aangebouwd steen
  • Capaciteit 1
  • Garages 1

Beschrijving Paulus Potterstraat 38

Paulus Potterstraat 38: een charmante jaren ’30 hoekwoning met verrassend veel ruimte, een royale garage en een fijne ligging in het geliefde Huizum-West!

Hier in Huizum-West woon je rustig en vertrouwd, met alles wat het dagelijks leven prettig maakt dichtbij. De wijk voelt gemoedelijk, met gezellige straten, veel groen en een fijne mix van gezinnen en buurtbewoners die elkaar kennen. Op loopafstand liggen scholen, winkels en het Julianapark voor een rondje wandelen of even ontspannen. Ook het bruisende centrum van Leeuwarden is te voet bereikbaar, net als het station en de uitvalswegen. Een plek waar je comfortabel woont en toch overal zó bent.

Aan de Paulus Potterstraat staat deze karaktervolle woning op een prettige hoeklocatie. De brede haag langs de woning zorgt voor veel privacy en omsluit de L-vormige voortuin die langs de voor- en zijkant van de woning loopt. Een fijne plek om op warme dagen te genieten van het buitenleven. De gevel is netjes en de klassiek groene luifels geven het huis die herkenbare jaren ’30 uitstraling.

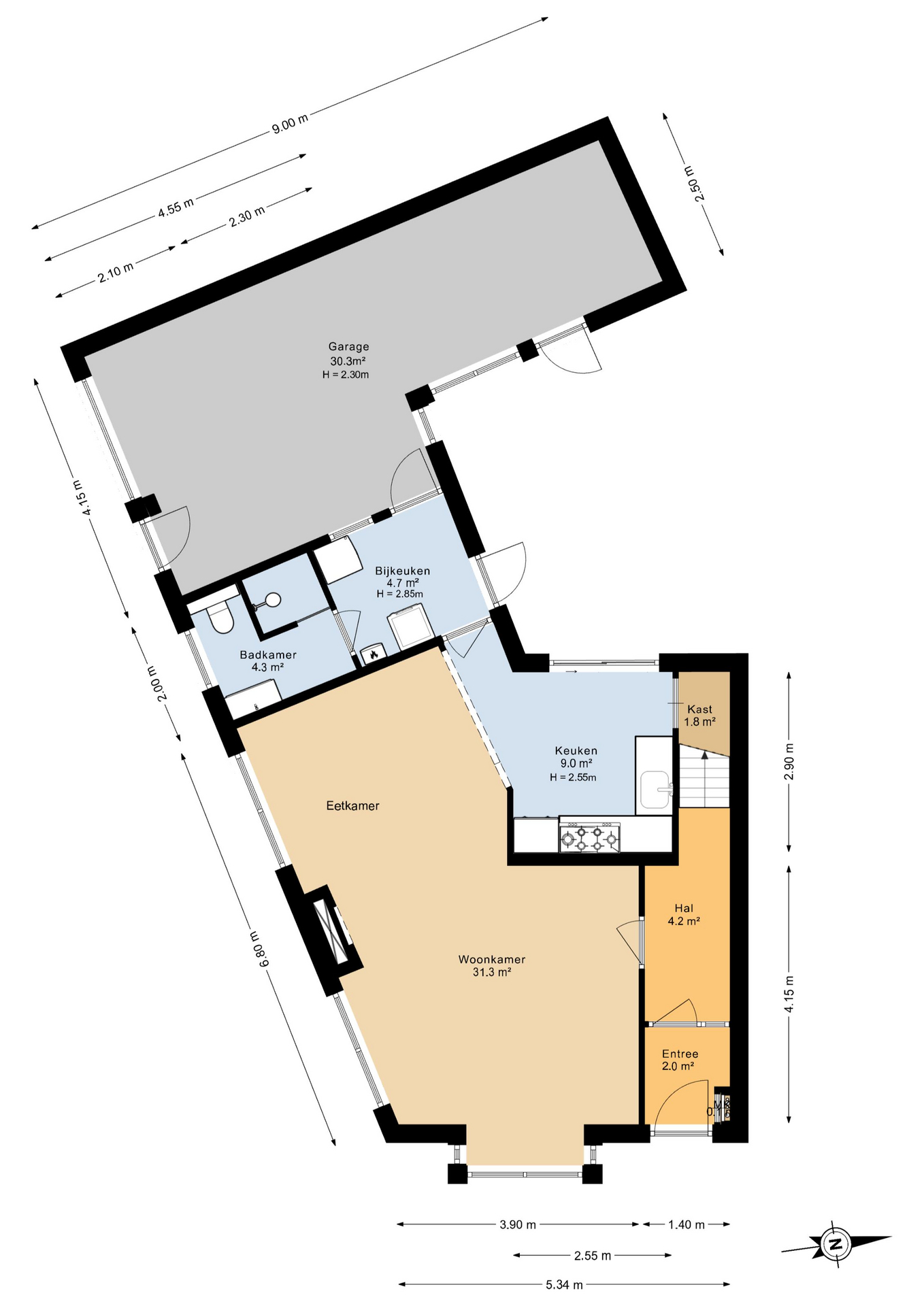
Via de voordeur komen we binnen in de hal met charmant betegeld voorportaal. In de hal vinden we tevens de moderne meterkast en er is voldoende ruimte voor jassen en schoenen. We lopen linksaf de woonkamer in, waar het licht direct opvalt. Dankzij ramen aan zowel de voor- als zijkant voelt de ruimte open en prettig. De parketvloer vormt een mooie basis en de karakteristieke schouw met decoratieve details zorgt voor een warme, klassieke sfeer. Tegelijkertijd is de afwerking strak en fris. Er is meer dan voldoende ruimte voor een comfortabele zithoek en een gezellige eethoek.

De woonkamer staat in halfopen verbinding met de keuken, die netjes is uitgevoerd en voorzien van inbouwapparatuur zoals een koelkast en vaatwasser, aangevuld met gaspitten en een afzuigkap. Via de schuifpui stap je zo de binnentuin in. Op warme dagen zet je de schuifpui open en lopen binnen en buiten moeiteloos in elkaar over. De binnentuin is keurig betegeld en heerlijk beschut, een fijne plek om in alle rust te genieten.

Aansluitend aan de keuken ligt de bijkeuken met wasmachineaansluiting en de cv-ketel (Remeha, 2018). Vanuit hier is ook de badkamer bereikbaar, ingericht met een douche, toilet en wastafelmeubel. De wandkasten zorgen voor extra opbergruimte: praktisch én prettig in het dagelijks gebruik.

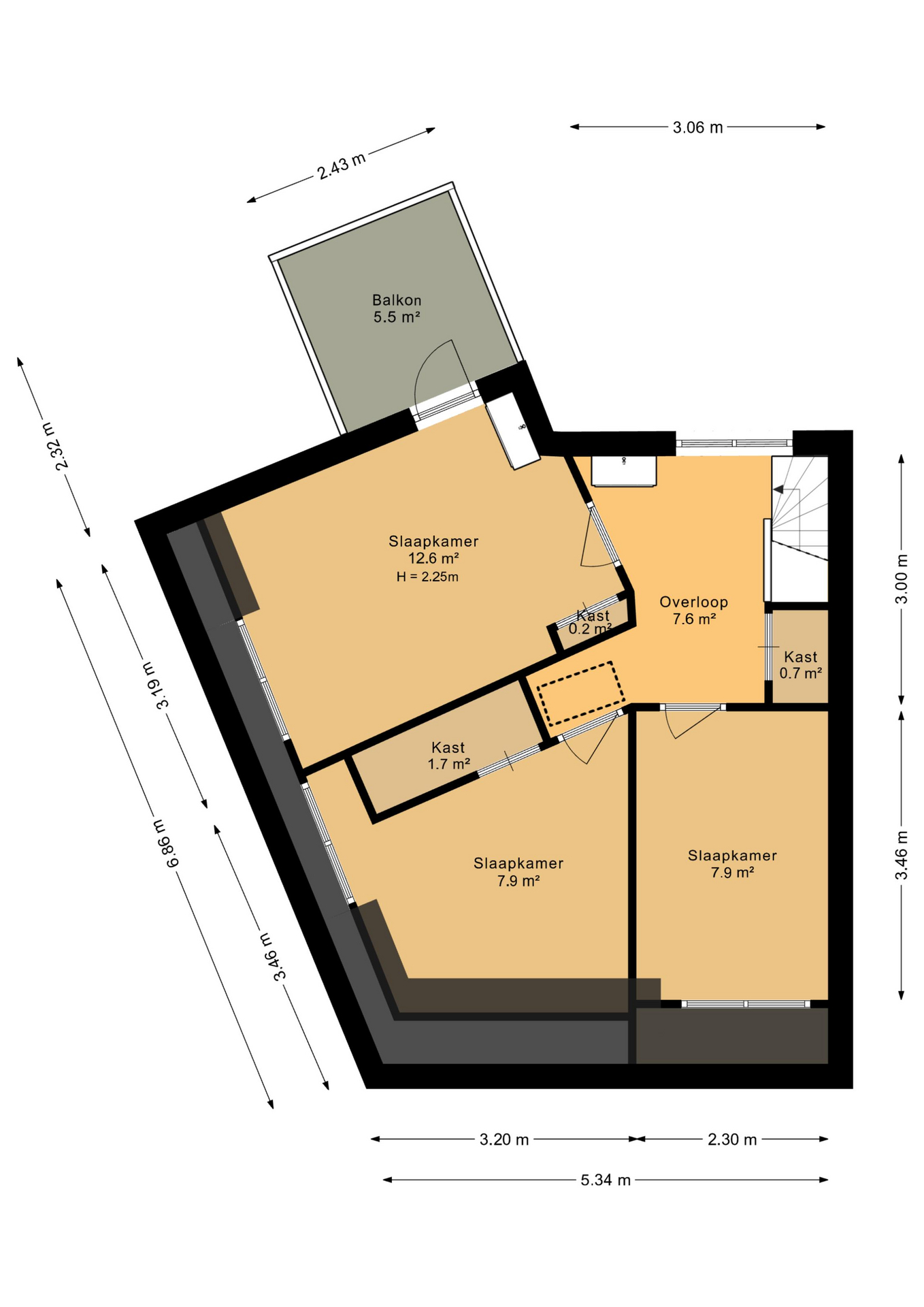
Via de hal gaan we naar de eerste verdieping. De overloop geeft toegang tot drie slaapkamers. De slaapkamer aan de achterzijde heeft via een deur toegang tot het dak. Vanuit de overloop is ook de zolder bereikbaar via een vlizotrap. Ondanks de schuine wanden is dit een verrassend ruime plek: de huidige bewoners hebben hier aan één zijde een praktische en keurig afgewerkte werkkamer gerealiseerd. Ook voor het opbergen van spullen die je liever niet in het zicht hebt, zoals seizoensgebonden spullen en overige opslag, is deze zolder zéér geschikt.

Dan nog een héle leuke verrassing, en echt bijzonder voor een dergelijke jaren ’30 woning: de royale garage van maar liefst 30 m²! Deze ruimte is netjes en biedt veel plek voor bijvoorbeeld fietsen, scooter, gereedschap en nog véél meer. De garage is bereikbaar via de zijkant van de woning, via de bijkeuken én via de binnentuin. Een uiterst praktische ruimte met volop mogelijkheden dankzij het royale formaat.

Alle pluspunten op een rij:
- Fijne hoekwoning in het geliefde Huizum-West
- Privacyvolle L-vormige voortuin met brede haag voor privacy
- Nette keuken met schuifpui naar beschutte binnentuin
- Lichte woonkamer door ramen aan voor- en zijkant
- Drie slaapkamers
- Extra bergruimte én praktische werkkamer op zolder
- Royale garage van 30 m² met meerdere toegangen
- Zonnepanelen: 7 stuks

Kortom: Paulus Potterstraat 38 is een warm en karaktervol huis met verrassend veel ruimte, een unieke garage en een fijne ligging in Leeuwarden. Nieuwsgierig geworden? Neem gerust contact op en plan een bezichtiging.

Video

Details Foto's Beschrijving Video Plattegrond Kaart

Weten wat jouw woning waard is?

Plan vrijblijvend een GRATIS waardebepaling met één van onze makelaars