Hoofdfoto
  • Soort Eengezinswoning
  • Type Tussenwoning
  • Bouwjaar 1981
  • Woonoppervlakte 92 m2
  • Perceeloppervlakte 145 m2
  • Inhoud 340 m3
  • Aantal kamers 4
  • Aantal slaapkamers 3
  • Aantal badkamers 1
  • Liggingen In woonwijk, Beschutte ligging
  • Koopprijs € 269.500,- k.k.
  • Status Onder bod
  • Aanvaarding In overleg
  • Energieklasse A
  • Verwarming CV ketel
  • C.V.-Ketel Intergas
  • Isolatie Dakisolatie, Muurisolatie, Vloerisolatie
  • Combiketel Ja
  • Parkeer faciliteiten Openbaar parkeren
  • Garage Geen garage

Beschrijving Jongamastate 7

In een rustige en beschutte woonwijk in Leeuwarden ligt deze verzorgde tussenwoning aan de Jongamastate 7. Een fijne plek waar je woont met alle dagelijkse voorzieningen binnen handbereik en tegelijkertijd geniet van een prettige, ontspannen woonomgeving. Scholen, een winkelcentrum en recreatiegebied De Groene Ster bevinden zich op korte afstand, waardoor je hier niet alleen comfortabel woont, maar ook optimaal profiteert van alles wat de omgeving te bieden heeft. Hier ervaar je de rust van de wijk, terwijl de stad nooit ver weg is.

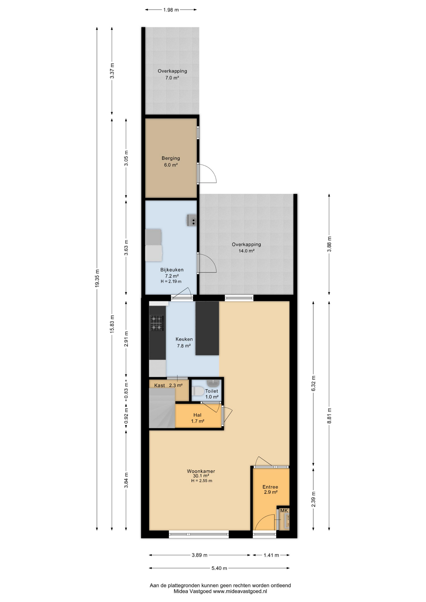
Bij aankomst valt direct de nette uitstraling van de woning op. De voortuin zorgt voor een vriendelijke entree en biedt een mooie overgang van buiten naar binnen. Je stapt de woning binnen in de hal, waar je toegang hebt tot het toilet, de trapopgang en de leefruimte.

De woonkamer voelt licht en uitnodigend aan, met een prettige indeling die ruimte biedt voor zowel een comfortabele zithoek als een gezellige eethoek. De grote raampartijen zorgen voor een fijne lichtinval en verstreken het open karakter van de ruimte. Aan de achterzijde staat de woonkamer in verbinding met de keuken, wat zorgt voor een natuurlijke flow in het dagelijkse gebruik.

De keuken is praktisch ingericht en voorzien van de nodige inbouwapparatuur. Hier heb je voldoende werk- en opbergruimte, waardoor koken extra gezellig wordt. Vanuit de keuken bereik je de bijkeuken, een waardevolle extra ruimte voor witgoed en opslag, met directe toegang naar de tuin.

Op de eerste verdieping bevinden zich meerdere slaapkamers, elk met een eigen sfeer en goed in te richten naar wens. Of je nu een gezin hebt, thuiswerkplek nodig hebt of een hobbyruimte wilt creëren, hier kan het allemaal. De badkamer is verzorgd en functioneel, ingericht met de voorzieningen die je dagelijks nodig hebt.

De tweede verdieping biedt extra ruimte, ideaal als bergzolder of eventueel in te richten als extra kamer. Deze verdieping vergroot de mogelijkheden van de woning aanzienlijk.

De achtertuin ligt op het noordoosten en is onderhoudsvriendelijk aangelegd. Dankzij de beschutte ligging kun je hier al snel comfortabel buiten zitten. Of je nu kiest voor een rustige ochtend met een kop koffie of een gezellige avond met vrienden, deze tuin biedt een fijne buitenruimte.

Pluspunten aan de woning
- Gelegen in een rustige en beschutte woonwijk
- Energielabel A (geldig tot 2033)
- Praktische indeling met lichte woonkamer
- Bijkeuken met extra bergruimte en toegang tot de tuin
- Meerdere slaapkamers en extra ruimte op zolder
- Onderhoudsvriendelijke tuin op het Noordoosten

Kortom: een comfortabele en energiezuinige gezinswoning op een fijne plek in Leeuwarden, waar je zo in kunt trekken en je je direct thuis voelt.

Video

Details Foto's Beschrijving Video Plattegrond Kaart

Weten wat jouw woning waard is?

Plan vrijblijvend een GRATIS waardebepaling met één van onze makelaars