fbpx
Hoofdfoto
  • Soort Eengezinswoning
  • Type Eindwoning
  • Bouwjaar 1934
  • Woonoppervlakte 82 m2
  • Perceeloppervlakte 120 m2
  • Inhoud 335 m3
  • Aantal kamers 5
  • Aantal slaapkamers 3
  • Aantal badkamers 1
  • Liggingen Aan rustige weg, In woonwijk
  • Koopprijs € 275.000,- k.k.
  • Status Onder bod
  • Aanvaarding In overleg
  • Energieklasse C
  • Verwarming CV ketel
  • C.V.-Ketel Remeha Avanta 28
  • Isolatie Dakisolatie, Muurisolatie
  • Combiketel Ja
  • Parkeer faciliteiten Openbaar parkeren
  • Garage Geen garage

Beschrijving Govert Flinckstraat 31

Charmante jaren ’30 eindwoning in het gewilde Huizum-West

In het geliefde Huizum-West, op een steenworp afstand van het centrum maar toch met dat prettige dorpsgevoel, woon je in een rustige en betrokken straat waar buren elkaar echt kennen. Voorzieningen zoals station, scholen en uitvalswegen liggen dichtbij, terwijl de Govert Flinckstraat zelf juist die ontspannen, vriendelijke sfeer biedt. Deze jaren ’30 eindwoning uit 1934 combineert karakter en licht met verrassend veel praktisch gemak.

Authentieke leefruimtes met een warm hart
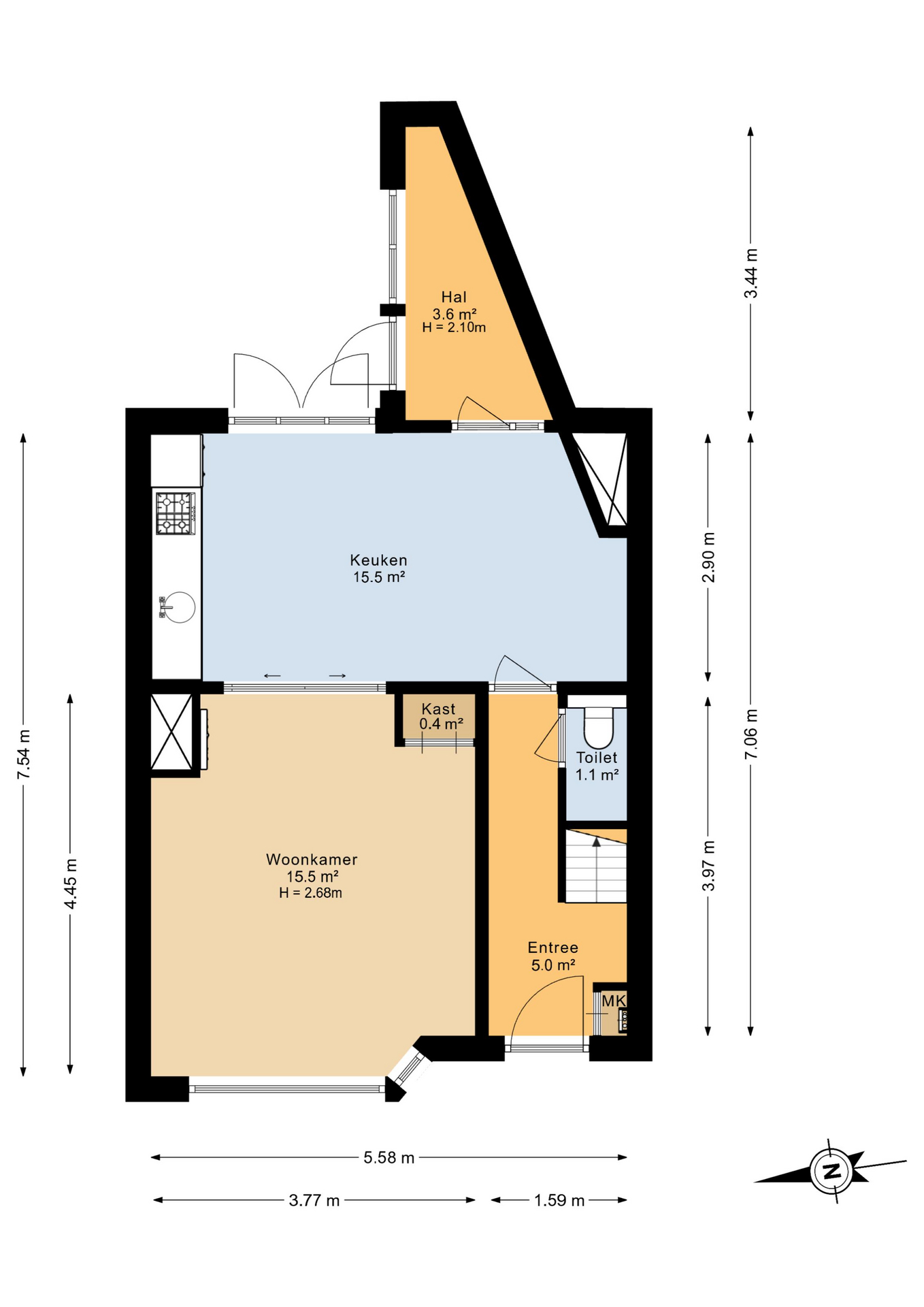
Achter de nette voortuin en de charmante jaren ’30 gevel kom je binnen in de hal met hoog plafond, meterkast, trapkast en het in 2024 vernieuwde toilet. Vanuit hier loop je door naar de leefruimtes, die met elkaar verbonden zijn maar toch elk hun eigen sfeer hebben. We stappen eerst de keuken binnen. Deze royale kamer heeft een karakteristiek balkenplafond en vormt het bruisende middelpunt van de woning, waar heerlijk getafeld kan worden met zicht op de tuin door de openslaande deuren. Via de ensuite deuren stap je de sfeervolle woonkamer in, eveneens met balkenplafond en compleet met lichte erker, inbouwkast, inbouwspotjes en de voormalige houtkachel die nog als stijlaccent aanwezig is (niet meer bruikbaar). Achter de keuken ligt de praktische bijkeuken met directe toegang tot de tuin. Binnen voelt alles licht, warm en toegankelijk, precies zoals een jaren ’30 huis hoort te zijn.

Een tuin die uitnodigt tot ontspannen
De onderhoudsvriendelijke achtertuin is strak en verzorgd, met een nette houten berging en een achterom. Via de openslaande deuren loopt de tuin mooi door vanuit de leefruimte. In de steeg kunnen de containers netjes uit het zicht worden geplaatst.

Drie slaapkamers en een complete badkamer op de verdieping
De eerste verdieping biedt drie nette slaapkamers, allemaal met het charmante balkenplafond dat veel sfeer geeft. In 2025 zijn de stopcontacten op de overloop en in de kleine kamer vernieuwd. De badkamer is praktisch ingedeeld en voorzien van een wastafel, ligbad en douche, compleet en functioneel voor dagelijks gebruik.

Opgeknapte zolder met extra mogelijkheden
De opgeknapte zolder vormt een fijne bonusruimte voor hobby’s, werk of opslag, het dakraam zorgt voor daglicht en hier vind je tevens de C.V.-ketel (Remeha Avanta 28, 2017, eigendom).

Pluspunten op een rij
- In de geliefde wijk Huizum-West
- Op steenworp afstand van het bruisende centrum van Leeuwarden
- Jaren ’30 sfeer met erker, ensuite deuren en balkenplafonds
- Drie slaapkamers en complete badkamer
- Onderhoudsvriendelijke tuin met berging en achterom
- Bijkeuken voor extra gemak
- Vrijwel volledig voorzien van kunststof kozijnen, behalve voordeur (geschilderd in 2022)
- Vernieuwd modern toilet (2024)
- Eindwoning met extra licht en privacy
- Rustige, betrokken straat met voorzieningen dichtbij

Kortom:
Een sfeervolle jaren ’30 eindwoning op een fantastische plek in Huizum-West, waar licht en karakter samenkomen met hedendaags comfort, een fijne gezinswoning op een plek waar je zó verliefd op wordt.

Video

Details Foto's Beschrijving Video Plattegrond Kaart

Weten wat jouw woning waard is?

Plan vrijblijvend een GRATIS waardebepaling met één van onze makelaars