fbpx
Hoofdfoto
  • Soort Eengezinswoning
  • Type Tussenwoning
  • Bouwjaar 2021
  • Woonoppervlakte 139 m2
  • Perceeloppervlakte 178 m2
  • Inhoud 489 m3
  • Aantal kamers 6
  • Aantal slaapkamers 5
  • Aantal badkamers 1
  • Liggingen In woonwijk, Vrij uitzicht
  • Koopprijs € 475.000,- k.k.
  • Status Beschikbaar
  • Aanvaarding In overleg
  • Energieklasse A
  • Verwarming Vloerverwarming gedeeltelijk
  • Isolatie Volledig geïsoleerd, HR glas
  • Combiketel Nee
  • Parkeer faciliteiten Openbaar parkeren
  • Garage Geen garage

Beschrijving De Ljip 9

Aan de Ljip woon je in een jonge, frisse woonomgeving waar alles nog net dat nieuwe gevoel heeft. De straat is overzichtelijk en rustig, met een prettige mix van gezinnen en buurtgevoel. Een fijne plek waar je ’s ochtends ontspannen de dag begint en aan het eind van de middag net zo rustig weer thuiskomt.

Bij nummer 9 valt meteen de moderne uitstraling op. Een woning uit 2021, strak en verzorgd, waar je zonder enige twijfel zo naar binnen loopt. Parkeren doe je op de openbare parkeerplaats, maar wel met een eigen plek: dat kleine detail maakt het dagelijkse gemak meteen groot.

Je komt binnen in de hal, waar alles klopt. De meterkast is modern uitgevoerd, de waterontharder is netjes geplaatst en het toilet is goed en fris. Vanaf hier loop je door naar de woonkamer, en daar gebeurt het. Licht, ruimte en een prettige open sfeer bepalen hier de toon. De woonkamer voelt uitnodigend aan, een plek waar je moeiteloos leeft, speelt, ontspant en samenkomt.

De halfopen keuken sluit hier mooi op aan. Praktisch ingedeeld, maar met genoeg openheid om in contact te blijven met de woonkamer. De keuken is compleet uitgerust met een heetwaterkraan, inductiekookplaat, vaatwasser, koelkast en combimagnetron. Of je nu snel iets klaarmaakt of uitgebreid kookt, alles is aanwezig en logisch geplaatst.

Via de woonkamer stap je de tuin in. Een fijne buitenruimte waar je ’s zomers makkelijk een zitje creëert of gewoon even naar buiten loopt met een kop koffie. Achterin staat een houten schuur, voorzien van elektra, ideaal voor fietsen, gereedschap of hobby’s.

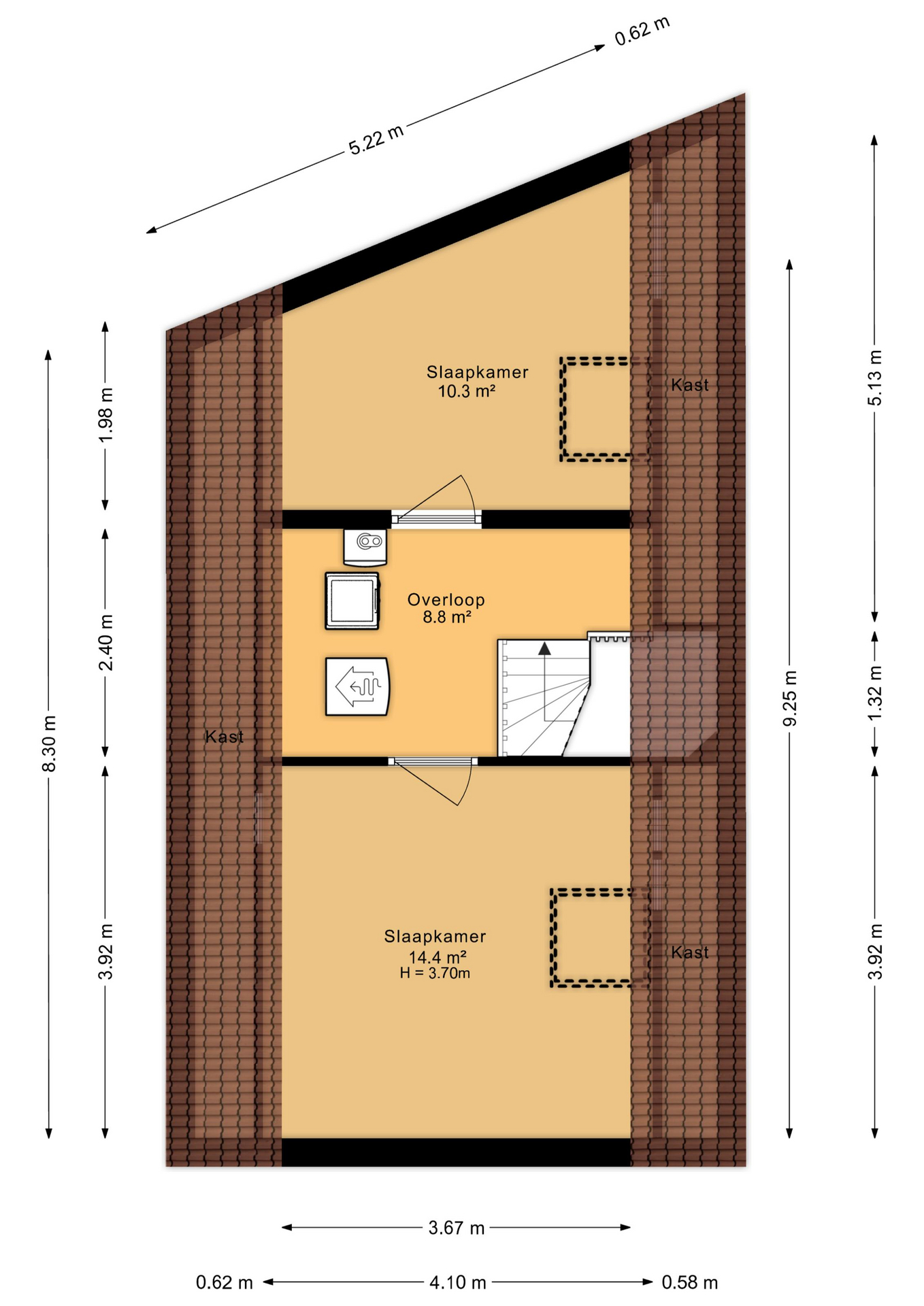
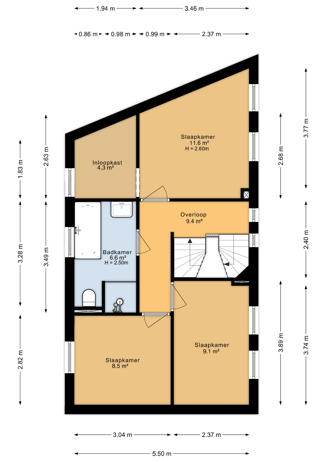
Op de eerste verdieping vind je de overloop, drie slaapkamers en de badkamer. De slaapkamers zijn prettig van formaat en flexibel in te delen, of je ze nu gebruikt als kinder-, werk- of logeerkamer. De badkamer is compleet uitgevoerd met een ligbad, douche, wastafel en toilet. Een fijne, praktische ruimte waar je de dag rustig begint of juist afsluit.

De tweede verdieping maakt het huis echt af. Via de overloop, waar ook de installatie van de warmtepomp is geplaatst, bereik je nog eens twee slaapkamers. Deze verdieping voelt verrassend ruim en biedt volop mogelijkheden. Hier bevinden zich ook de lage temperatuurverwarming in de zolderkamers, passend bij het duurzame karakter van de woning. Ook in de badkamer wordt op deze manier verwarmd, wat bijdraagt aan het comfort én de energiezuinigheid.

Met vijf slaapkamers, een bouwjaar van 2021, energielabel A en een logische, prettige indeling is dit een woning die helemaal klaar is voor de toekomst. Comfortabel, ruim en onderhoudsvriendelijk, zonder dat het kil of onpersoonlijk aanvoelt.

Alle pluspunten op een rij:
- Moderne eengezinswoning, gebouwd in 2021
- Energiezuinig wonen met energielabel A
- Maar liefst vijf slaapkamers, verdeeld over twee verdiepingen
- Lichte woonkamer met een fijne halfopen keuken
- Complete keuken met heetwaterkraan, inductiekookplaat, vaatwasser, koelkast en combimagnetron
- Hal met moderne meterkast, waterontharder en toilet
- Badkamer met ligbad, douche, wastafel en toilet
- Tweede verdieping met twee volwaardige slaapkamers en warmtepompinstallatie
- Fijne tuin met houten schuur, voorzien van elektra
- Openbaar parkeren met een eigen parkeerplaats, herkenbaar aan het huisnummer in de bestrating
- 16 zonnepanelen
- Prachtig uitzicht over het land

Kortom: De Ljip 9 in Leeuwarden is een moderne, instapklare eengezinswoning met vijf slaapkamers, een lichte woonkamer, complete keuken en een fijne tuin. Energiezuinig, comfortabel en gelegen in een rustige, jonge woonomgeving. Zie jij jezelf hier al wonen? Neem contact met ons op en plan een bezichtiging, we laten je deze woning graag zelf ervaren.

Video

Details Foto's Beschrijving Video Plattegrond Kaart

Weten wat jouw woning waard is?

Plan vrijblijvend een GRATIS waardebepaling met één van onze makelaars