fbpx
Hoofdfoto
  • Soort Eengezinswoning
  • Type Tussenwoning
  • Bouwjaar 2020
  • Woonoppervlakte 122 m2
  • Perceeloppervlakte 157 m2
  • Inhoud 421 m3
  • Aantal kamers 4
  • Aantal slaapkamers 3
  • Aantal badkamers 1
  • Liggingen Aan rustige weg, In woonwijk
  • Koopprijs € 445.000,- k.k.
  • Status Beschikbaar
  • Aanvaarding In overleg
  • Energieklasse A
  • Verwarming Vloerverwarming gedeeltelijk
  • Isolatie Dakisolatie, Muurisolatie, Vloerisolatie
  • Combiketel Nee
  • Parkeer faciliteiten Openbaar parkeren, Op eigen terrein
  • Garage Geen garage

Beschrijving De Jint 36

Modern, licht en zorgeloos wonen in het bruisende Wiarda!

Welkom bij De Jint 36 in Leeuwarden!
Wat een heerlijke plek om thuis te komen. Deze moderne woning met energielabel A combineert comfort, licht en duurzaamheid op een perfecte manier. Alles is hier netjes afgewerkt, praktisch ingedeeld en klaar voor jarenlang woonplezier.

Je woont in Wiarda — een van de meest geliefde, jonge wijken van Leeuwarden. Ruim opgezet, groen, kindvriendelijk én met een gezellige, betrokken sfeer. Meerdere speeltuinen, pluktuinen en zelfs een buurttuin liggen letterlijk om de hoek. En met de haven in de wijk, waar je een ligplaats kunt huren, voelt het hier elke dag een beetje als vakantie.

Aankomst en entree
Binnenkomen doe je in de hal met meterkast, toilet en de trapopgang naar boven. Alles oogt fris, verzorgd en logisch ingedeeld. Vanuit de hal loop je door naar de woonkamer — en daar begint het genieten écht.

Wonen en koken
De woonkamer is ruim, licht en tuingericht. Door de openslaande deuren vloeien binnen en buiten moeiteloos in elkaar over, en de grote raampartijen laten het daglicht overal binnenstromen.
De moderne keuken aan de voorzijde is een fijne plek voor kookliefhebbers: strak, praktisch en voorzien van alles wat je nodig hebt — een inductiekookplaat met geïntegreerde afzuiging, vaatwasser, oven, koelkast en vriezer.
In de woonkamer vind je bovendien een handige trapkast voor extra opbergruimte.

De tuin is een heerlijke verlenging van je woonkamer, met een overkapping voor lange zomeravonden en een houten berging voor fietsen of tuingereedschap. Parkeren? Dat doe je gewoon op je eigen terrein, direct bij huis!

Eerste verdieping
Op de eerste verdieping zijn drie mooie slaapkamers, allemaal licht en strak afgewerkt. De badkamer is modern en comfortabel, met een inloopdouche, wastafelmeubel en toilet — fris, eigentijds en helemaal af.

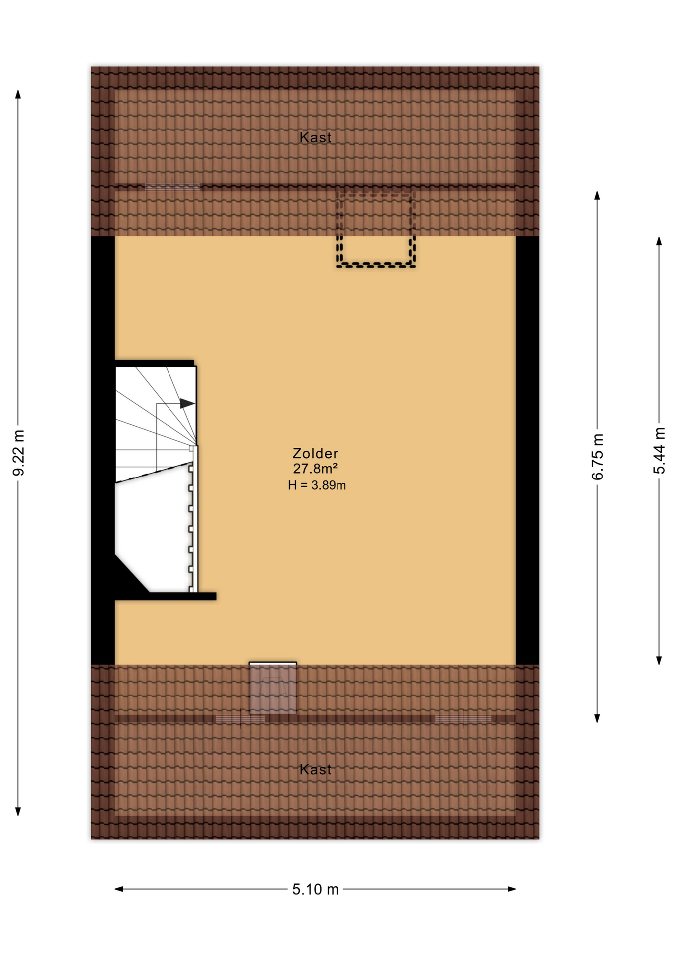
Tweede verdieping
De tweede verdieping is een verrassend ruime zolder die je nog helemaal naar eigen wens kunt inrichten. Hier vind je de aansluitingen voor het witgoed, maar er is ook volop plek voor een extra slaapkamer, werkplek of hobbyruimte. Een verdieping die meegroeit met jouw leven, precies zoals jij dat wilt!

Pluspunten op een rij
- Energielabel A — energiezuinig, comfortabel en toekomstbestendig.
- Moderne keuken met inductie, geïntegreerde afzuiging, vaatwasser, koelkast, vriezer en oven.
- Lichte woonkamer met openslaande deuren naar de tuin.
- Tuin met overkapping, berging en eigen parkeerplaats.
- Drie slaapkamers en een ruime, vrij indeelbare zolder.
- Gelegen in het populaire en ruim opgezette Wiarda.
- Actieve, kindvriendelijke wijk met meerdere speeltuinen, pluktuinen en een buurttuin.
- School binnen vijf minuten fietsen.
- Haven in de wijk, met mogelijkheid tot het huren van een ligplaats.

Samenvatting

De Jint 36 in Leeuwarden is zo’n woning waar alles klopt.
Licht, ruimte, energiezuinigheid en een fantastische ligging in Wiarda — een wijk die leeft, bruist en tegelijk heerlijk rustig aanvoelt. Hier geniet je elke dag van het buitenleven, het comfort van nu en een buurt waar je je meteen thuis voelt.

Kortom: pak je spullen, trek de deur open en voel het zelf — hier wil je wonen!

Video

Details Foto's Beschrijving Video Plattegrond Kaart

Weten wat jouw woning waard is?

Plan vrijblijvend een GRATIS waardebepaling met één van onze makelaars