Hoofdfoto
  • Soort Eengezinswoning
  • Type Geschakelde twee onder één kapwoning
  • Bouwjaar 2001
  • Woonoppervlakte 130 m2
  • Perceeloppervlakte 266 m2
  • Inhoud 527 m3
  • Aantal kamers 5
  • Aantal slaapkamers 4
  • Aantal badkamers 1
  • Liggingen Aan rustige weg, In woonwijk
  • Koopprijs € 425.000,- k.k.
  • Status Beschikbaar
  • Aanvaarding In overleg
  • Energieklasse A
  • Verwarming CV ketel, Warmte terugwininstallatie
  • C.V.-Ketel Remeha TzerraM 28c Plus CCS
  • Isolatie Dakisolatie, Muurisolatie, Vloerisolatie, Dubbelglas
  • Combiketel Ja
  • Parkeer faciliteiten Openbaar parkeren, Op eigen terrein
  • Garage Aangebouwd steen
  • Capaciteit 1
  • Garages 1

Beschrijving Tillefeart 7

Gelegen aan een doodlopend en rustig straatje in Hurdegaryp staat deze ruime geschakelde 2-onder-1-kapwoning op een bijzonder fijne plek, zonder doorgaand verkeer. Direct tegenover een speeltuin en in een prettige woonomgeving is dit een ideale locatie voor gezinnen. Daarbij beschik je over een eigen oprit én zijn er meerdere openbare parkeerplaatsen direct voor de woning.

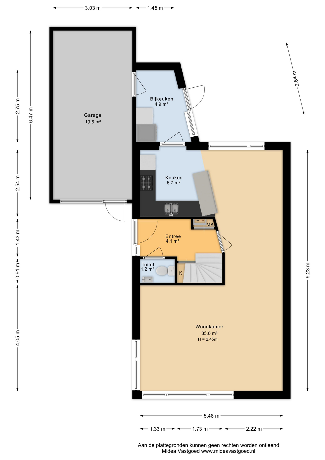
Bij aankomst valt de praktische indeling meteen op. Via de hal met toilet en trapkast kom je binnen, waarna de woning zich opent naar de royale woonkamer. Dankzij de grote raampartijen is er veel lichtinval en geniet je aan de voorzijde van een vrij en groen uitzicht. Voor de ramen van de woonkamer is aan de buitenzijde elektrisch bedienbare zonnewering aanwezig.

Aan de achterzijde bevindt zich het eetgedeelte met de open keuken, een fijne plek waar koken en samenzijn moeiteloos samenkomen. De keuken is voorzien van onder andere een koelkast en combi-oven en beschikt daarnaast over vloerverwarming, wat zorgt voor extra comfort, waardoor het een gezellige en centrale plek in huis vormt. Aansluitend bevindt zich de bijkeuken met witgoedaansluiting, die toegang biedt tot zowel de tuin als de garage.

Achter de keuken bevindt zich de garage. Deze is ruim van opzet en voorzien van een kanteldeur met daarin een loopdeur, ideaal voor opslag, hobbyruimte of het stallen van een auto.

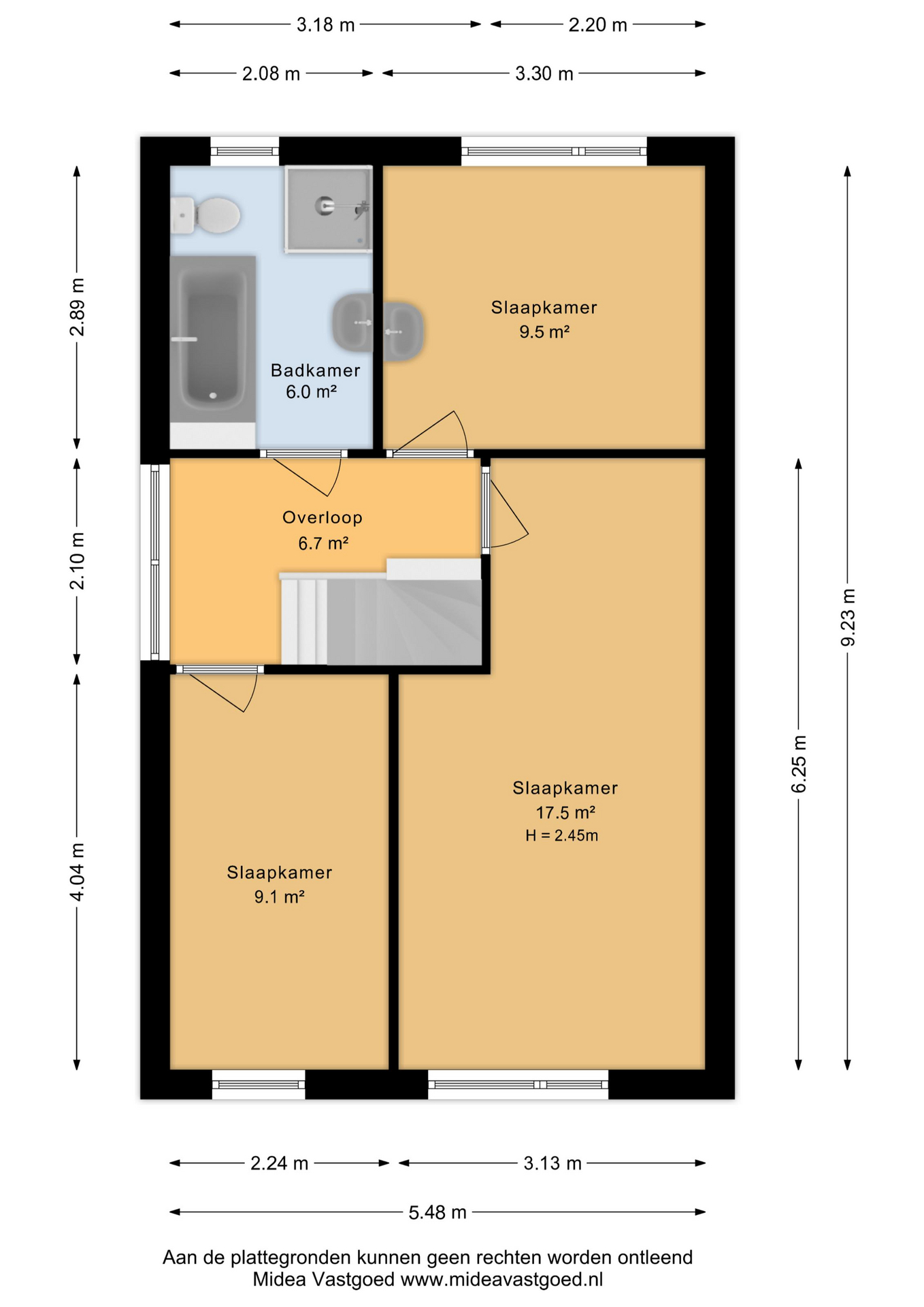
Op de eerste verdieping zijn drie slaapkamers aanwezig, waarvan één is voorzien van een wastafel en één van royaal formaat is. De badkamer op deze verdieping is compleet ingericht met een ligbad, douche, toilet en wastafel.

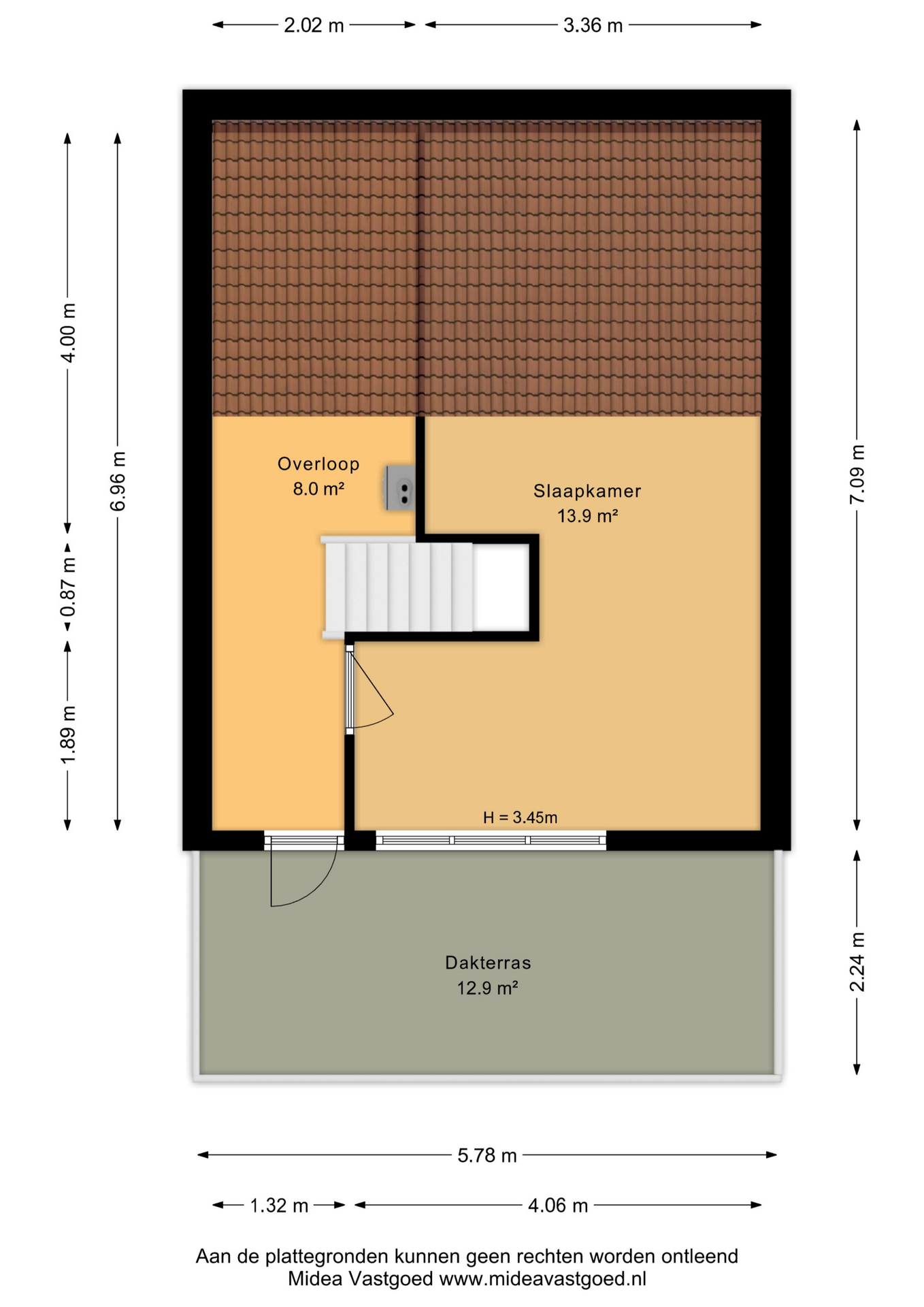
De tweede verdieping is via een vaste trap bereikbaar en vormt een volwaardige extra woonlaag. Hier vind je een ruime vierde slaapkamer met veel lichtinval en toegang tot een heerlijk dakterras. Daarnaast is er verrassend veel bergruimte en zijn hier ook de cv-ketel en WTW-installatie geplaatst.

De achtertuin biedt veel privacy en is een heerlijke plek om tot rust te komen. Dankzij de beschutte ligging kun je hier in alle rust genieten van het buitenleven, of je nu kiest voor een ontspannen ochtend in de zon of een lange zomeravond met familie en vrienden. Er is voldoende ruimte voor een gezellige zithoek of eettafel, waardoor de tuin een mooi verlengstuk vormt van de leefruimte binnen.

De woning is altijd goed onderhouden, maar kan op bepaalde onderdelen wat liefde en modernisering gebruiken. Dit biedt juist de kans om het geheel naar eigen smaak en woonwensen aan te passen en hier echt jouw thuis van te maken.

Samenvatting
Ruime eengezinswoning op een rustige, kindvriendelijke locatie in Hurdegaryp met vier slaapkamers, een lichte woonkamer, garage en dakterras. Gelegen aan een doodlopende straat tegenover een speeltuin, met eigen oprit en volop mogelijkheden om de woning naar eigen smaak te moderniseren.

Pluspunten op een rij
4 slaapkamers
Gelegen aan een rustige doodlopende weg
Ruime en lichte woonkamer
Garage met kantel-/loopdeur
Oprit en parkeergelegenheid voor de deur
Dakterras op de tweede verdieping
Veel bergruimte
Privacyvolle achtertuin
Mogelijkheid tot moderniseren naar eigen smaak

Bel ons op 058 203 8000.

Video

Details Foto's Beschrijving Video Plattegrond Kaart

Weten wat jouw woning waard is?

Plan vrijblijvend een GRATIS waardebepaling met één van onze makelaars