fbpx
Hoofdfoto
  • Soort Eengezinswoning
  • Type Eindwoning
  • Bouwjaar 2013
  • Woonoppervlakte 130 m2
  • Perceeloppervlakte 156 m2
  • Inhoud 479 m3
  • Aantal kamers 5
  • Aantal slaapkamers 3
  • Aantal badkamers 1
  • Liggingen In woonwijk
  • Koopprijs € 395.000,- k.k.
  • Status Onder bod
  • Aanvaarding In overleg
  • Energieklasse A
  • Verwarming CV ketel
  • C.V.-Ketel Itho Aqua Max HR
  • Isolatie Dakisolatie, Muurisolatie, Vloerisolatie, HR glas
  • Combiketel Nee
  • Parkeer faciliteiten Openbaar parkeren
  • Garage Geen garage

Beschrijving Taconishof 42

In een rustige en kindvriendelijke woonwijk van Heerenveen, waar het dagelijkse leven prettig doorstroomt en alles binnen handbereik is, staat deze moderne eindwoning aan Taconishof 42. Gebouwd in 2013 en nog altijd fris en eigentijds van karakter.

Via de voortuin kom je aan bij de woning. De entree voelt meteen verzorgd en overzichtelijk, met in de hal de meterkast en het toilet. Vanuit hier loop je door naar de woonkamer, waar het daglicht royaal naar binnen valt. De click PVC-vloer met vloerverwarming zorgt voor comfort en een rustige uitstraling. Een fijne leefruimte waar ontspannen wonen centraal staat.

De keuken sluit hier mooi op aan en is in 2018 geplaatst. Strak en praktisch ingericht met alle voorzieningen. De openslaande deuren bij de keuken maken de verbinding met buiten vanzelfsprekend en zorgen ervoor dat de voortuin echt onderdeel wordt van het woonleven.

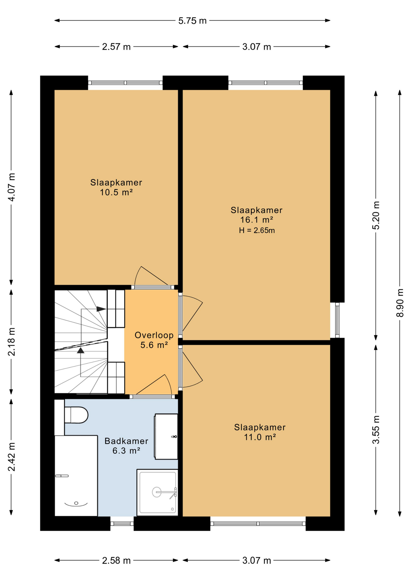
Op de eerste verdieping bevinden zich drie slaapkamers, prettig van formaat en flexibel in te delen. De badkamer is compleet uitgevoerd en gerenoveerd in 2018 met een wastafel, douche, ligbad en toilet.

De tweede verdieping is ingericht als zolder met wasruimte. Hier bevinden zich ook de cv opstelling en de boiler. Een praktische en multifunctionele ruimte met volop bergruimte of zelfs een plek waar een extra slaapkamer kan komen.

De achtertuin ligt op het noordwesten en biedt een fijne combinatie van zon en schaduw. De tuin is bereikbaar via een achterom en beschikt over een houten schuur, ideaal voor fietsen en extra opslag. Een beschutte plek om na een werkdag nog even buiten te zitten.

Pluspunten:
- Eindwoning in een rustige woonwijk
- Gebouwd in 2013
- Energielabel A, geldig tot 2035
- Vloerverwarming op de begane grond
- Moderne keuken uit 2018 met complete inbouwapparatuur
- Drie slaapkamers en een complete badkamer gerenoveerd in 2018
- Zolder met diverse mogelijkheden
- Achtertuin op het noordwesten met achterom en houten schuur
- Speeltuin, centrum en supermarkten op loopafstand
- Cv-ketel is eigendom

Kortom:
Een comfortabele en energiezuinige woning met een prettige indeling, moderne voorzieningen en een fijne buitenruimte. Wordt dit jou nieuwe plek? Neem gerust contact met ons op en plan een bezichtiging, je bent van harte welkom.

Video

Details Foto's Beschrijving Video Plattegrond Kaart

Weten wat jouw woning waard is?

Plan vrijblijvend een GRATIS waardebepaling met één van onze makelaars