fbpx
Hoofdfoto
  • Soort Eengezinswoning
  • Type Vrijstaande woning
  • Bouwjaar 1900
  • Woonoppervlakte 145 m2
  • Perceeloppervlakte 280 m2
  • Inhoud 1.296 m3
  • Aantal kamers 6
  • Aantal slaapkamers 3
  • Aantal badkamers 2
  • Koopprijs € 575.000,- k.k.
  • Status Onder bod
  • Aanvaarding In overleg
  • Energieklasse A++
  • Verwarming CV ketel
  • C.V.-Ketel LVV24NL06Y00031
  • Isolatie Dakisolatie, Muurisolatie, Vloerisolatie
  • Combiketel Nee
  • Parkeer faciliteiten Openbaar parkeren
  • Garage Inpandig
  • Capaciteit 5
  • Garages 1

Beschrijving Leeuwarderweg 11

Vrijstaand wonen met licht, rust en luxe — dit huis verrast je op elke verdieping.

Welkom aan de Leeuwarderweg, waar je woont op een plek die gemak, privacy en woonkwaliteit combineert alsof het vanzelf gaat. Met energielabel A++, 30 zonnepanelen, twee badkamers, een enorme garage van 120 m², een heerlijke woonkeuken en een uniek leefconcept boven is dit geen standaard vrijstaande woning — dit is een thuis dat meegroeit, meeademt en je elke dag opnieuw verwent met licht en ruimte. Het historische centrum dichtbij, de supermarkt voor de deur en open vaarwater om de hoek… alles ligt hier letterlijk binnen handbereik!

Aankomst & Gevel
De vrijstaande ligging en grote garage geven direct een gevoel van vrijheid. Dit is zo’n woning waar je ruimte ervaart nog vóór je binnen bent.

Entree
Je komt binnen in een lichte entree met toegang tot de woonkeuken, de grote garage van 120 m², extra bijkeuken en de trapopgang. De indeling voelt logisch, open en uitnodigend.

Woonkeuken
Een absolute sfeertopper: hier wordt gekookt, gelachen, geborreld, geleefd. Iemand die met een kop thee aan tafel zit terwijl een ander aan het fornuis staat, precies dat warme gevoel maakt dit huis zó thuis. Een keuken met alles wat je nodig hebt!

Bijkeuken
De extra bijkeuken beneden biedt alle ruimte voor witgoed, voorraad en apparatuur.

Overdekt terras
Grenzend aan de woning vind je het heerlijke overdekte terras, perfect voor elk seizoen. Regen? Geen probleem. Zomerse zon? Ook goed. Winterse dag? Met een dekentje en een warme mok zit je hier nóg fantastisch!

1e Verdieping

Woonkamer
Op de verdieping vind je een heerlijke woonkamerachtige ruimte met het extra keukentje er direct naast.
Hier woon je letterlijk in het licht: veel ramen, geen inkijk en een rustige sfeer die meteen ontspant.

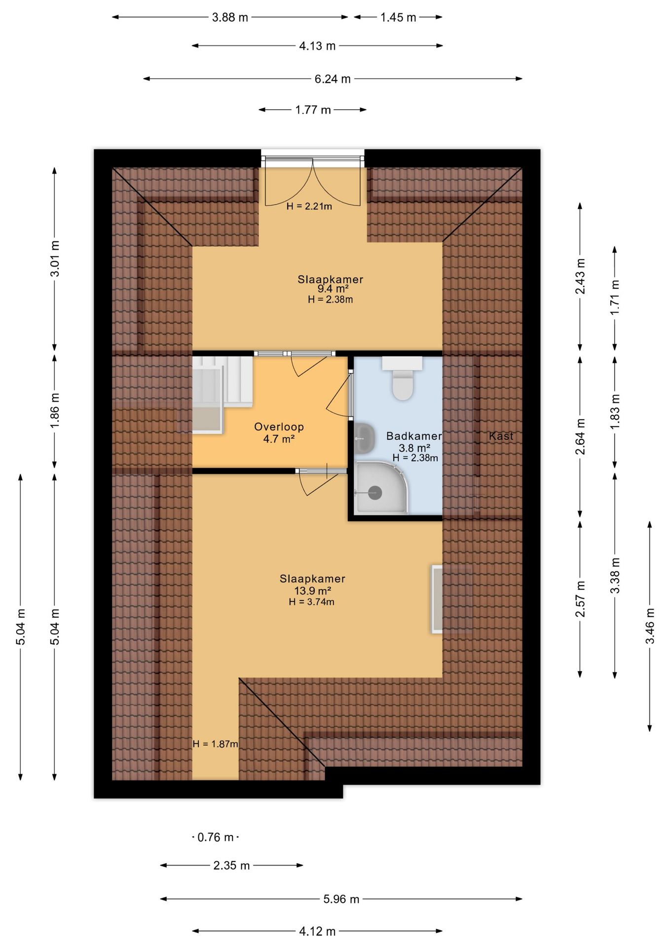
3 ruime slaapkamers
De verdieping telt drie grote slaapkamers met mooie lichtinval, comfort en volledige privacy.
De grootste slaapkamer heeft een eigen badkamer — een luxe die elke dag weer als een cadeautje voelt.

Badkamer
Op de tweede verdieping vind je nóg een badkamer — een heerlijk rustige plek waar je je even helemaal kunt terugtrekken. Licht, privé en verrassend ruim: ideaal voor een ontspannen start van de dag of juist een momentje voor jezelf in de avond.

Vliering
Boven de verdieping bevindt zich een vliering, perfect voor seizoensspullen, koffers, decoratie en alles wat je liever uit het zicht bewaart. Praktisch en altijd welkom.

Garage & extra ruimtes, een wereld aan mogelijkheden
De garage is hier niet zomaar een garage, maar een enorme, multifunctionele ruimte waar je écht alle kanten mee op kunt. Ruim, hoog, breed en praktisch ingedeeld: of je nu hobbyist bent, sleutelaar, verzamelaar, ondernemer, creatieveling of gewoon iemand die graag veel opbergruimte heeft, dit is een plek waar je hart sneller van gaat kloppen.

En dan ben je er nog niet, want achter de garage bevinden zich nóg extra ruimtes die het geheel echt bijzonder maken. Denk aan werkplaats, opslag, atelier, praktijkruimte, sportruimte, muziekkamer, studio… wat je droom ook is, hier kun je ’m kwijt.

Het is precies zo’n zeldzame combinatie van ruimte, vrijheid en mogelijkheden die je niet vaak tegenkomt, maar waar je dagelijks plezier van hebt. Hier zit potentie in elke vierkante meter.

Pluspunten
- Vrijstaande woning met energielabel A++
- 145 m² woonoppervlakte
- 30 zonnepanelen
- Volledig gasloos
- Twee badkamers, waarvan één en-suite
- Extra bijkeuken beneden
- Extra keukentje op de 1e verdieping
- Airco’s voor verwarmen en koelen
- Overdekt terras voor alle seizoenen
- Vliering voor extra bergruimte
- Enorme garage van 120 m²
- Veel privacy, geen inkijk
- Supermarkt voor de deur
- Historisch centrum en open vaarwater dichtbij

Leeuwarderweg 11 is een heerlijk vrijstaand thuis met luxe, licht en flexibiliteit in elke hoek. Een woning die verrast, comfort biedt en perfect past bij wie royaal, duurzaam en ontspannen wil wonen in Franeker.

Video

Details Foto's Beschrijving Video Plattegrond Kaart

Weten wat jouw woning waard is?

Plan vrijblijvend een GRATIS waardebepaling met één van onze makelaars