Hoofdfoto
  • Soort Eengezinswoning
  • Type Tussenwoning
  • Bouwjaar 1981
  • Woonoppervlakte 99 m2
  • Perceeloppervlakte 177 m2
  • Inhoud 411 m3
  • Aantal kamers 4
  • Aantal slaapkamers 3
  • Aantal badkamers 1
  • Liggingen Aan rustige weg, In woonwijk
  • Koopprijs € 250.000,- k.k.
  • Status Verkocht onder voorbehoud
  • Aanvaarding In overleg
  • Energieklasse C
  • Verwarming CV ketel
  • C.V.-Ketel Remeha advanta
  • Isolatie Dakisolatie, Dubbelglas
  • Combiketel Ja
  • Parkeer faciliteiten Openbaar parkeren
  • Garage Geen garage

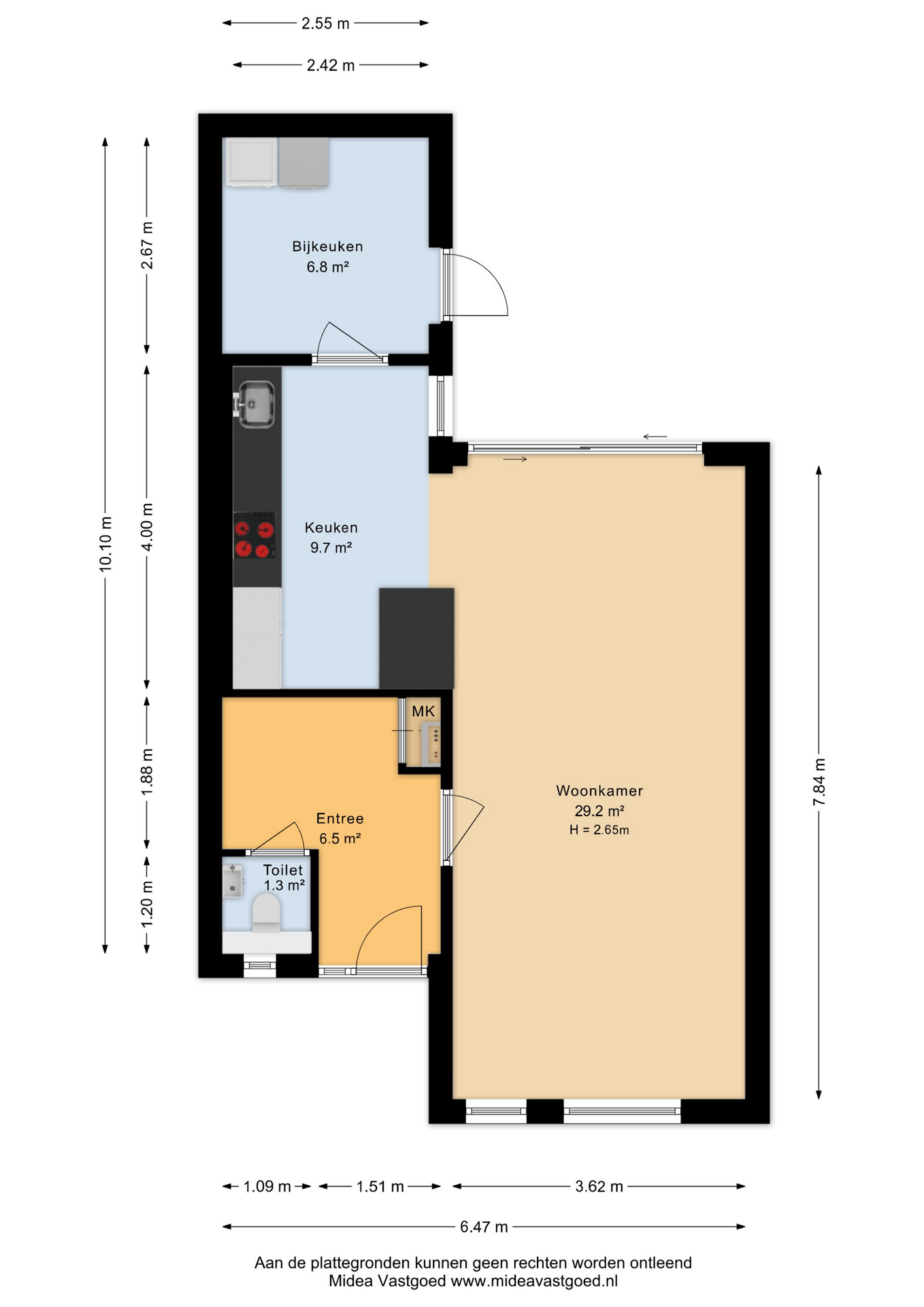
Beschrijving Stationsstraat 13

In een rustige straat in het dorp Ferwert ligt deze verrassend moderne en instapklare tussenwoning. Een fijne woonomgeving met een gemoedelijke sfeer, waar je geniet van rust en ruimte, terwijl dagelijkse voorzieningen binnen handbereik zijn.

Je komt aan bij de woning via de verzorgde voortuin. De kunststof voor- en achterdeur geven direct een nette en onderhoudsvriendelijke eerste indruk. Bij binnenkomst valt meteen de moderne afwerking op: de hal is in 2024 volledig vernieuwd, net als de meterkast en het toilet. Alles voelt fris, strak en klaar voor de toekomst.

De woonkamer is heerlijk licht en open opgezet, met als echte blikvanger de grote aluminium schuifpui over bijna de volledige breedte en hoogte van de achtergevel. Dit zorgt voor een prachtige lichtinval en een directe verbinding met de tuin. De keuken is in 2024 vernieuwd en uitgevoerd met een stijlvol schiereiland inclusief barretje – een plek waar koken en gezelligheid samenkomen. De keuken is compleet uitgerust met een vaatwasser, elektrische boiler, koelkast, aparte vriezer, combioven/magnetron, inductiekookplaat en afzuiging. Aansluitend vind je de praktische bijkeuken met wasmachineopstelling.

Op de eerste verdieping vind je drie fijne slaapkamers, stuk voor stuk netjes afgewerkt en heerlijk licht dankzij de speelse lichtinval. De moderne badkamer voelt als een kleine wellness aan huis, met een bubbelbad waarin je na een lange dag echt even tot rust komt. Ook hier is alles strak, eigentijds en tot in detail verzorgd.

Via een vaste trap bereik je de zolder met stahoogte. Deze ruimte biedt volop mogelijkheden, bijvoorbeeld voor een extra kamer, werkplek of hobbyruimte.

De achtertuin is verzorgd en praktisch ingericht en biedt tegelijk een fijne plek om lekker buiten te zijn. Of je nu wilt genieten van een rustige ochtendkoffie of een lange zomeravond, hier kan het allemaal. De tuin beschikt over een schuur voor extra bergruimte en een handige achterom, wat het dagelijks gebruik extra comfortabel maakt.

Samenvatting
Deze volledig gemoderniseerde tussenwoning in Ferwert biedt een lichte woonkamer met grote schuifpui, een moderne keuken met schiereiland, drie slaapkamers, een luxe badkamer met bubbelbad en een zolder met mogelijkheden. De verzorgde tuin met schuur en achterom maakt het geheel compleet. Instapklaar en comfortabel wonen. Bel ons op 058 203 8000!

Pluspunten op een rij:
Instapklaar en modern afgewerkt
Veel licht dankzij grote schuifpui
Complete en luxe keuken
Comfortabele badkamer
Extra ruimte op zolder
Onderhoudsvriendelijke materialen gebruikt

Video

Details Foto's Beschrijving Video Plattegrond Kaart

Weten wat jouw woning waard is?

Plan vrijblijvend een GRATIS waardebepaling met één van onze makelaars