Hoofdfoto
  • Soort Eengezinswoning
  • Type Vrijstaande woning
  • Bouwjaar 1988
  • Woonoppervlakte 101 m2
  • Perceeloppervlakte 378 m2
  • Inhoud 509 m3
  • Aantal kamers 4
  • Aantal slaapkamers 3
  • Aantal badkamers 1
  • Liggingen Aan rustige weg, In woonwijk
  • Koopprijs € 399.000,- k.k.
  • Status Onder bod
  • Aanvaarding In overleg
  • Energieklasse B
  • Verwarming CV ketel
  • C.V.-Ketel Intergas HRe 36/30 CW5
  • Isolatie Dakisolatie, Muurisolatie
  • Combiketel Ja
  • Parkeer faciliteiten Op eigen terrein
  • Garage Aangebouwd steen
  • Capaciteit 1
  • Garages 1

Beschrijving It String 19

Aan een rustige weg in het gezellige Bitgummole staat deze vrijstaande woning met een verrassend ruime tuin en een fijne, praktische indeling. Hier woon je heerlijk vrij, met volop privacy en alle ruimte om te genieten van het buitenleven, een ideale plek voor een jong gezin.

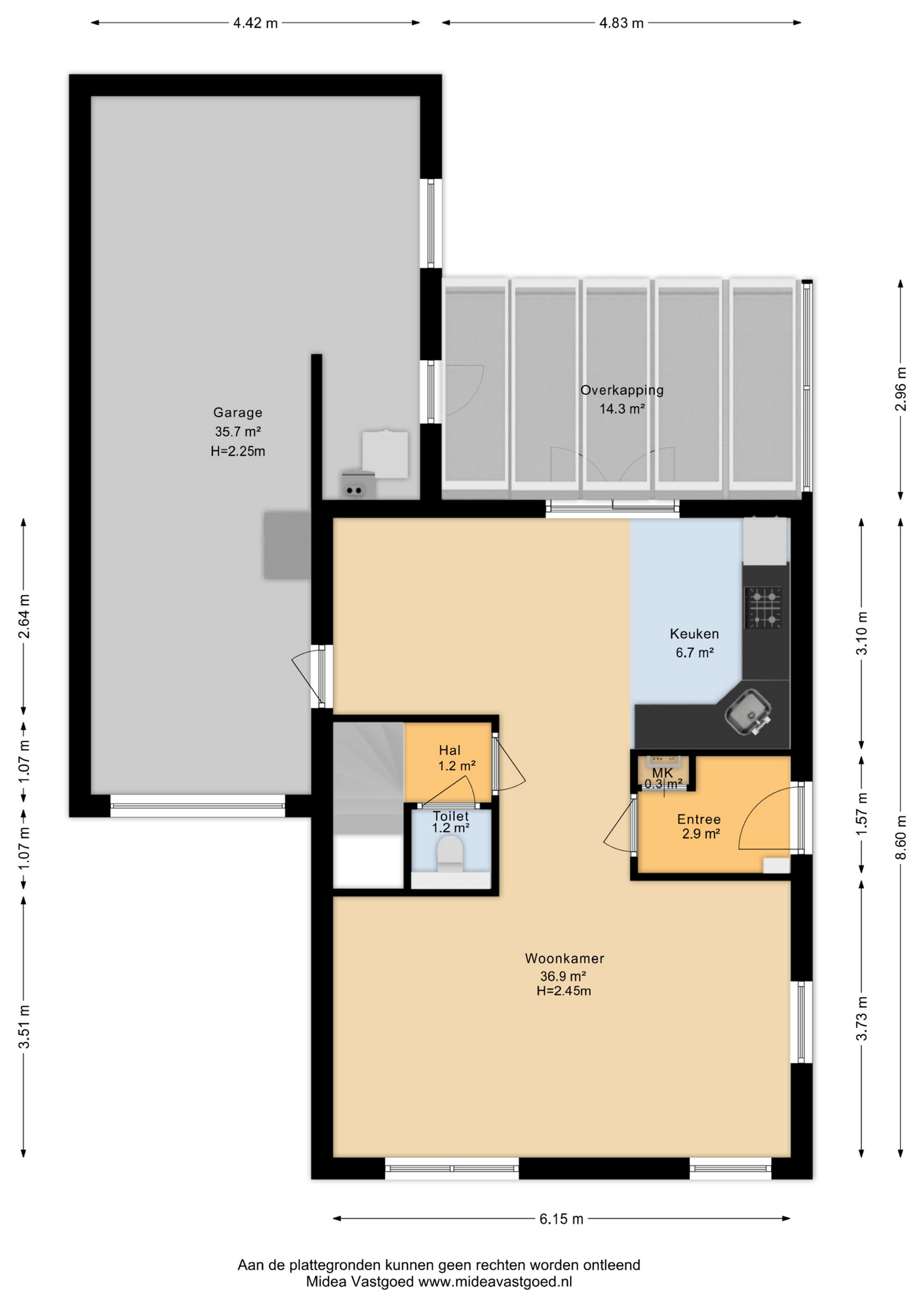
Bij aankomst valt direct de rustige ligging op. Binnenkomst is in een nette hal. Vanuit hier loop je door naar de gezellige leefruimte met een prachtige houten vloer. Aan de voorzijde is een comfortabele zithoek gecreëerd, terwijl de achterzijde ruimte biedt aan de open keuken met eethoek. Dankzij de openslaande deuren sta je zo in de zonnige tuin op het zuidoosten. De zonwerende beglazing en het recent geschilderde houtwerk zorgen hier voor extra comfort en een verzorgde uitstraling.

Aangrenzend vind je de ruime garage, die zowel van binnenuit als buitenom bereikbaar is. Deze is voorzien van elektra en water en biedt volop mogelijkheden, bijvoorbeeld voor hobby of opslag. Ook de witgoedaansluiting is hier praktisch weggewerkt.

Op de eerste verdieping kom je via de overloop bij drie slaapkamers, waarvan één extra ruim en voorzien van een inloopkast. Alle kamers beschikken over rolluiken, wat zorgt voor een aangenaam binnenklimaat. De badkamer is modern en compleet uitgevoerd met een inloopdouche, ligbad, toilet en wastafelmeubel. De verdieping is grotendeels voorzien van kunststof kozijnen met isolerende beglazing.

Via een vlizotrap bereik je de vliering, een handige extra bergruimte voor alles wat je netjes uit het zicht wilt houden.

De achtertuin is royaal en gunstig gelegen op het zuidoosten, waardoor je hier al vroeg in het jaar van de zon geniet. De overkapping aan de woning maakt het mogelijk om ook op minder zonnige dagen heerlijk buiten te zitten. Met een achterom is de tuin bovendien praktisch in gebruik.

Een fijne, complete woning op een rustige locatie, waar comfort, ruimte en buitenleven mooi samenkomen.

Samenvatting:
Vrijstaande woning op een rustige locatie in Bitgummole met drie slaapkamers, een ruime leefruimte, moderne badkamer en een zonnige tuin op het zuidoosten met overkapping en achterom. Praktisch ingedeeld met een grote garage en volop bergruimte!

Pluspunten op een rij:
Vrijstaande woning op een rustige, doodlopende weg
3 slaapkamers, waarvan één met inloopkast
Woonoppervlakte van 101 m²
Energielabel B
Gezellige leefruimte met open keuken
Openslaande deuren naar de tuin
Royale tuin op het zuidoosten met overkapping
Grote garage met elektra, water en witgoedaansluiting
Moderne badkamer met ligbad en inloopdouche
Rolluiken op alle slaapkamers
Kunststof kozijnen en isolerende beglazing boven
Vliering voor extra bergruimte
Achterom aanwezig

Zie jij jezelf hier al wonen? Dan is dit hét moment om in actie te komen. Deze woning moet je namelijk echt van binnen ervaren om de sfeer, ruimte en mogelijkheden goed te voelen. Plan snel een bezichtiging en laat je verrassen door alles wat deze plek te bieden heeft.

Bel ons op 058 203 8000.

Video

Details Foto's Beschrijving Video Plattegrond Kaart

Weten wat jouw woning waard is?

Plan vrijblijvend een GRATIS waardebepaling met één van onze makelaars