Hoofdfoto
  • Soort Eengezinswoning
  • Type Vrijstaande woning
  • Bouwjaar 1996
  • Woonoppervlakte 119 m2
  • Perceeloppervlakte 511 m2
  • Inhoud 500 m3
  • Aantal kamers 5
  • Aantal slaapkamers 3
  • Aantal badkamers 1
  • Liggingen In woonwijk
  • Koopprijs € 425.000,- k.k.
  • Status Verkocht
  • Aanvaarding In overleg
  • Energieklasse A
  • Verwarming CV ketel
  • C.V.-Ketel Kombi Kompakt HRE28/24
  • Isolatie Dakisolatie, Muurisolatie, Vloerisolatie, Volledig geïsoleerd, HR glas
  • Combiketel Nee
  • Parkeer faciliteiten Op eigen terrein
  • Garage Aangebouwd steen
  • Capaciteit 1
  • Garages 1

Beschrijving De Opslach 24

Vrijstaand wonen waar ruimte, groen en comfort moeiteloos samenkomen!

Welkom aan De Opslach 24 in Berltsum. Een royale, vrijstaande woning met een groene tuin rondom, volop licht en fijne voorzieningen binnen handbereik. Het levendige dorp Berltsum ligt op korte afstand van Leeuwarden en Franeker en biedt alles wat je dagelijks nodig hebt: scholen, sportverenigingen, winkels en een actief verenigingsleven. Hier woon je landelijk en ruim, met de stad altijd dichtbij.

Bij aankomst valt meteen de fraai aangelegde tuin rondom op. Groen, natuurlijk en met sierlijke bomen en hagen die zorgen voor privacy en sfeer. De brede oprit biedt ruimschoots plek voor de auto en leidt naar de garage. Een fijn extra pluspunt is de aanwezige aansluiting voor een eigen laadpaal: deze woning is helemaal klaar voor de toekomst.

Dankzij de subtiele overkapping bij de voordeur sta je droog bij binnenkomst. De royale hal maakt direct indruk: de open trap en vide zorgen voor een lichte en ruimtelijke entree die uitnodigt om verder te ontdekken.

Vanuit de hal zijn meerdere vertrekken bereikbaar. Het moderne toilet is strak uitgevoerd en voorzien van stijlvolle donkerblauwe hexagontegels die zorgen voor een speels accent. Ook de badkamer (2021) grenst aan de hal en is tot in detail verzorgd. Denk aan inbouwspotjes, daglicht via het raam, een elektrische designradiator, een breed wastafelmeubel met twee kranen, een spiegel met verlichting en verwarming, een praktische kast en een royale inloopdouche met zwarte accenten en nis. Ook hier komen de donkerblauwe hexagontegels prachtig terug. Tot slot is er vanuit de hal toegang tot de praktische bijkeuken met witgoedaansluiting en een directe verbinding met de tuin en garage.

De leefruimte is een heerlijk lichte L-vormige ruimte, waardoor wonen en koken op natuurlijke wijze van elkaar zijn gescheiden. Grote raampartijen zorgen voor een prettige lichtinval. Aan de tuinzijde bevindt zich de moderne keuken (2018), compleet uitgevoerd en voorzien van een kookeiland. De kokendwaterkraan (2021) maakt het geheel helemaal af. Via de schuifpui haal je op zonnige dagen buiten moeiteloos naar binnen en wordt de tuin een verlengstuk van de leefruimte.

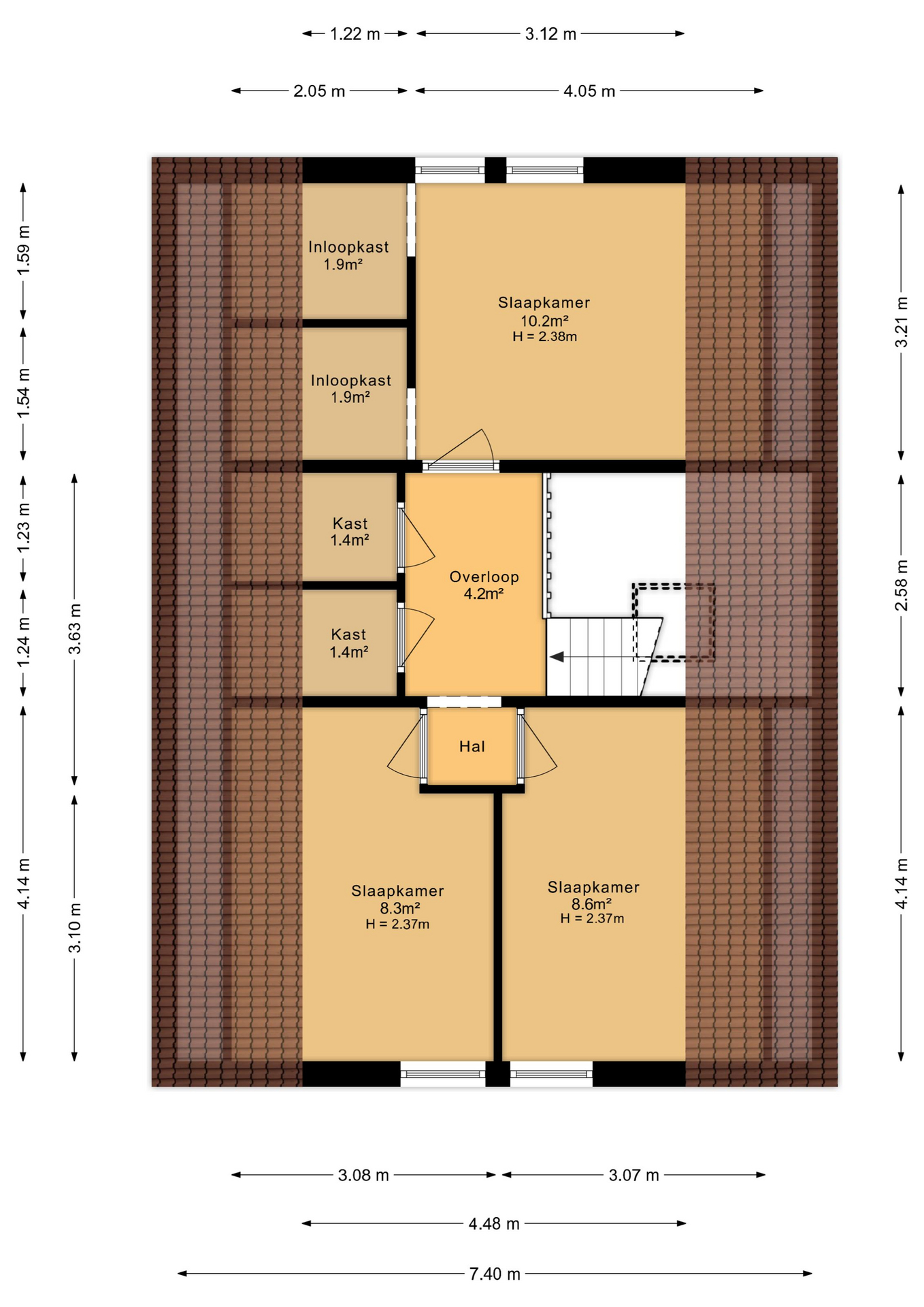
Op de verdieping geeft de vide een open en ruimtelijk gevoel. Op de overloop bevinden zich twee royale inbouwkasten, ideaal voor extra bergruimte. Verder zijn er drie ruime slaapkamers. De master bedroom verrast met maar liefst twee inloopkasten: een droom voor iedereen die houdt van overzicht en ruimte.

Ook buiten is het genieten. De tuin rondom is royaal opgezet en fraai ingericht met borders, gras en een schutting die zorgen voor privacy en een fijne sfeer. Er is toegang tot de garage en volop ruimte om te ontspannen. Op het terras of onder de royale overkapping van 14,2 m² geniet je beschut van een kop koffie. Met een perceel van 511 m² ervaar je hier elke dag vrijheid en rust.

Alle pluspunten op een rij:
- Vrijstaand wonen op een ruim perceel van 511 m²
- Garage, royale oprit en aansluiting voor een eigen laadpaal
- Duurzaam en energiezuinig: gevel-, dak- en vloerisolatie, HR- en HR++-beglazing, 12 zonnepanelen (2019, eigendom) en energielabel A
- Badkamer vernieuwd in 2021
- Keuken uit 2018 met kokendwaterkraan (2021)
- Groene tuin rondom met royale overkapping
- Master bedroom met twee inloopkasten

Bijzonderheden:
- CV-installatie: Intergas Kombi Kompakt HRE28/24 (2011, eigendom)

Kortom: De Opslach 24 in Berltsum biedt het beste van twee werelden. Vrijstaand en groen wonen in een dorpse omgeving, gecombineerd met modern comfort en energiezuinigheid. Een huis waar ruimte, licht en luxe samenkomen en waar je elke dag met plezier thuiskomt. Kom je deze fijne woning zelf ervaren? Maak direct een afspraak voor een bezichtiging.

Video

Details Foto's Beschrijving Video Plattegrond Kaart

Weten wat jouw woning waard is?

Plan vrijblijvend een GRATIS waardebepaling met één van onze makelaars