fbpx
Hoofdfoto
  • Soort Eengezinswoning
  • Type Vrijstaande woning
  • Bouwjaar 1983
  • Woonoppervlakte 99 m2
  • Perceeloppervlakte 304 m2
  • Inhoud 380 m3
  • Aantal kamers 4
  • Aantal slaapkamers 3
  • Aantal badkamers 1
  • Liggingen In woonwijk
  • Koopprijs € 389.500,- k.k.
  • Status Beschikbaar
  • Aanvaarding In overleg
  • Energieklasse B
  • Verwarming CV ketel, Vloerverwarming gedeeltelijk, Pelletkachel
  • C.V.-Ketel Remeha
  • Isolatie Dakisolatie, Muurisolatie, Vloerisolatie, Gedeeltelijk dubbelglas, HR glas
  • Combiketel Nee
  • Parkeer faciliteiten Op eigen terrein
  • Garage Geen garage

Beschrijving De Mieden 58

Stijlvol en vrijstaand wonen met een serre en een zonnige achtertuin: welkom bij De Mieden 58 in Warten.

Warten ligt op een bijzondere plek. Je woont hier landelijk, omringd door water en natuur, en toch met alle dagelijkse voorzieningen op loopafstand. De bakker, basisschool en sportverenigingen zijn dichtbij, net als de uitgestrekte natuur van Nationaal Park De Alde Feanen. Ideaal voor wie graag wandelt, fietst of het water op gaat. Leeuwarden bereik je bovendien in korte tijd, waardoor deze locatie zowel rustig als praktisch is. De Mieden zelf is een straat waar rust, ruimte en dorps wonen vanzelf samenkomen, gelegen aan de rand van het dorp en midden in het Friese landschap.

We komen aan in de gezellige, groene straat waar het meteen prettig voelt. Er is volop parkeergelegenheid, veel groen en een open, ruimtelijke opzet. Het strookje gras tussen stoep en weg versterkt dat gevoel van ruimte, en vanaf De Mieden kijk je zelfs uit op de pittoreske kerktoren van Warten. Dit is zo’n plek waar het dorpse en het veilige gevoel nog echt aanwezig zijn. De woning heeft een eigen oprit, dus parkeren doe je gewoon op eigen terrein. De groene voortuin en het verzorgde aanzicht geven het huis een charmante, uitnodigende uitstraling. Tijd om naar binnen te gaan.

De entree is verrassend licht dankzij de ramen in en boven de voordeur en het extra raam naast de deur. Hierdoor voelt de hal niet alleen helder, maar ook prettig ruim aan. Hier vinden we de trapopgang, toegang tot de trapkast, het moderne toilet, de meterkast en waterontharder en een vaste kast aan de rechterzijde; een ideale plek voor schoenen, jassen, tassen en alles wat je liever uit het zicht houdt.

We lopen rechtdoor naar de woonkamer aan de voorzijde van de woning. Deze ruimte voelt warm en uitnodigend door de pelletkachel, terwijl de raampartijen aan de voor- en zijkant zorgen voor veel daglicht. De L-vormige indeling maakt de woonkamer zowel praktisch als ruimtelijk. De keuken staat in open verbinding met de woonkamer via een karaktervolle poortvormige boog, wat zorgt voor een mooie overgang tussen de ruimtes. De keuken is netjes, biedt volop bergruimte en is voorzien van onder andere een inbouwoven en een keramische kookplaat.

Een echte eyecatcher is de serre, die is aangebouwd aan de keuken. De perfecte plek om je eettafel neer te zetten en tijdens het eten heerlijk te genieten van het zicht op de tuin. Dankzij de schuifpui en de raampartijen tot aan de grond voelt deze ruimte als een verlengstuk van de tuin. Inbouwspotjes in het plafond zorgen voor sfeervolle verlichting en op zonnige dagen biedt het zonnescherm aangename schaduw. Lange avonden tafelen, een kop koffie in de ochtend of een goed boek aan het eind van de dag... Hier kan het allemaal!

Via de keuken is ook de praktische bijkeuken bereikbaar, met witgoedaansluiting en de cv-ketel (Remeha). Vanuit hier loop je via openslaande deuren zo de tuin in. Buiten vind je een fijne overkapping, zodat je altijd droog staat wanneer je via de serre of de bijkeuken naar buiten gaat.

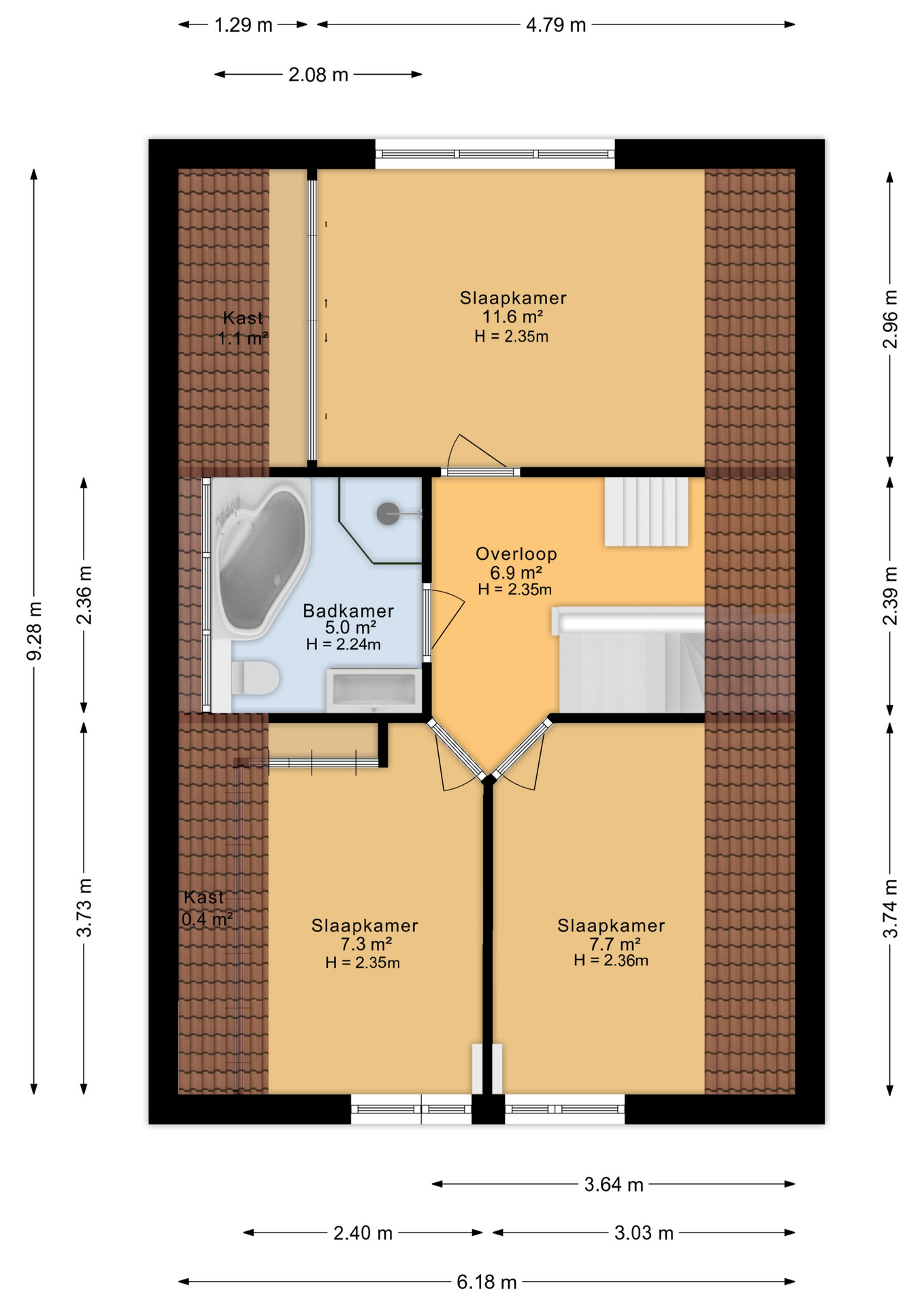
We gaan naar boven, waar drie slaapkamers te vinden zijn. De grootste slaapkamer ligt aan de tuinkant, heeft een inbouwkast en een oppervlakte van circa 11,6 m². Deze kamer is voorzien van kunststof kozijnen met twee draaikiepramen en een ventilatierooster. Een van de andere slaapkamers valt op door de sierlijk afgewerkte inbouwkasten in de knieschotten: praktisch en met oog voor detail. Vanaf de overloop is ook de badkamer bereikbaar. Deze is compleet uitgevoerd met elektrische vloerverwarming, een ligbad, regendouche, wastafelmeubel, inbouwspotjes, een verlichte spiegel en een tweede toilet. Dankzij de kunststof kozijnen met draaikiepramen en een extra raam met rooster is er volop daglicht en goede ventilatie, naast de mechanische afzuiging, die hier ook aanwezig is.

De zolder is bereikbaar via een vaste trap en wordt momenteel gebruikt als kantoor. Door het puntdak is de ruimte knus en wat lager van hoogte, wat ‘m naast werkplek ook zeer geschikt maakt als bergzolder voor seizoensspullen en alles wat je liever uit het zicht houdt.

Nog zo'n eyecatcher: de tuin. Deze ligt zonnig op het zuidwesten en biedt veel privacy. Er is een zonnescherm aanwezig, een houten schuur met vliering en elektra en volop ruimte voor tuingereedschap en opslag. De tuin is gezellig ingedeeld met een terras, een betegeld pad en een stukje groen grasveld. Aan de linkerzijde van het huis ligt een moestuintje en doordat de tuin rondom de woning loopt, ervaar je hier echt vrijheid en ruimte.

Alle pluspunten op een rij:
- Vrijstaande woning aan de rand van het dorp
- Zonnige tuin op het zuidwesten rondom de woning
- Serre met schuifpui en veel lichtinval
- Eigen oprit en parkeren op eigen terrein
- 13 zonnepanelen
- Pelletkachel in de woonkamer
- Praktische bijkeuken aanwezig
- Houten schuur met vliering en elektra
- Nabij Leeuwarden en Nationaal Park De Alde Feanen

Kortom: De Mieden 58 is een warm, verzorgd en compleet huis op een heerlijke plek in Warten, waar je elke dag geniet van rust, ruimte en natuur, zonder in te leveren op comfort. Ben je benieuwd hoe dit voelt in het echt? Neem dan contact met ons op en plan een bezichtiging, je bent van harte welkom.

Video

Details Foto's Beschrijving Video Plattegrond Kaart

Weten wat jouw woning waard is?

Plan vrijblijvend een GRATIS waardebepaling met één van onze makelaars