fbpx
Hoofdfoto
  • Soort Eengezinswoning
  • Type Tussenwoning
  • Bouwjaar 1950
  • Woonoppervlakte 115 m2
  • Perceeloppervlakte 174 m2
  • Inhoud 415 m3
  • Aantal kamers 4
  • Aantal slaapkamers 3
  • Aantal badkamers 1
  • Liggingen In woonwijk
  • Koopprijs € 349.500,- k.k.
  • Status Verkocht
  • Aanvaarding In overleg
  • Energieklasse A
  • Verwarming CV ketel, Vloerverwarming gedeeltelijk, Pelletkachel
  • Isolatie Dakisolatie, Vloerisolatie, Gedeeltelijk dubbelglas
  • Combiketel Ja
  • Parkeer faciliteiten Parkeervergunningen
  • Garage Geen garage

Beschrijving Tesselschadestraat 84

Tesselschadestraat 84 in Leeuwarden – karakter, licht en comfort
Welkom in Vossepark & Helicon! Deze charmante tussenwoning combineert de sfeer van een karakteristiek huis met het comfort van moderne voorzieningen. Met hoge plafonds, een erker en een stijlvolle traploper ademt dit huis klasse, terwijl vloerverwarming, Philips Hue-verlichting en 13 zonnepanelen zorgen voor hedendaags gemak. En dat alles op loopafstand van de binnenstad, in een fijne en gemengde buurt.

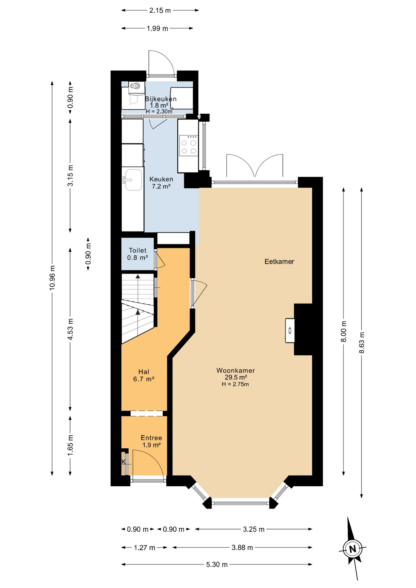
Ruimte en sfeer op de begane grond
Je komt binnen via een ruime entree. De hal springt direct in het oog met de karakteristieke traploper en de klassieke wandtegels – nieuw geplaatst, maar in de oude stijl behouden. Hier vind je ook het toilet en de trapopgang. De woonkamer voelt licht en ruim aan dankzij de erker en de hoge plafonds. Achterin bevindt zich de eetkamer, met openslaande deuren naar de diepe tuin. De open keuken is modern en compleet uitgerust met onder andere een stoomoven, inductiekookplaat met ingebouwde afzuiging en een ruime koelkast. Aansluitend ligt de bijkeuken, met toegang tot de tuin en extra opbergruimte.

Twee lichte slaapkamers en complete badkamer
Op de eerste verdieping vind je twee ruime slaapkamers, beide heerlijk licht en voorzien van handige inbouwkasten. Eén van de kamers heeft bovendien toegang tot een balkon. De badkamer is netjes afgewerkt en beschikt over een ligbad, douche, wastafelmeubel en toilet. Ook vanaf de overloop heb je nog toegang tot een tweede balkon.

Ruime zolderkamer
De tweede verdieping biedt een ruime derde slaapkamer met kastruimte onder het schuine dak. Hier is ook een airco geplaatst, zodat het er ’s zomers heerlijk koel blijft. Achter een praktisch schot vind je bovendien de omvormer, boiler en de mechanische afzuiging. Vanuit deze verdieping heb je een uniek uitzicht op het puntje van de Oldehove! Extra opbergruimte is er in de vlieringen en achter de knieschotten.

Diepe, zonnige tuin
De achtertuin is door zijn diepte lekker zonnig en biedt volop privacy. Achterin de tuin staat een berging met overkapping en toegang tot de afgesloten achterom. Een fijne plek om te ontspannen, te tuinieren of fietsen en gereedschap op te bergen.

Bijzonderheden:
• Energielabel A
• 13 zonnepanelen
• Volledig kunststof kozijnen met kiep-draairamen en horren (1e en 2e verdieping)
• Vloerverwarming op de begane grond + pelletkachel
• Philips Hue-verlichting door het hele huis
• Airco op de zolderverdieping
• Omvormer, boiler en mechanische afzuiging netjes weggewerkt achter schot op 2e verdieping
• Hal met karakteristieke traploper en klassieke tegeltjes in oude stijl
• Diepe, zonnige achtertuin met berging, overkapping en achterom
• Nabij centrum en voorzieningen

Een huis met karakter én comfort
Deze woning is de afgelopen jaren grondig verbouwd, waarbij het karakteristieke gevoel is behouden en tegelijk veel moderne gemakken zijn toegevoegd. Ideaal voor wie wil wonen in een sfeervolle wijk, dichtbij de binnenstad en toch genieten van ruimte, licht en een groene tuin.

Video

Details Foto's Beschrijving Video Plattegrond Kaart

Weten wat jouw woning waard is?

Plan vrijblijvend een GRATIS waardebepaling met één van onze makelaars