Hoofdfoto
  • Soort Eengezinswoning
  • Type Tussenwoning
  • Bouwjaar 1929
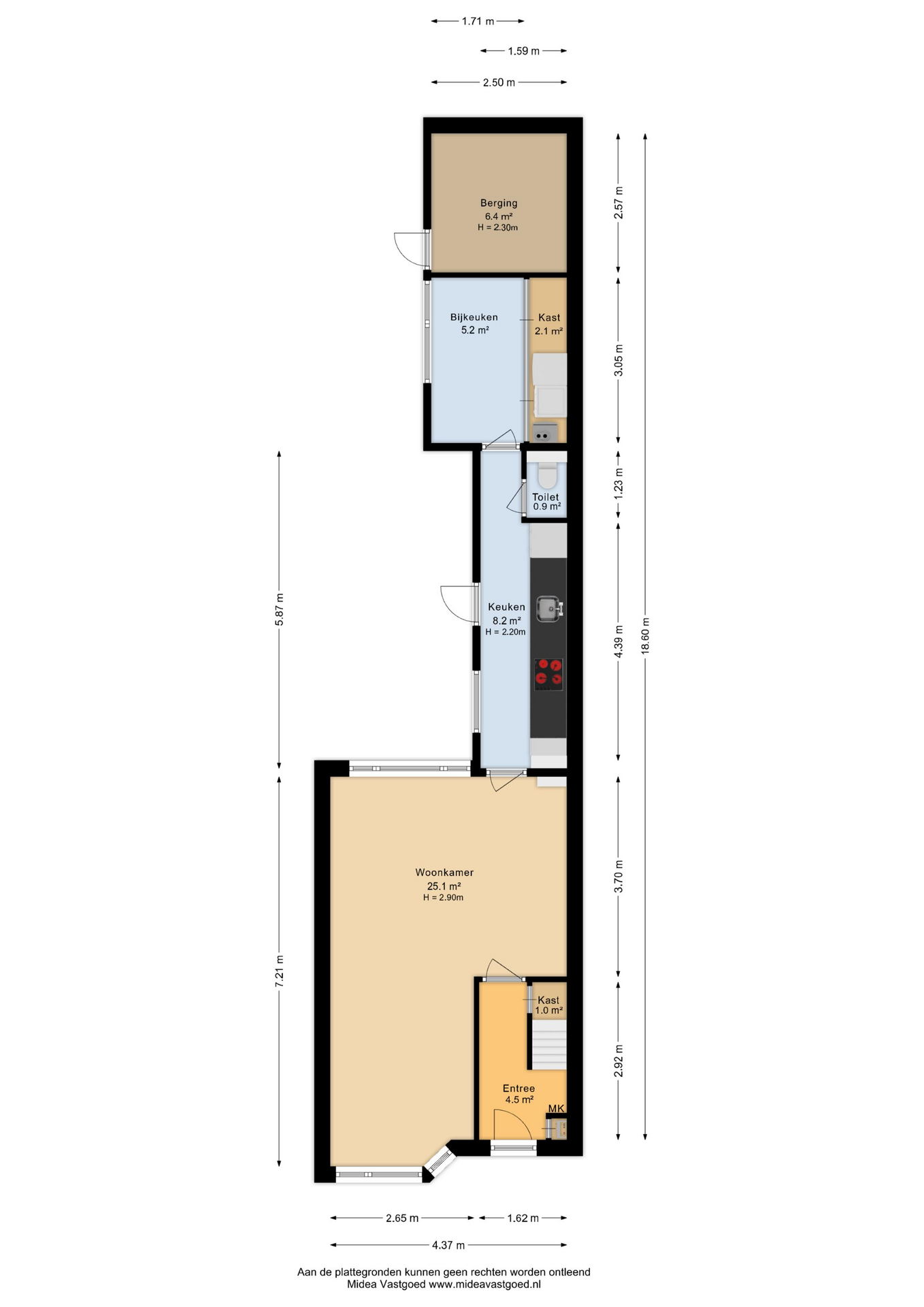
  • Woonoppervlakte 79 m2
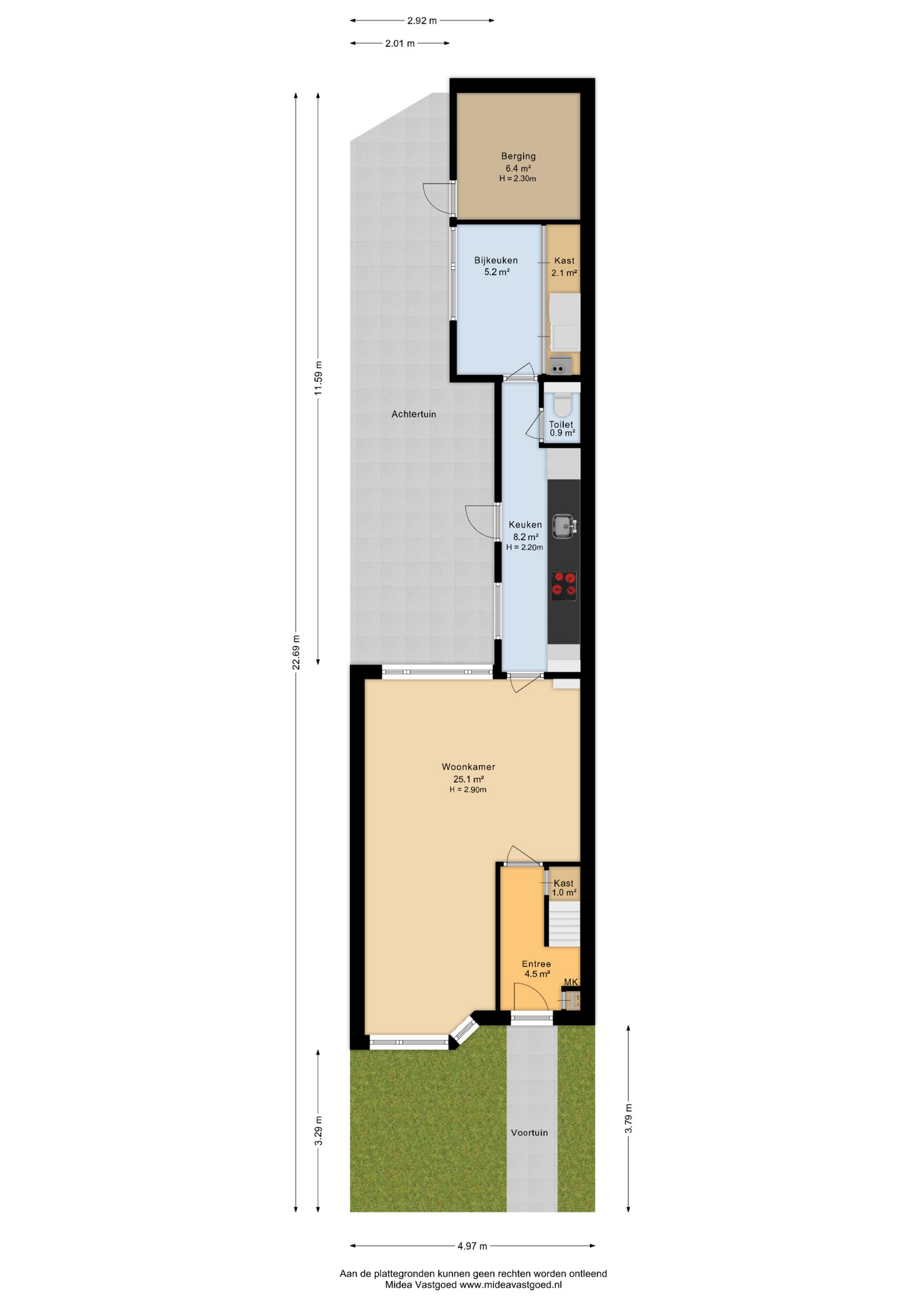
  • Perceeloppervlakte 115 m2
  • Inhoud 323 m3
  • Aantal kamers 3
  • Aantal slaapkamers 2
  • Aantal badkamers 1
  • Liggingen In woonwijk
  • Koopprijs € 275.000,- k.k.
  • Status Verkocht
  • Aanvaarding In overleg
  • Energieklasse C
  • Verwarming CV ketel, Vloerverwarming gedeeltelijk
  • C.V.-Ketel Remeha
  • Isolatie Dakisolatie, Muurisolatie, Vloerisolatie, Dubbelglas
  • Combiketel Ja
  • Parkeer faciliteiten Openbaar parkeren
  • Garage Geen garage

Beschrijving Nieuwe Hollanderdijk 3

Nieuwe Hollanderdijk 3 ligt in een rustige woonwijk waar het dagelijkse leven prettig en overzichtelijk aanvoelt. Een buurt met een fijne mix van karakter en eenvoud, waar je de ruimte hebt om thuis te komen en de dag rustig te beginnen of juist ontspannen af te sluiten.

Via de straat bereik je deze tussenwoning uit 1929. De gevel verraadt al iets van de charme van het bouwjaar, terwijl je bij binnenkomst direct merkt dat dit een huis is waar met zorg is gewoond. In de hal is ruimte voor de jassen en schoenen en vanaf hier stap je door naar het hart van de woning.

De woonkamer voelt licht en open, met een prettige indeling die uitnodigt tot lange avonden op de bank en gezellige momenten aan tafel. De zichtlijnen zorgen voor rust en samenhang, terwijl de ruimte zich gemakkelijk laat indelen naar eigen wens. Aansluitend ligt de keuken, praktisch ingericht en met een directe verbinding naar buiten. Een fijne plek om te koken, met alles binnen handbereik en uitzicht op de tuin.

Op de verdiepingen bevinden zich meerdere slaapkamers, elk met een eigen karakter. De kamers zijn licht en prettig van formaat, geschikt als hoofdslaapkamer, kinderkamer of werkruimte. De badkamer is verzorgd uitgevoerd en voorzien van alles wat nodig is voor een comfortabele start van de dag.

Buiten wacht de achtertuin, gunstig gelegen op het zuiden. Een heerlijke plek om van de zon te genieten, een kop koffie te drinken of juist tot laat buiten te zitten. De tuin voelt beschut en biedt volop mogelijkheden om er een fijne buitenruimte van te maken, passend bij elk seizoen.

Pluspunten
- Tussenwoning uit 1929 met herkenbaar karakter
- Prettige indeling met een lichte woonkamer en open verbinding naar de keuken
- Meerdere slaapkamers, flexibel in te delen voor wonen, werken of logeren
- Verzorgde badkamer en een woning die direct prettig aanvoelt
- Zonnige achtertuin op het zuiden, een fijne verlening van het huis

Nieuwe Hollanderdijk 3 is een charmante eengezinswoning met een fijne sfeer, een praktische indeling en een zonnige tuin. Een huis waar je je snel thuis voelt en waar je met plezier verder kunt bouwen aan jouw woonwensen. Neem contact met ons op voor een bezichtiging, we laten je dit huis graag in het echt ervaren.

Video

Details Foto's Beschrijving Video Plattegrond Kaart

Weten wat jouw woning waard is?

Plan vrijblijvend een GRATIS waardebepaling met één van onze makelaars