fbpx
Hoofdfoto
  • Soort Eengezinswoning
  • Type Eindwoning
  • Bouwjaar 2017
  • Woonoppervlakte 140 m2
  • Perceeloppervlakte 178 m2
  • Inhoud 497 m3
  • Aantal kamers 7
  • Aantal slaapkamers 5
  • Aantal badkamers 1
  • Koopprijs € 489.000,- k.k.
  • Status Beschikbaar
  • Aanvaarding In overleg
  • Energieklasse A
  • Verwarming Stadsverwarming
  • Isolatie Dakisolatie, Muurisolatie, Vloerisolatie
  • Combiketel Nee
  • Garage Geen garage

Beschrijving It Bynt 60

It Bynt 60: ruim, modern en helemaal klaar voor gezinsgeluk

Welkom aan It Bynt 60 in Leeuwarden, midden in het geliefde Techum: een jonge wijk met een dorpse sfeer, groene singels en volop waterrijke elementen. Hier groeien kinderen op met ruimte om te spelen, in een buurt waar buren elkaar nog kennen. Speeltuintjes, basisscholen en supermarkten liggen allemaal op loopafstand. De straat zelf is rustig, autoluw en gezellig hecht, precies wat je zoekt in een echte gezinsbuurt.

Een warm welkom
Het aanzicht van de woning is meteen uitnodigend: een speels gevelontwerp met twee kleuren, hoge ramen en een fraaie hoge dakkapel op de tweede verdieping die het geheel een karakteristieke uitstraling geeft. De groene beplanting langs de voortuin vormt een natuurlijke afscheiding en versterkt het rustige straatbeeld. Parkeren doe je eenvoudig voor de deur. Ook vind je een steeg naast de woning, ideaal als achterom en handig voor het plaatsen van de containers.

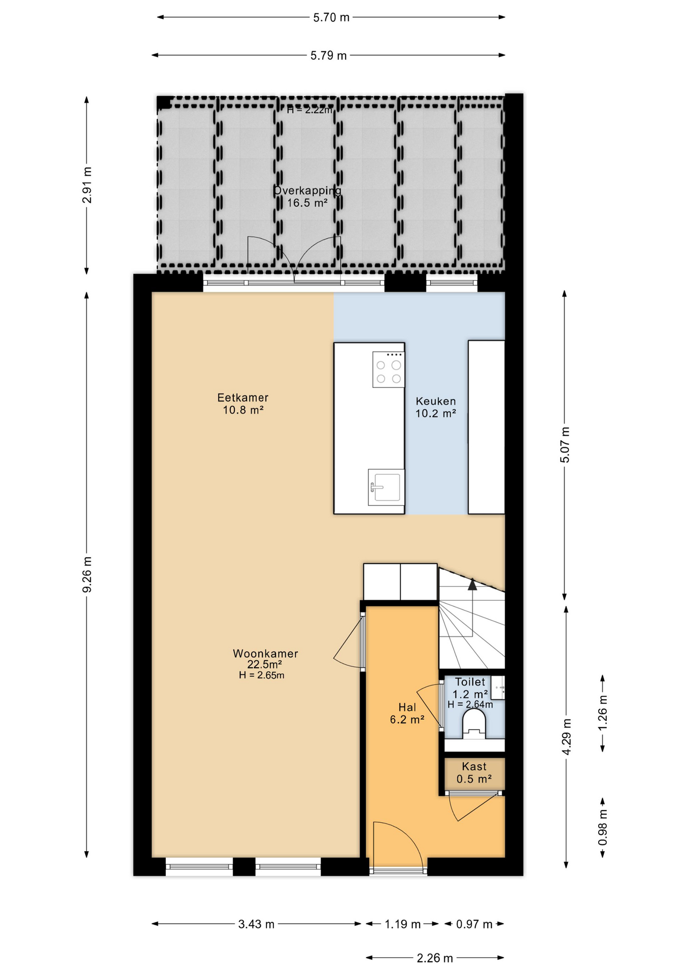
Woonkamer en keuken: licht, lucht en leven
We stappen binnen via de hal met vaste kast, modern toilet en trapopgang. Vanuit hier lopen we door naar de sfeervolle leefruimte in L-vorm, die slim is ingedeeld in een zit- en eetgedeelte. Aan de voorzijde bevindt zich de lichte woonkamer met hoge raampartijen en volop ruimte voor een gezellige zithoek. Aan de tuinzijde ligt de moderne leefkeuken met een riant kookeiland, het hart van het huis. De strakke, greeploze keuken is stijlvol uitgevoerd en voorzien van alle gemakken, waaronder zelfs een stoomoven. Koken, borrelen, tafelen: het kan hier allemaal. Dankzij de openslaande deuren trek je op zonnige dagen het terras er moeiteloos bij. Er is plek genoeg voor een lange eettafel, wat een ruimte!

Eerste verdieping: rust en ruimte
De ruime overloop geeft toegang tot drie grote slaapkamers en een inloopkast van 3,5 m². De badkamer is royaal en luxe uitgevoerd met een vrijstaand ligbad & ruime inloopdouche (beide met inbouwkranen en nisjes), dubbele wastafel, modern toilet en designradiator. Alles straalt hier comfort en rust uit, een plek om echt even te ontspannen.

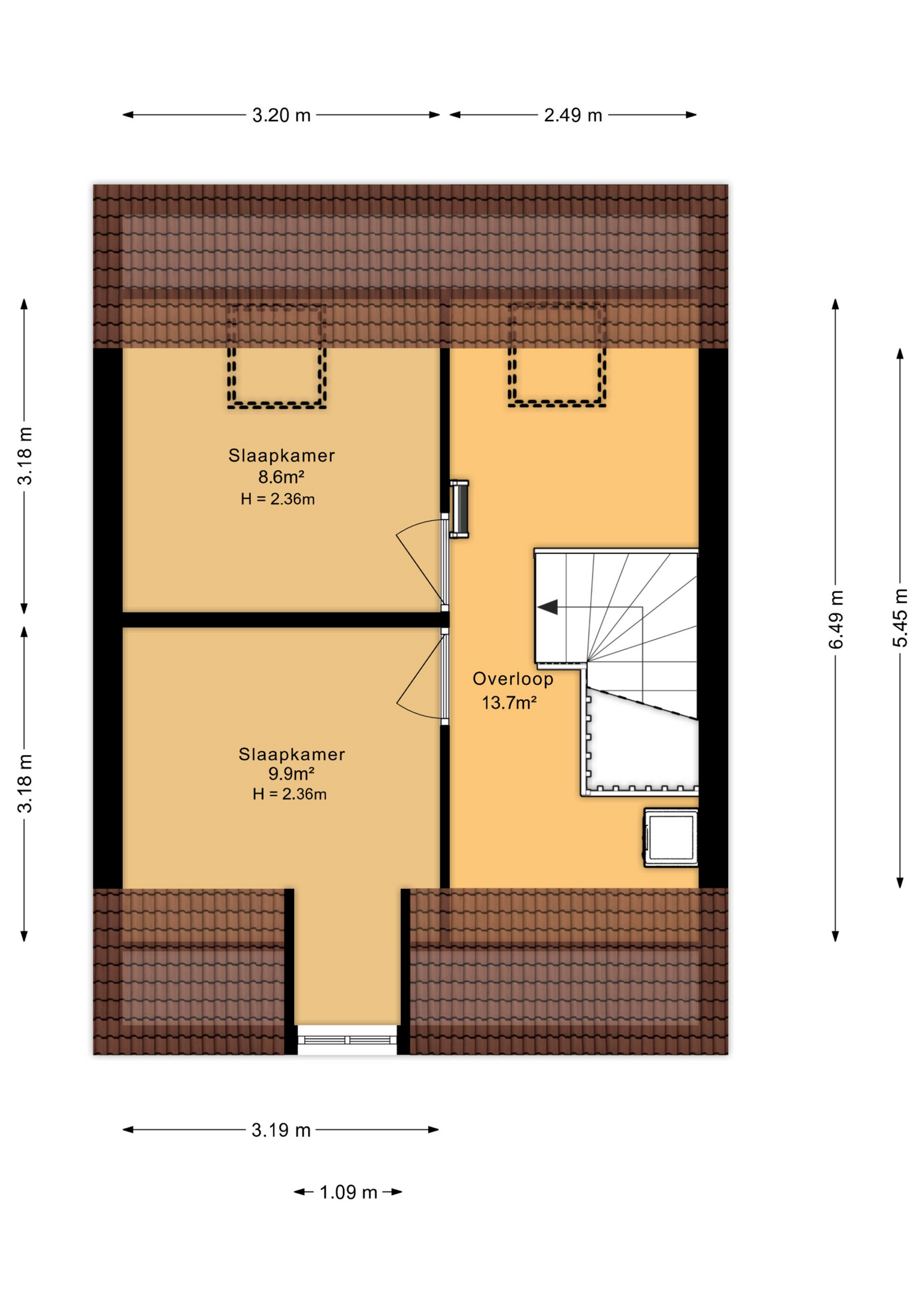
Tweede verdieping: verrassend veel extra ruimte
Op de tweede verdieping tref je nog twee ruime slaapkamers, bereikbaar via een lichte overloop. Dankzij de combinatie van dakramen en een dakkapel aan de voorzijde voelt deze verdieping ruim, licht en luchtig aan. In totaal biedt de woning dus vijf slaapkamers, ideaal voor een groot gezin, thuiswerkplek of logeerkamer. Met 140 m² aan woonoppervlakte is hier ruimte in overvloed!

Tuin: genieten van buiten
Achter de woning ligt een diepe, onderhoudsvriendelijke tuin met veel privacy. De hoge schuttingen, groene borders en het grasveldje zorgen voor een fijne sfeer. De grote overkapping maakt het buitenseizoen nét wat langer; hier zit je droog en beschut. Achterin de tuin staat een houten berging voor fietsen en tuingereedschap, met voorbereiding voor een laadpunt voor een elektrische auto. En wie nog meer ruimte wenst: de overkapping biedt zelfs mogelijkheden om het geraamte te gebruiken voor een uitbouw.

Pluspunten op een rij:
- Energielabel A
- Stadsverwarming
- 12 zonnepanelen
- Volledig geïsoleerd (bouwjaar 2017)
- Maar liefst vijf slaapkamers
- Luxe badkamer met ligbad en inloopdouche
- Grote leefkeuken met kookeiland
- Diepe, privacyrijke tuin met overkapping
- Eigen steeg naast de woning

Kortom: It Bynt 60 is een royale en perfect onderhouden gezinswoning met alle ruimte om te wonen, werken en genieten. Met vijf slaapkamers, een moderne leefkeuken en een diepe tuin met overkapping biedt deze woning het beste van twee werelden: comfort en gezelligheid in een rustige, kindvriendelijke buurt. Ben jij klaar om hier je nieuwe thuis te vinden? Maak dan snel een afspraak voor een bezichtiging en kom zelf de sfeer proeven.

Video

Details Foto's Beschrijving Video Plattegrond Kaart

Weten wat jouw woning waard is?

Plan vrijblijvend een GRATIS waardebepaling met één van onze makelaars