fbpx
Hoofdfoto
  • Soort Eengezinswoning
  • Type Twee onder één kapwoning
  • Bouwjaar 2019
  • Woonoppervlakte 154 m2
  • Perceeloppervlakte 307 m2
  • Inhoud 566 m3
  • Aantal kamers 5
  • Aantal slaapkamers 4
  • Aantal badkamers 1
  • Liggingen Aan rustige weg, In woonwijk
  • Koopprijs € 595.000,- k.k.
  • Status Verkocht
  • Aanvaarding In overleg
  • Energieklasse A
  • Verwarming CV ketel, Vloerverwarming gedeeltelijk
  • C.V.-Ketel Intergas kompakt HRE
  • Combiketel Ja
  • Parkeer faciliteiten Op eigen terrein
  • Garage Vrijstaand hout
  • Capaciteit 2
  • Garages 1

Beschrijving Dielsfinne 13

Zonnig wonen nabij het water – ruimte, comfort én vakantiegevoel aan de Dielsfinne 13!

Wonen aan de Dielsfinne 13 in Leeuwarden betekent elke dag een beetje vakantie. Zodra je de rustige straat inrijdt, zie je het al: brede stoepen, een groen plantsoen voor de deur en het water op loopafstand. Deze woning ademt ruimte en rust – en tegelijk voel je meteen die warme, moderne sfeer zodra je binnenstapt.

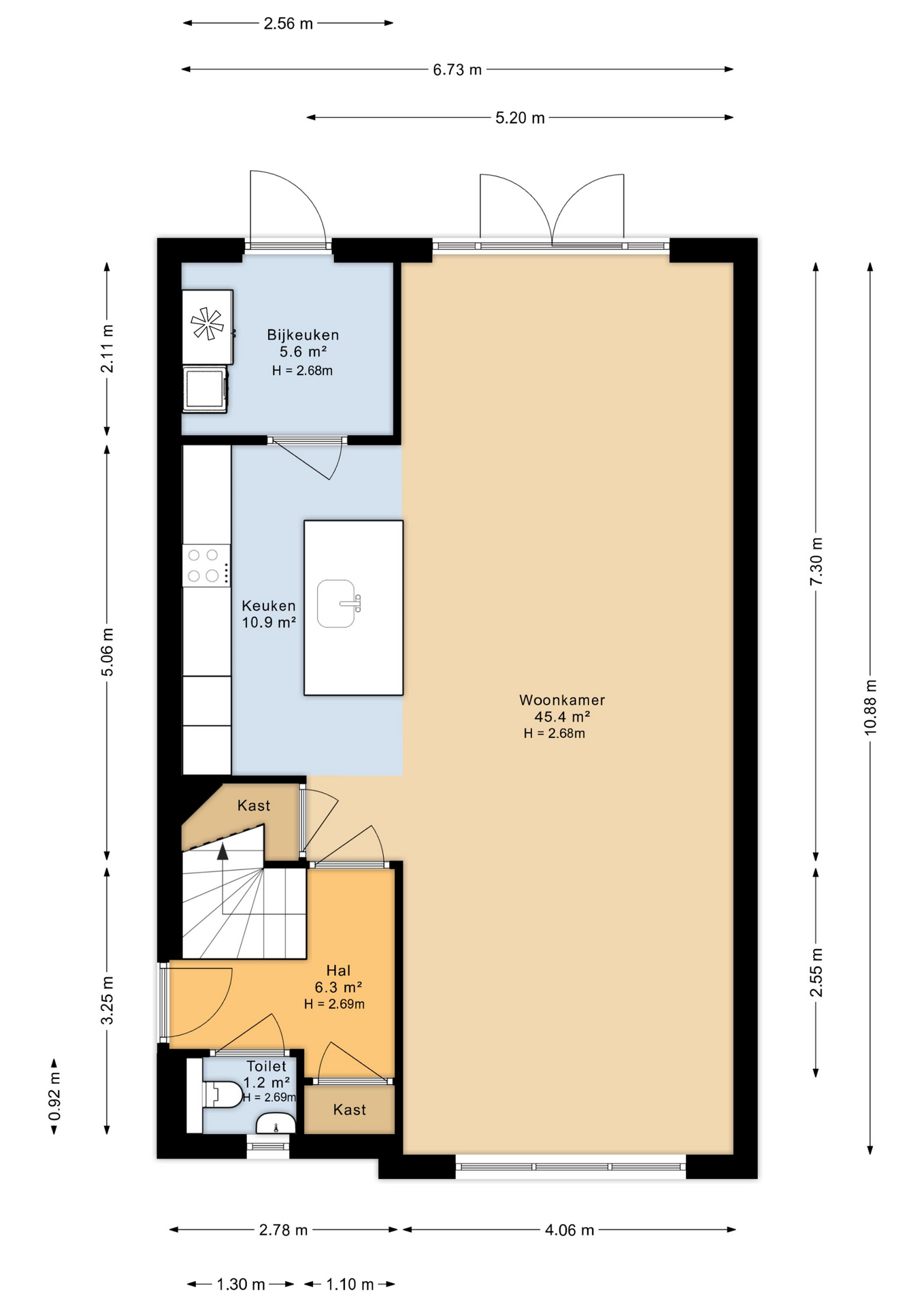
Begane grond
De hal is strak, verzorgd en licht, met een keurig toilet. Maar het echte wauw-moment komt zodra je de woonkamer binnenloopt. Wat een ruimte, wat een licht! De royale living strekt zich uit over de volle breedte van het huis, met aan de achterzijde prachtige openslaande deuren richting de tuin. Hier vloeien binnen en buiten moeiteloos in elkaar over.

De woonkamer is niet alleen groot, maar ook slim ingedeeld. Onder de trap zit nog extra bergruimte – perfect voor spullen die je uit het zicht wilt houden. De vloerverwarming zorgt voor aangename warmte, zelfs op koude dagen. En doordat alles strak is afgewerkt, voelt het huis fris en modern aan.

Aan de voorzijde pronkt de ruime leefkeuken met een stijlvol spoeleiland. Dit is er zo één waar koken echt een feestje wordt. De keuken is uitgerust met een inductiekookplaat, combi-oven/magnetron, koelkast en vriezer – alles wat je nodig hebt om lekker uit te pakken. Terwijl je kookt, kijk je uit over het groene plantsoen: een vrij uitzicht dat meteen rust brengt.

Naast de keuken ligt de bijkeuken, een praktische topper. Handig voor de was, voorraad of gewoon om je dagelijkse spullen netjes te houden.

Tuin en buitenruimte
Vanuit de woonkamer stap je via de openslaande deuren de zonnige tuin op het zuiden in – en daar begint het buitenleven pas echt! Deze tuin is gemaakt voor gezelligheid: een groot terras voor de barbecue, ruimte voor een loungeset én een zonnige plek voor de ligstoelen. Achterin vind je een eigen parkeerplaats onder een overkapping, een handige fietsenberging én zelfs een aparte garage. Alles wat je nodig hebt, gewoon bij de hand.

En alsof dat nog niet genoeg is: deze woning beschikt over twee ligplekken aan het water, direct achter het huis. Ze horen niet bij de koopsom, maar kunnen worden overgenomen – ideaal voor de watersporter of levensgenieter die graag na het werk nog even het water opgaat.

Eerste verdieping
Op de eerste verdieping vind je drie fijne slaapkamers, stuk voor stuk licht en ruim. De kunststof kozijnen houden het onderhoud minimaal, en de afwerking is keurig. De badkamer is er eentje om blij van te worden: een ligbad, inloopdouche, dubbel wastafelmeubel, een tweede toilet en vloerverwarming maken het plaatje compleet. Luxe, fris en heerlijk praktisch.

Tweede verdieping
De zolderverdieping biedt een riante vierde kamer – ideaal als slaapkamer, thuiswerkplek of hobbyruimte. Op de overloop vind je de omvormer van de zonnepanelen, en in de aparte berging hangt de cv-ketel. Alles netjes weggewerkt, precies zoals je het wilt.

Pluspunten op een rij
-Riante woning met 154 m² woonoppervlakte
- Zonnige tuin op het zuiden
- Eigen parkeerplaats onder overkapping, berging én garage
- Twee ligplekken aan het water (optioneel één of twee over te nemen)
- Grote leefkeuken met spoeleiland en moderne apparatuur
- Openslaande deuren naar de tuin
- Gedeeltelijke vloerverwarming
- 4 slaapkamers (waarvan 1 op zolder)
- Onderhoudsarme kunststof kozijnen
- Energielabel A én zonnepanelen
- Er blijven 14 zonnepanelen achter. De overige 10 zijn bespreekbaar ter overname

Samenvatting

Dielsfinne 13 is een woning die alles in zich heeft: ruimte, comfort, duurzaamheid en een flinke dosis woonplezier. Hier leef je ruim, licht en vrij, met het water letterlijk om de hoek. De tuin ligt pal op het zuiden, de keuken nodigt uit tot koken en het uitzicht over het plantsoen maakt het plaatje compleet.

Kortom: dit is zo’n huis waar je binnenkomt en direct denkt — ja, dit is het!

Video

Details Foto's Beschrijving Video Plattegrond Kaart

Weten wat jouw woning waard is?

Plan vrijblijvend een GRATIS waardebepaling met één van onze makelaars