fbpx
Hoofdfoto
  • Soort Eengezinswoning
  • Type Vrijstaande woning
  • Bouwjaar 1909
  • Woonoppervlakte 98 m2
  • Perceeloppervlakte 210 m2
  • Inhoud 358 m3
  • Aantal kamers 4
  • Aantal slaapkamers 3
  • Liggingen In woonwijk, In bosrijke omgeving
  • Koopprijs € 279.000,- k.k.
  • Status Beschikbaar
  • Aanvaarding In overleg
  • Energieklasse E
  • Verwarming CV ketel
  • C.V.-Ketel Nefit
  • Isolatie Dubbelglas
  • Combiketel Ja
  • Parkeer faciliteiten Openbaar parkeren
  • Garage Geen garage

Beschrijving Buorren 26

Buorren 26 – Hemelum

Waar karakter, rust en ruimte samenkomen; én jij de kans krijgt om er jouw droomplek van te maken.

Welkom op Buorren 26 in Hemelum, een vrijstaande woning vol authentieke charme, gelegen in een sfeervol straatje midden in het dorp. Het huis heeft liefde nodig, maar biedt vooral ontzettend veel potentie. De omgeving draagt daar volop aan bij: groen, rustig, dorps en op korte afstand van bossen, water en de sfeer van de Zuidwesthoek.
Hier kun je écht jouw nieuwe thuis creëren.

Aankomst & Entree
Je bereikt het huis via een knus pad langs groen en oude bomen. De gevel ademt karakter en vormt meteen een vriendelijk welkom. Via de groene voordeur stap je binnen in de hal en voel je meteen dat dit huis unieke mogelijkheden biedt.

Begane grond - Wonen met sfeer en potentie
De woonkamer ligt aan de voorzijde en heeft prachtige lichtinval dankzij de grote ramen. De balken aan het plafond en de indeling geven de ruimte een charmante, bijna landelijke uitstraling. Hier kun je met een frisse blik alle kanten op: openmaken, moderniseren, uitbreiden: het kan allemaal.

Vanuit de woonkamer loop je door naar de eetkamer, die uitkijkt op de tuin. Dit is een fijne plek voor een grote tafel, waar je herfstige diners of zomerse ontbijten kunt beleven met zicht op het groen. Aansluitend vind je de eenvoudige maar functionele keuken. Ideaal voor een volledige make-over, waarbij je bijvoorbeeld een grote leefkeuken kunt creëren.

Achtertuin - Rust & ruimte op het oosten
De tuin ligt op het oosten en is verrassend ruim & groen. Er is meer dan genoeg plek voor een fijne zitplek, een moestuin, een veranda of een tuinkamer. Hier kun je volop genieten van privacy en vrijheid.

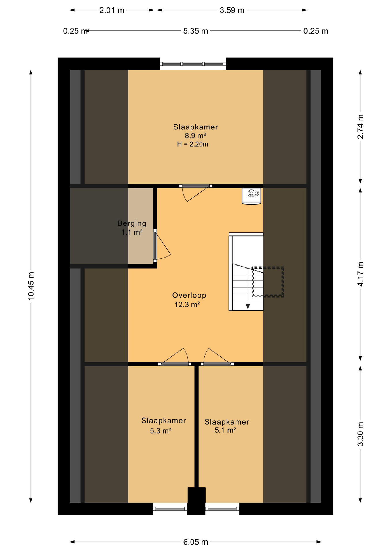
Verdieping - Slaapkamers & kansen voor de toekomst
Boven vind je lichte ruimtes met charmante kaplijnen en zicht op de tuin en het dorp. De verdieping leent zich uitstekend voor een slimme herindeling, waardoor je hier met gemak een comfortabele slaapverdieping of een combinatie van slaapkamers, logeerkamer en werkplek kunt maken.

Pluspunten op een rij:
- Vrijstaande woning
- Authentieke uitstraling
- Ruime achtertuin op het oosten
- Wonen in een rustig dorp met veel natuur in de omgeving
- Grote potentie voor verbouwing en modernisering
- Cv-ketel in eigendom

Kortom: een vrijstaande woning op een prachtige plek in Hemelum, vol karakter én vol kansen. Dit is het ideale huis voor wie graag zijn handen uit de mouwen steekt en op zoek is naar een plek die helemaal naar eigen smaak kan worden omgetoverd.

Video

Details Foto's Beschrijving Video Plattegrond Kaart

Weten wat jouw woning waard is?

Plan vrijblijvend een GRATIS waardebepaling met één van onze makelaars