fbpx
Hoofdfoto
  • Soort Grachtenpand
  • Type Vrijstaande woning
  • Bouwjaar 1900
  • Woonoppervlakte 142 m2
  • Perceeloppervlakte 188 m2
  • Inhoud 538 m3
  • Aantal kamers 8
  • Aantal slaapkamers 4
  • Aantal badkamers 1
  • Koopprijs € 435.000,- k.k.
  • Status Verkocht onder voorbehoud
  • Aanvaarding In overleg
  • Energieklasse D
  • Verwarming CV ketel, Vloerverwarming gedeeltelijk
  • C.V.-Ketel Remeha
  • Combiketel Nee
  • Parkeer faciliteiten Openbaar parkeren, Parkeervergunningen
  • Garage Geen garage

Beschrijving Noord 35

Vol karakter aan de gracht – wonen in stijl aan Noord 35 in Franeker

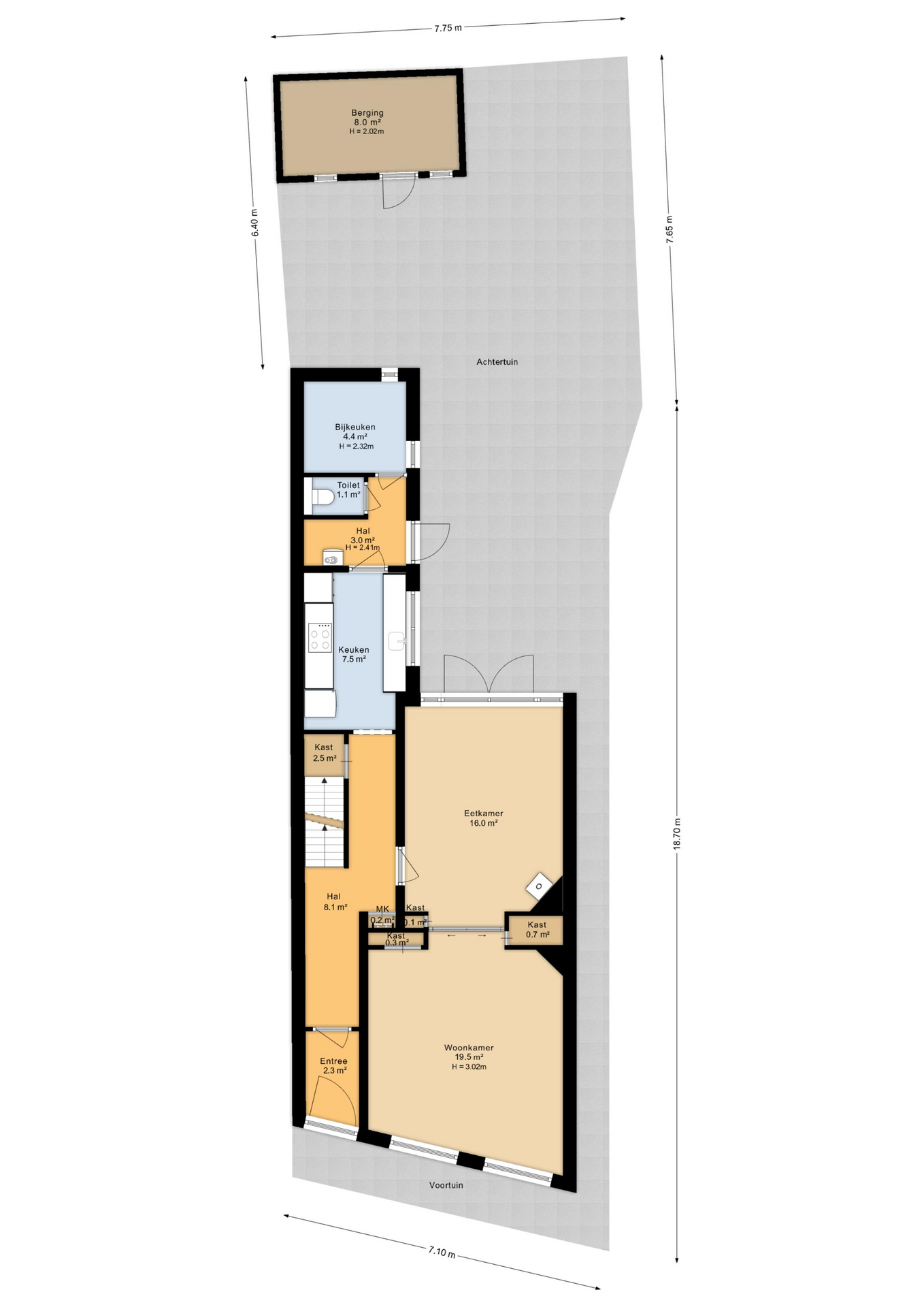
Stap binnen in een woning die historie ademt en modern comfort biedt. Aan de sfeervolle gracht van Franeker vind je dit vrijstaande woonhuis uit 1900: een karakteristiek pand met glas-in-loodramen, authentieke details en volop ruimte. Met 142 m² woonoppervlakte, 4 slaapkamers en zonnepanelen is dit een plek waar oud en nieuw elkaar in balans ontmoeten.

Welkom in de binnenstad

Noord is één van de charmantste straten van Franeker. Hier woon je midden in de historische binnenstad, met winkels, horeca, het Planetarium en theater De Koornbeurs op loopafstand. Toch geniet je van rust, privacy en een ruime stadstuin achter de woning, een zeldzame vondst midden in de stad.

Aankomst en entree

De gevel valt direct op door zijn sierlijke lijnen en klassieke raamverdeling. Via de voordeur met glas-in-lood kom je in de hal, een mooie binnenkomer waar direct het karakter van het huis voelbaar is.

Wonen met sfeer

De woonkamer is licht, royaal en vol karakter. De hoge plafonds, houten vloeren en glas-in-loodramen zorgen voor een warme, sfeervolle uitstraling. Vanuit hier kijk je uit over de gracht aan de voorzijde.
Aan de achterzijde ligt de aparte eetkamer, bereikbaar via fraaie schuifdeuren. Een heerlijke ruimte voor lange avonden aan tafel, waar de sfeer van het bouwjaar en het comfort van nu samenkomen.

Koken met karakter

De keuken combineert klassieke uitstraling met moderne gemakken. De opstelling biedt veel werk- en kastruimte, met zicht op de tuin. Vanuit hier loop je zo naar buiten, ideaal voor wie houdt van koken met een vleugje daglicht en direct contact met het groen.

Tuin en buitenleven

Achter de woning ligt een rustige, ruime stadstuin met voldoende plek voor een loungehoek en eettafel. De ligging biedt privacy en een oase van rust, terwijl je toch midden in de stad woont. De zonnepanelen op het dak zorgen voor lagere energiekosten én een duurzame noot.

Slaapverdieping

Op de eerste verdieping bevinden zich drie slaapkamers, elk met hun eigen sfeer en lichtinval. De houten vloeren geven karakter aan elke kamer, terwijl de glas-in-loodramen te vinden zijn op de overloop, een sfeervol detail dat de verdieping verbindt.
De badkamer is praktisch ingericht, met ruimte voor een ligbad of douche, wastafel en toilet.

Zolder met mogelijkheden

De tweede verdieping biedt een vierde slaapkamer en extra bergruimte. Je kunt hier zelfs slapen in de originele bedstee, een charmant en authentiek detail dat de zolder een bijzondere sfeer geeft. Deze etage is bovendien ideaal om naar eigen wens in te richten, bijvoorbeeld als werkplek, logeerkamer of hobbyruimte.

Pluspunten
Vrijstaande woning uit 1900
Karaktervolle details zoals glas-in-lood en schuifdeuren
Woonkamer en aparte eetkamer met fraaie doorgang
4 slaapkamers, waaronder een sfeervolle zolder met bedstee
Rustige, ruime stadstuin
Zonnepanelen
Woonoppervlakte 142 m²
Perceel 188 m²
Centrale ligging in de binnenstad van Franeker, dichtbij het Planetarium en theater De Koornbeurs
Energielabel D
Er wordt een extra groep toegevoegd voor de zonnepanelen in november

Samenvatting
Noord 35 is zo’n woning die je zelden tegenkomt: vrijstaand, sfeervol, duurzaam en met een verhaal. Een huis waar historie en hedendaags comfort elkaar ontmoeten – precies in het hart van Franeker.

Video

Details Foto's Beschrijving Video Plattegrond Kaart

Weten wat jouw woning waard is?

Plan vrijblijvend een GRATIS waardebepaling met één van onze makelaars